South-west patio, garage storage and easy motorway links for growing households.
Three good bedrooms; third bedroom is still a useful size
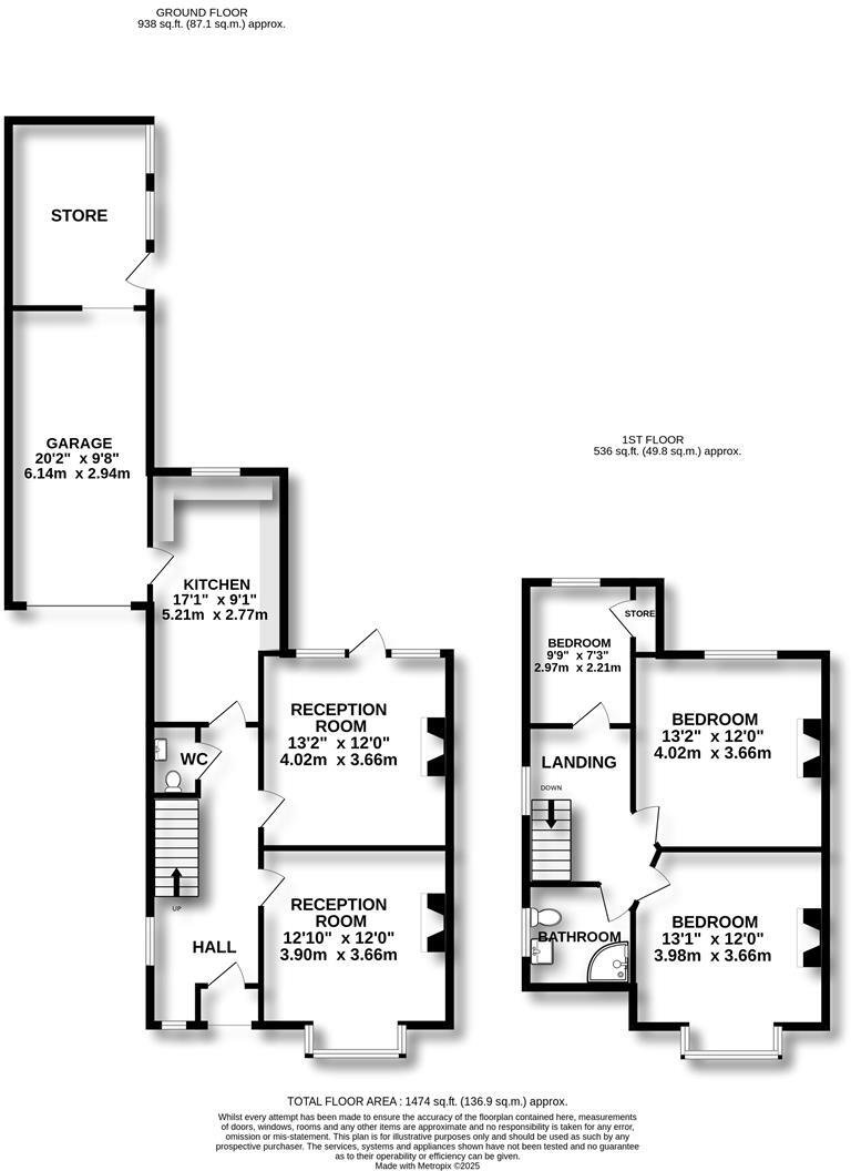
Two separate reception rooms and a generous kitchen/breakfast
South-west facing patio and garden for afternoon sun
Driveway, covered car port and garage with extra storage behind
Double glazing fitted post-2002 and mains gas central heating
Offered freehold and chain-free for a quick sale
Likely requires cosmetic updating; some mid-century finishes remain
Solid brick walls assumed without cavity insulation (may affect upgrades)
This handsome 1930s semi-detached home on Gresford Avenue offers a sensible, family-friendly layout across two storeys. The property features two separate reception rooms, a generous kitchen/breakfast space and three good bedrooms, all served by gas central heating and double glazing installed post-2002. A south-west facing patio and garden provide pleasant afternoon sun for family time or entertaining.
Practical parking is a strong asset: a pressed-concrete driveway, covered car port and a garage with substantial additional storage behind it. That extra space presents clear potential for future adaptation or expanded storage, subject to planning and building regulations. The house sits in a quiet, tree-lined street with fast broadband, excellent mobile signal, very low local crime and easy motorway access—handy for commuters.
The home is offered freehold and chain-free for a straightforward purchase. While the property is structurally typical of its era and described as generally in neutral condition, some internal areas show mid-century fittings and flooring and would benefit from cosmetic updating to suit contemporary tastes. Walls are solid brick with no assumed cavity insulation, which may affect future improvement plans and running costs.
Local schools are well regarded and several good primary and secondary options lie close by, making the house particularly suitable for families. Overall this is an attractive, conventional three-bedroom suburban home that combines everyday practicality with sensible potential for buyers willing to refresh interiors or explore modest alterations.
3 bedroom semi-detached house for sale in Aylesbury Avenue, Prenton, CH43 — £220,000 • 3 bed • 1 bath • 915 ft²
3 bedroom end of terrace house for sale in Prenton Village Road, Prenton, CH43 — £205,000 • 3 bed • 1 bath • 652 ft²
3 bedroom semi-detached house for sale in Garrick Road, Prenton, Wirral, CH43 — £190,000 • 3 bed • 1 bath • 901 ft²
3 bedroom semi-detached house for sale in Prenton Farm Road, Prenton, Wirral, CH43 — £230,000 • 3 bed • 1 bath • 832 ft²
3 bedroom semi-detached house for sale in Waterpark Close, Prenton, CH43 — £230,000 • 3 bed • 1 bath • 857 ft²
3 bedroom semi-detached house for sale in Noctorum Way, Prenton, Merseyside, CH43 — £220,000 • 3 bed • 1 bath • 941 ft²


































































































