UB4 9LL - 1 bed eighth floor one bedroom in Yeading Lane, UB4 9LL

View on Property Piper

1 bedroom apartment for sale in Melbourne House, Yeading Lane, Hayes, Greater London, UB4

Summary - MELBOURNE HOUSE 61 YEADING LANE HAYES UB4 9LL

1 bed 1 bath Apartment

Secure one‑bed flat with balcony, close to schools — affordable entry in UB4.
Eighth floor with lift access and west‑facing balcony
Set on the eighth floor of a mid‑20th‑century block, this one‑bed flat offers compact, practical living with a private west‑facing balcony and secure entry. Lift access makes the higher level easily reachable; the flat benefits from good mobile signal and fast broadband — useful for working from home or streaming.

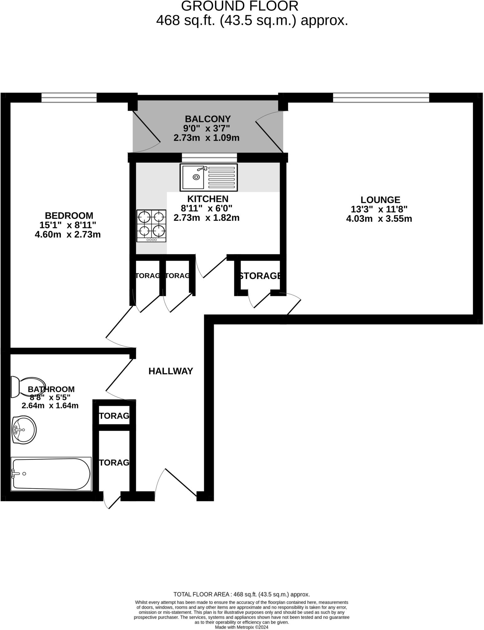
Inside, the layout is straightforward: a medium living room, a compact modern kitchen with gas hob and space for appliances, and a single bedroom with natural light. The accommodation totals about 468 sq ft, suitable for a first home or buy‑to‑let unit. Communal parks and local shops are close by, and several well‑rated primary and secondary schools are within easy reach.

Important facts to note: the property is leasehold with 82 years remaining, and the surrounding area records above‑average crime and higher deprivation indicators. The building dates from the late 1960s/early 1970s and shows typical construction (cavity walls with assumed no added insulation); some communal parts and external fabric may feel dated and could require future investment.

This flat will suit a first‑time buyer wanting low‑maintenance city living or an investor seeking an affordable entry point into the local rental market. Buyers should factor in lease length, potential building maintenance charges, and possible retrofit costs (insulation, windows) when assessing long‑term value.

Property Details

Image Descriptions

Floorplan Description

Rooms

Textual Property Features

Target Audience

AI Tags

Detected Visual Features

EPC Details

Nearby Schools

Nearest Bars And Restaurants

,,,,}

Nearest General Shops

,,}

Nearest Grocery shops

,,}

Nearest Supermarkets

,,}

Nearest Religious buildings

,,}

Nearest Medical buildings

,,,}

Nearest Airports

}

Nearest Leisure Facilities

,,,,}

Nearest Tourist attractions

,,}

Nearest Train stations

,,,,}

Nearest Bus stations and stops

,,,,}

Nearest Hotels

,,}

Tags

Local Market Stats

AirBnB Data

Similar Properties

Meta

High Res Images

Compatible Images

Low res Images

Thumbnails

Raw Images

High Res Floorplan Images

Compatible Floorplan Images

Low res Floorplan Images

FloorplanImages Thumbnail

Raw Floorplan Images