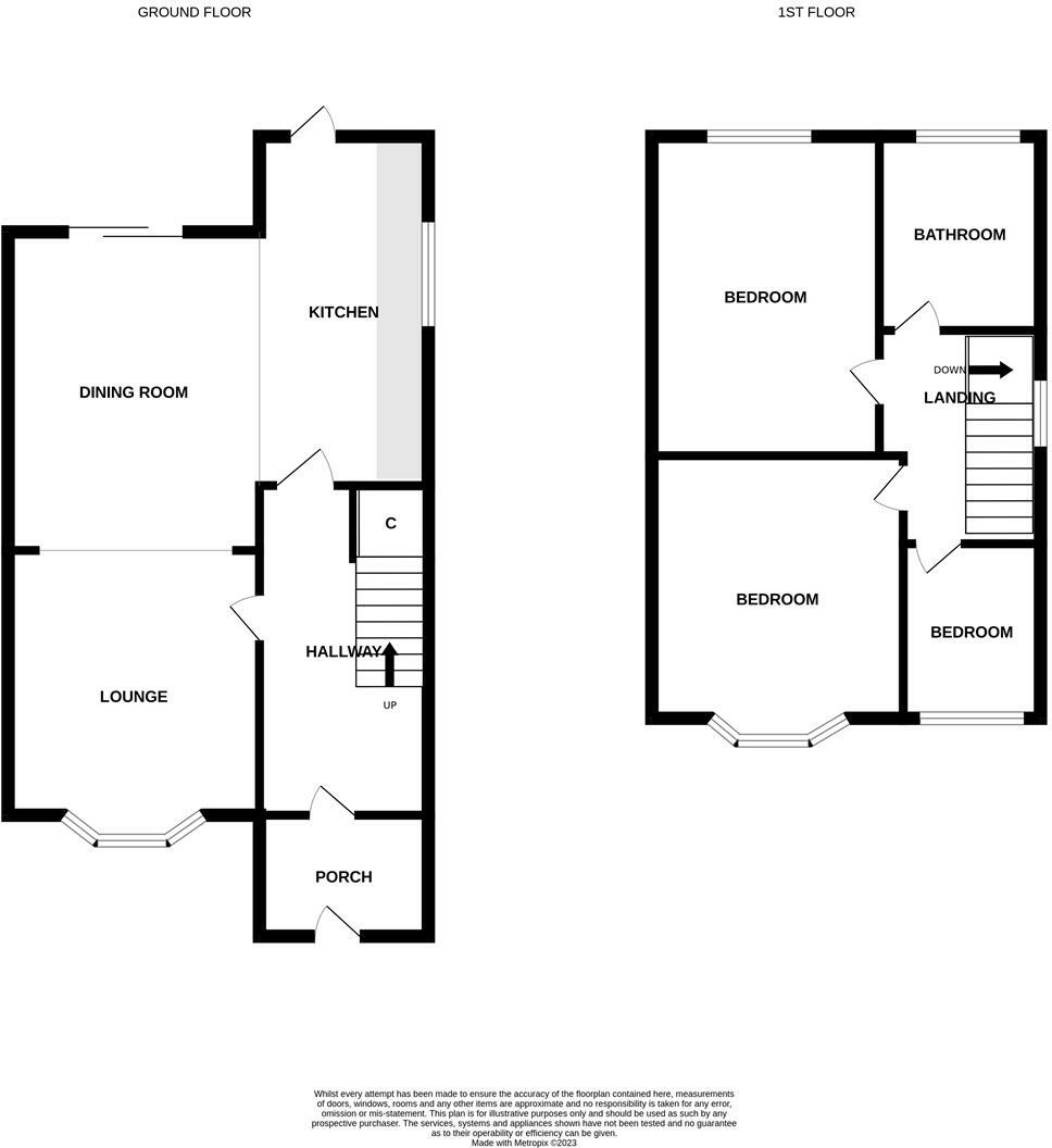
**Standout Features:**
- Spacious three-bedroom semi-detached house
- Modern kitchen with integrated appliances and breakfast bar
- Detached garage with off-road parking
- Enclosed front garden and rear garden predominantly laid to lawn
- Located in a desirable area with access to excellent schools
- Average-sized rooms throughout
**Concerns:**
- Average overall property size may limit expansion options
- Located in a neighbourhood classified as hampered
This charming three-bedroom semi-detached house offers an ideal family living space in a sought-after area. Embrace comfort with a generous lounge, a dining room with patio doors leading to the garden, and a well-appointed kitchen featuring integrated appliances and a breakfast bar. The detached garage adds convenient parking while the enclosed garden provides a safe space for children to play.
Situated within Northgate High School catchment and close to good primary schools, this property is perfect for families prioritizing education. The structural integrity of this mid-20th century home, complete with double glazing and mains gas heating, makes it a solid option for any prospective buyer.
While the house features standard room sizes, its average footprint may limit the potential for future expansions. The neighborhood's classification as hampered may also be a consideration for investment buyers. So don't miss out on this opportunity—arrange your viewing today and see how this home could fit your family's lifestyle!
3 bedroom semi-detached house for sale in Humber Doucy Lane, Ipswich, IP4 — £315,000 • 3 bed • 1 bath • 1109 ft²
3 bedroom semi-detached house for sale in Lonsdale Close, Ipswich, Suffolk, IP4 — £280,000 • 3 bed • 1 bath • 867 ft²
3 bedroom semi-detached house for sale in Roxburgh Road, Ipswich, Suffolk, IP4 — £280,000 • 3 bed • 1 bath • 1133 ft²
3 bedroom semi-detached house for sale in Ascot Drive, Ipswich, IP3 — £300,000 • 3 bed • 1 bath • 948 ft²
3 bedroom semi-detached house for sale in Brunswick Road, IPSWICH, IP4 — £350,000 • 3 bed • 1 bath • 950 ft²
3 bedroom semi-detached house for sale in Thanet Road, Ipswich, IP4 — £285,000 • 3 bed • 1 bath • 797 ft²


































