Generous rooms, garage and west garden in a sought-after Worthing location.
- Four double bedrooms, including large loft conversion master
- Two spacious reception rooms with bay windows and feature fireplace
- West-facing rear garden with patio and good lawn space
- Garage with internal access plus driveway parking for multiple cars
- Just 150 yards from Worthing seafront and local amenities
- Single full bathroom servicing four bedrooms — consider adding facilities
- Cavity walls as built (assumed) without insulation — energy upgrades likely
- Council Tax Band E (above average); typical 1930s maintenance expected
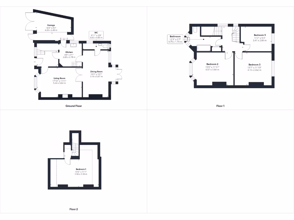
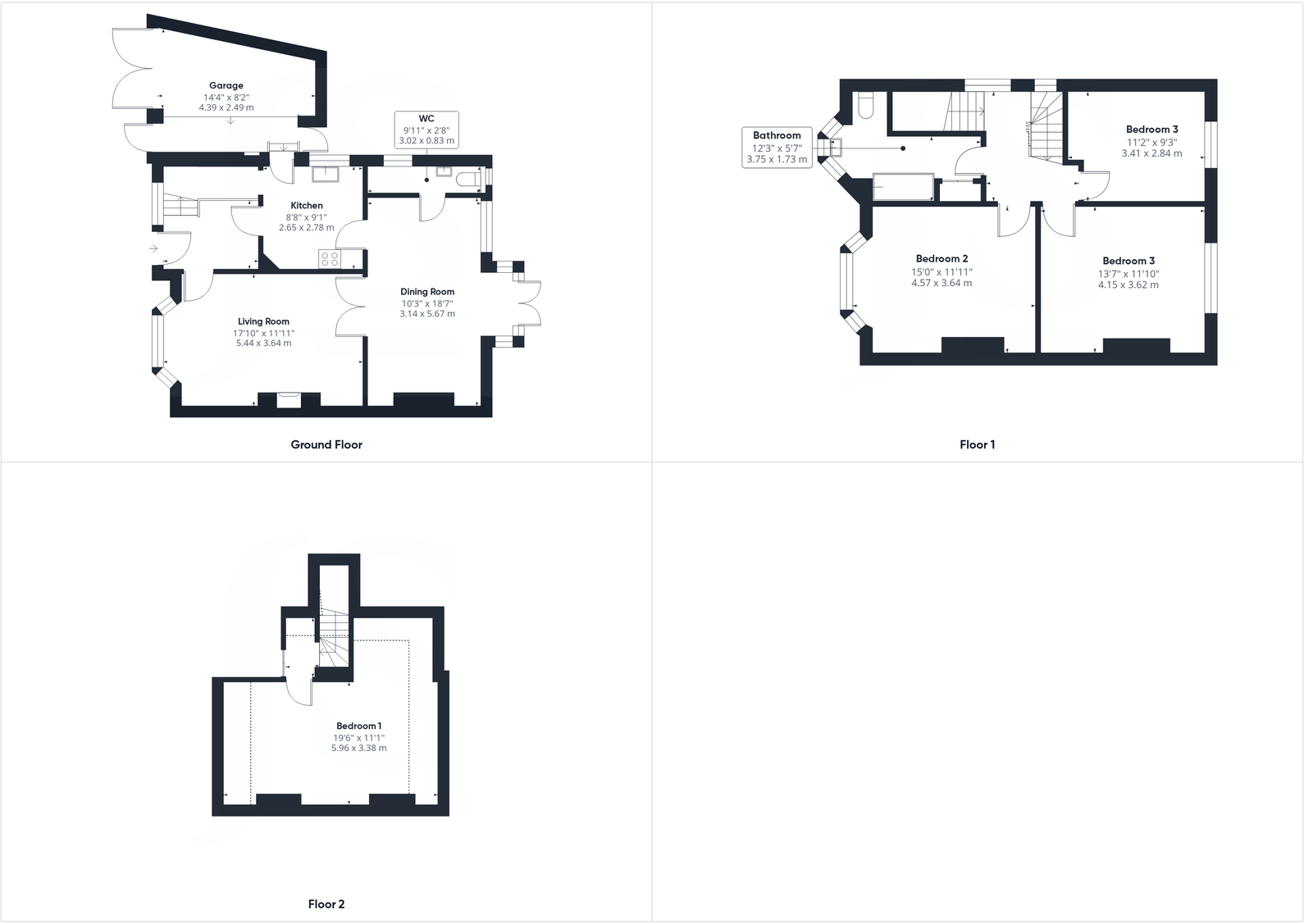
A spacious 1930s family home arranged over three floors, moments from the seafront and designed for everyday family living. The accommodation includes four double bedrooms — one large loft conversion — two generous reception rooms and a stylish fitted kitchen opening to a west-facing garden that catches the afternoon and evening sun.
Practical benefits include an attached garage with internal access, private driveway parking for multiple vehicles and double glazing throughout. The house feels well presented in parts, with a luxurious bathroom suite and a useful ground-floor cloakroom with plumbing for a washing machine. There is clear potential to reconfigure or further develop subject to consents, particularly given the substantial loft bedroom and overall footprint.
Notable points to consider: the property has only one full bathroom for four double bedrooms, and the cavity walls were built without insulation (assumed), so some energy-efficiency improvements may be required. Council tax sits above average and, while the home is generally well maintained, buyers should expect typical 1930s maintenance and possible modernisation to suit contemporary standards. For families wanting generous space near the seafront and good local schools, this offers strong practical appeal with scope to add value.
4 bedroom semi-detached house for sale in Brighton Road, Worthing, West Sussex, BN11 — £675,000 • 4 bed • 2 bath • 1692 ft²
4 bedroom terraced house for sale in Hurst Avenue, Worthing, BN11 — £550,000 • 4 bed • 1 bath • 1472 ft²
4 bedroom end of terrace house for sale in Grand Avenue, Worthing, BN11 — £600,000 • 4 bed • 1 bath • 1572 ft²
4 bedroom detached house for sale in Albany Close, Worthing, BN11 — £720,000 • 4 bed • 2 bath • 1367 ft²
5 bedroom detached house for sale in Windsor Road, Worthing, BN11 2LU, BN11 — £1,250,000 • 5 bed • 3 bath • 3181 ft²
5 bedroom detached house for sale in Albany Close, Worthing, BN11 — £750,000 • 5 bed • 3 bath • 1960 ft²






































































