Spacious first-floor one-bed with underground parking and town-centre convenience.
Long lease remaining (approx. 242 years)
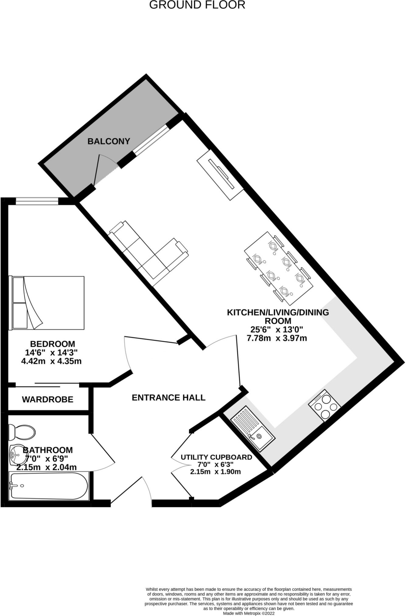
This well-presented one-bedroom first-floor apartment sits in the Apex Apartments development, a modern complex built by Crest Nicholson in the town centre. The open-plan kitchen/living room opens onto a balcony overlooking well-maintained communal grounds, and the flat benefits from double glazing, lift access and an allocated underground parking space. The long lease (approx. 242 years) and clear room layout give straightforward appeal for a first-time buyer or investor.
Practical running costs and layout are clear: the property uses electric room heaters rather than central heating, and the service charge and ground rent are notable ongoing costs (approx. £1,693 p.a. service charge; £200 ground rent). Council tax is described as cheap. The apartment’s size (about 631 sq ft) and included utility/storage cupboard add useful storage for city-centre living.
Location is a key strength — immediate access to shops, restaurants, bus and rail links and several good-rated primary and secondary schools nearby. That convenience supports rental demand or easy daily living but comes with trade-offs: the local area is classified as deprived and the recorded crime level is very high, factors to weigh for long-term living or letting.
Overall, this is a roomy, modern one-bedroom flat with strong central location and low lease-related risk. It suits a buyer wanting a convenient town-centre base or an investor seeking a well-located rental; budget for electric heating and ongoing service charges, and consider local area safety and community factors when deciding to view.
1 bedroom flat for sale in West Green Drive, West Green, RH11 — £205,000 • 1 bed • 1 bath • 549 ft²
1 bedroom apartment for sale in Ifield Road, West Green, Crawley, West Sussex, RH11 — £230,000 • 1 bed • 1 bath • 561 ft²
2 bedroom apartment for sale in West Green Drive, West Green, Crawley, West Sussex, RH11 — £290,000 • 2 bed • 2 bath • 649 ft²
2 bedroom flat for sale in Ifield Road, Crawley, RH11 — £290,000 • 2 bed • 1 bath • 803 ft²
2 bedroom apartment for sale in Ifield Road, West Green, Crawley, West Sussex, RH11 — £280,000 • 2 bed • 2 bath • 756 ft²
1 bedroom flat for sale in West Green Drive, Crawley, RH11 — £210,000 • 1 bed • 1 bath • 564 ft²






































