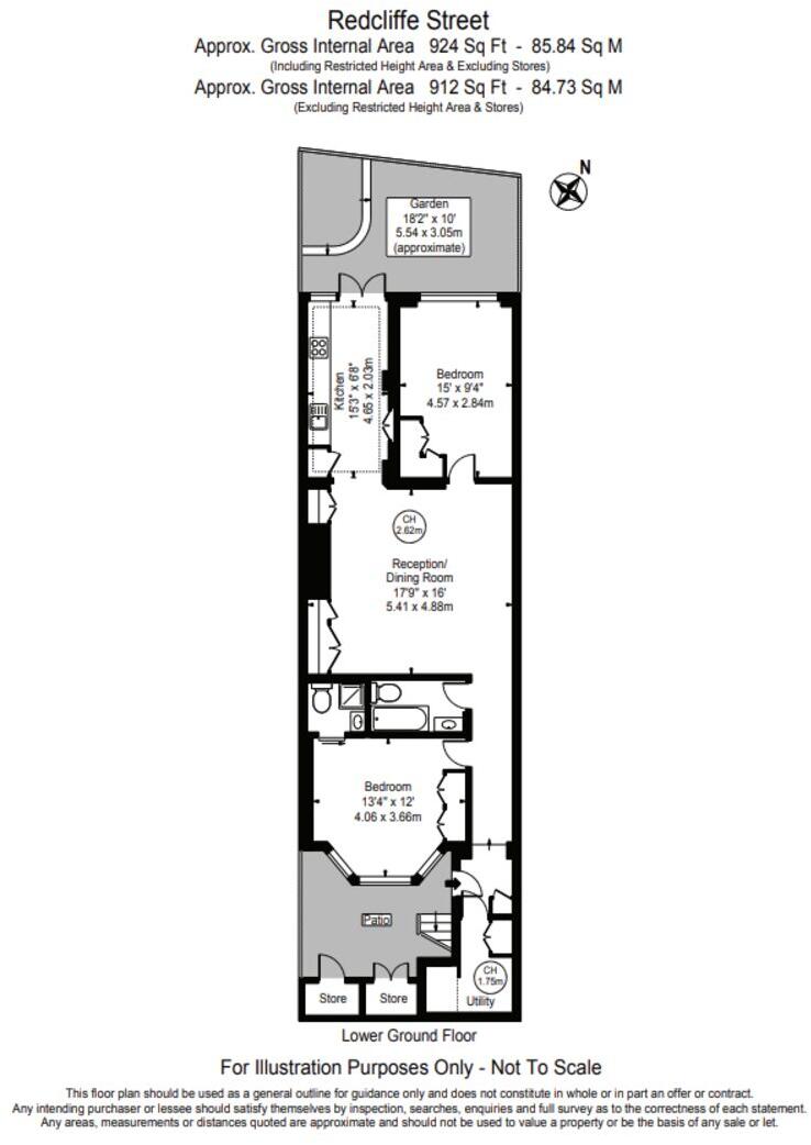
**Standout Features:**
- Spacious 2-bedroom flat with garden and patio
- Modern conservatory-style kitchen
- High-end finishes including marble bathrooms and herringbone wood flooring
- Abundant built-in storage and separate utility room
- Located on a quiet, tree-lined street in Chelsea
- Close proximity to popular shops, cafes, and transport options
**Notable Concerns:**
- Above-average crime rate in the area
- Solid brick walls with no defined glazing type
This impressive 2-bedroom garden flat is a gem nestled on a serene, cherry-tree lined street in Chelsea. With an inviting layout across 924 sqft, the apartment combines luxury and comfort, featuring high ceilings, gorgeous herringbone wood flooring, and modern marble bathrooms with attractive brushed copper accents. The generously proportioned conservatory-style kitchen seamlessly opens to a private, secluded garden and patio, making it perfect for relaxation or entertaining guests.
Families will appreciate the excellent local schools rated Outstanding, as well as a wealth of amenities including restaurants, shops, and public transport nearby, notably the Earls Court Underground station. While the area has an above-average crime rate, the enchanting surroundings and desirable features of this flat create an ideal urban retreat. With such unique offerings, interest in this property is bound to be high, so act quickly to seize this chance for contemporary inner-city living.
2 bedroom flat for sale in London, SW3 — £1,350,000 • 2 bed • 2 bath • 932 ft²
2 bedroom flat for sale in Cathcart Road, London, SW10 — £1,500,000 • 2 bed • 2 bath • 1112 ft²
2 bedroom flat for sale in Redcliffe Square, London, SW10 — £1,395,000 • 2 bed • 2 bath • 1480 ft²
2 bedroom flat for sale in Coleherne Road, Chelsea, SW10 — £800,000 • 2 bed • 2 bath • 750 ft²
2 bedroom flat for sale in Finborough Road, Chelsea, London, SW10 — £750,000 • 2 bed • 2 bath • 1033 ft²
2 bedroom flat for sale in Redcliffe Square, Chelsea, London, SW10 — £1,250,000 • 2 bed • 1 bath • 749 ft²










































