Modern city living with concierge, parking and strong rental appeal.
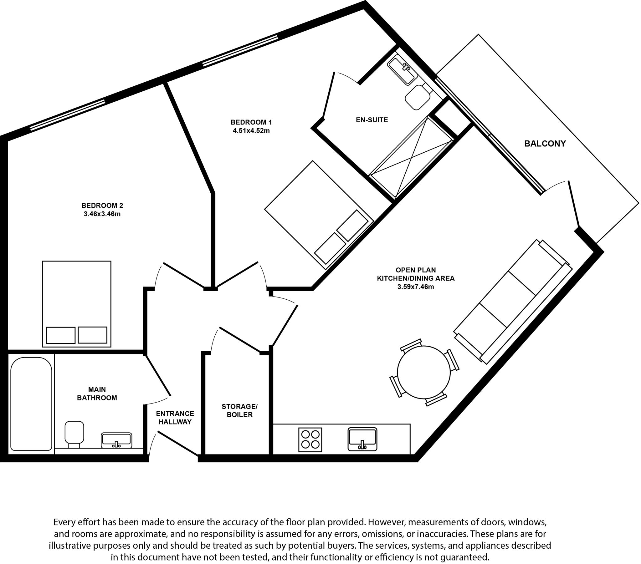
Two double bedrooms and two bathrooms, open-plan living
A practical two-bedroom apartment in Gateway South, presented as a strong buy-to-let or first home close to Leeds city centre. The 742 sq ft open-plan living space opens onto a balcony with a quiet courtyard aspect; underground parking, 24-hour concierge and an on-site gym add convenience that appeals to long-term tenants and commuters.
Located within a large contemporary development finished in 2006, the apartment sits a short walk from Leeds station, shopping, bars and cultural destinations. The lease is long (around 131 years remaining) and running costs are transparent: service charge approx. £2,870 per year and ground rent £250 (next review 2031). Council tax is moderate.
Practical considerations: heating is electric (room heaters), which can raise running costs compared with gas systems. The building sits in a cosmopolitan, student-focused area—good rental demand but potential for occasional noise. EWS1/ exterior fire-safety documentation should be confirmed prior to purchase.
Overall this is a well-located, low-flood-risk apartment suited to investors seeking steady rental income or buyers wanting convenient city-centre living with parking and on-site amenities. The flat is average-sized internally and will suit buyers wanting a modern, low-maintenance base rather than a period property with character.
2 bedroom apartment for sale in Gateway South, Leeds City Centre, LS9 — £192,500 • 2 bed • 2 bath
2 bedroom apartment for sale in Gateway South, Leeds City Centre, LS9 — £185,000 • 2 bed • 2 bath • 742 ft²
2 bedroom apartment for sale in Gateway East, Leeds City Centre, LS9 — £182,000 • 2 bed • 2 bath • 700 ft²
2 bedroom apartment for sale in Gateway South, Leeds City Centre, LS9 — £165,000 • 2 bed • 2 bath
2 bedroom apartment for sale in Gateway West, Leeds City Centre, LS9 — £187,500 • 2 bed • 2 bath • 750 ft²
2 bedroom apartment for sale in Gateway East, Leeds City Centre, LS9 — £185,000 • 2 bed • 2 bath










































