Move-in ready family home with garden and garage in a convenient suburban setting.
- Four bedrooms including principal en-suite
- Bright open-plan kitchen/dining/family room
- Enclosed rear garden; large driveway and integral garage
- Presented in walk-in condition; gas central heating
- Compact total floor area (867 sq ft) for four beds
- Area scores high on deprivation indices (consider local context)
- Fast broadband but average mobile signal
- Council tax band moderate; freehold tenure
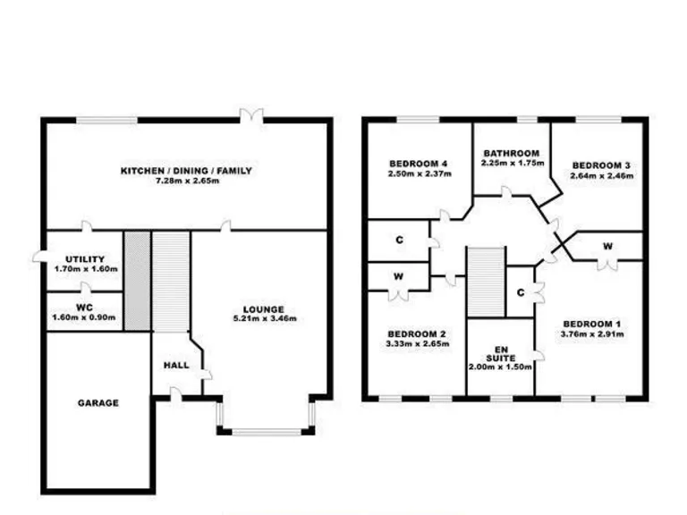
A bright, modern four-bedroom detached villa arranged over two floors and presented in move-in condition. The home centres on a front-facing lounge and a spacious open-plan kitchen/dining/family area with French doors to the enclosed rear garden. Practical additions include a separate utility, downstairs WC, integrated garage and a large monoblocked driveway.
Upstairs offers four well-proportioned bedrooms, the principal with en-suite, and a family bathroom with separate shower and bath. At 867 sq ft the overall footprint is compact for a four-bedroom house, so rooms and storage feel efficient rather than generous. The property benefits from gas central heating, PVC double glazing and fast broadband, making it ready for everyday family life.
Set on a quiet cul-de-sac in a modern Moodiesburn development, the house sits close to local shops, schools and parks. Commuters have straightforward access to the M80/M73 and nearby stations for routes into Glasgow and beyond. The plot provides a private rear garden for children and pets and straightforward low-maintenance outdoor space.
Important practical points: the neighbourhood scores higher on area deprivation indices, which may influence perception and amenities; council tax is moderate. Mobile signal is average. For buyers seeking an immediately habitable family home with good transport links and a low-maintenance plot, this house offers clear value — while those needing larger, more spacious interiors should note the compact overall size.
4 bedroom detached villa for sale in Westdale Drive, Moodiesburn, Glasgow, G69 0NP, G69 — £299,999 • 4 bed • 3 bath • 1113 ft²
4 bedroom detached house for sale in Strathord Place, Moodiesburn, Glasgow, G69 — £270,000 • 4 bed • 2 bath • 1517 ft²
4 bedroom detached house for sale in Elder Drive, Glasgow, G69 — £320,000 • 4 bed • 2 bath • 1270 ft²
4 bedroom detached house for sale in Clossfoot Place, Moodiesburn, G69 — £325,000 • 4 bed • 2 bath • 1421 ft²
4 bedroom detached house for sale in 5 Viewfield Avenue, Milton of Campsie, Glasgow, G66 — £295,000 • 4 bed • 1 bath • 1040 ft²
4 bedroom detached house for sale in Jackson Crescent, Moodiesburn, Glasgow, G69 — £300,000 • 4 bed • 2 bath • 1130 ft²


































































































































































































