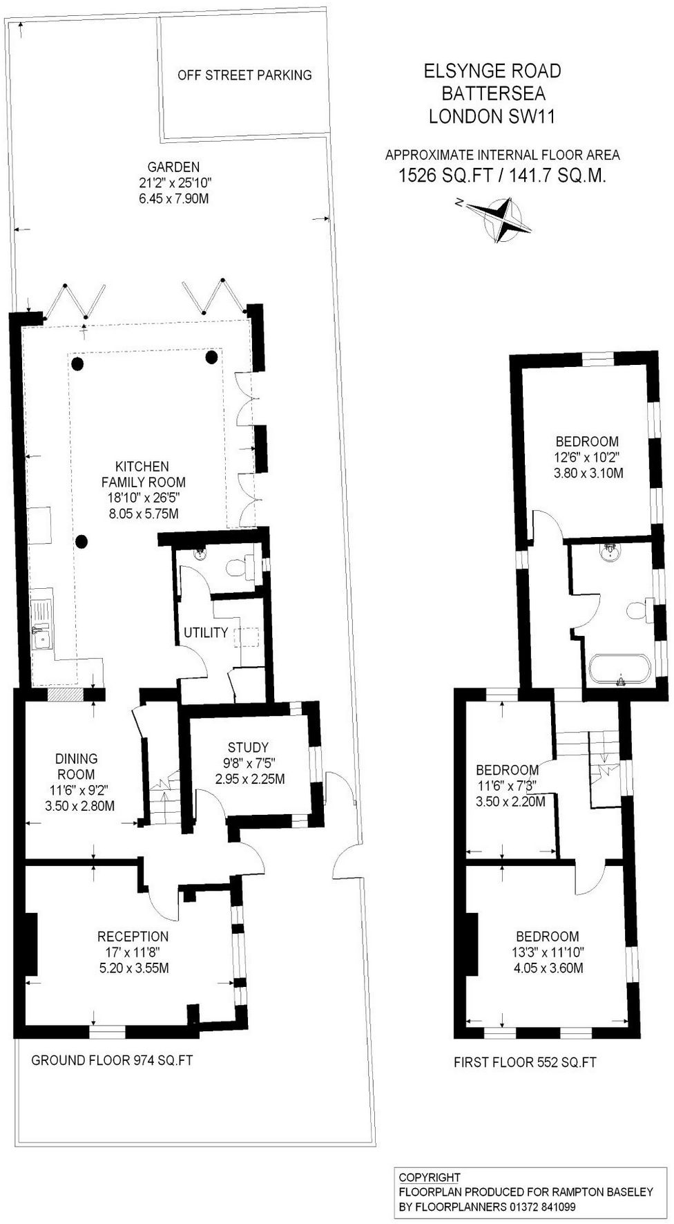
3 bedrooms and versatile study/ground-floor bedroom option
Built in the mid‑1800s, this 1,526 sq ft Victorian semi offers a rare combination of period detail and bright, contemporary family living. High ceilings, sash windows and original cornicing frame a formal reception and dining room, while a generously glazed kitchen/family extension with skylights and full-width bi-folds creates strong indoor–outdoor flow to the rear garden. Off-street parking and a walled front garden add valuable space in this inner‑city location close to Wandsworth Common.
The ground floor layout includes a study (currently used as a bedroom), utility and a WC, while three first‑floor bedrooms share a single family bathroom. The property is well suited to families and commuters seeking easy access to Clapham Junction and local schools, or buyers wanting a character home with modern entertaining space. The large footprint supports flexible use, with potential to reconfigure or improve energy performance.
Buyers should note some practical drawbacks: the property has an EPC rating of D, presumed solid brick walls with no added insulation, and falls into Council Tax Band F, so running costs may be above average. Crime statistics in the immediate area are above average; the house will particularly suit those prioritising space, location and period character over a turnkey low‑maintenance investment.



































































