**Standout Features:**
- Immaculately maintained two-bedroom detached bungalow
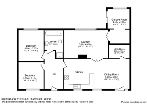
- Generous floor area of approximately 1219 sq ft
- Stylish open-plan kitchen/diner with modern finishes and integrated appliances
- Cozy lounge featuring a log-burning stove
- Versatile garden room, ideal for a home office or relaxation space
- Extensive gravel driveway providing ample off-street parking
- Private rear garden with artificial lawn and decked seating area
- EPC Rating: C, Council Tax Band D
- Excellent road links to Durham and Newcastle
Nestled in the quaint hamlet of Iveston, this spacious detached bungalow combines comfort and modern design, making it perfect for families, first-time buyers, or those seeking a tranquil retreat. The welcoming entrance leads to two generous double bedrooms and a contemporary bathroom, offering a blend of practicality and style. At the heart of the home, the open-plan kitchen/diner becomes an entertainer's dream, complemented by a utility room for convenience. Relax in the bright garden room or by the warmth of the log-burning stove in the lounge, creating an inviting atmosphere.
Outside, the private rear garden is designed for outdoor gatherings, while the extensive driveway ensures hassle-free parking. Enjoy a semirural lifestyle with easy access to nearby amenities and schools, including several rated 'Good' by Ofsted. Although nestled in a more rural area, the slow broadband speed may be a concern for some. With a limited number of properties available in this serene location, early viewing is highly recommended to secure your chance at this stunning home. Don’t miss out on the opportunity to make this your dream retreat!
2 bedroom terraced house for sale in Iveston Lane, Consett, Durham, DH8 — £185,000 • 2 bed • 1 bath • 859 ft²
3 bedroom semi-detached house for sale in Raptor Cottage, Iveston, DH8 — £375,000 • 3 bed • 1 bath
2 bedroom detached bungalow for sale in Drover Road, Consett, DH8 — £249,950 • 2 bed • 1 bath • 805 ft²
2 bedroom bungalow for sale in Meadow View, Consett, Durham, DH8 — £170,000 • 2 bed • 1 bath • 507 ft²
2 bedroom detached bungalow for sale in Sunningdale, Consett, DH8 — £149,000 • 2 bed • 1 bath • 756 ft²
3 bedroom bungalow for sale in The Dene, Medomsley, DH8 — £125,000 • 3 bed • 1 bath • 810 ft²


























































































