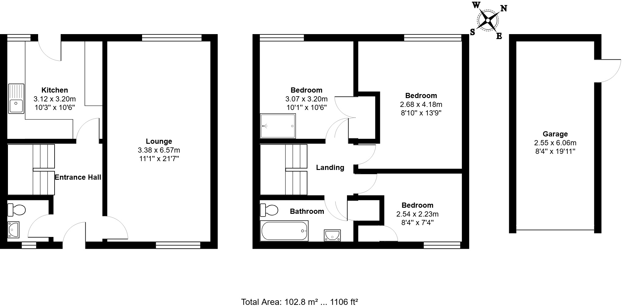
**Standout Features:**
- Three spacious bedrooms, including two doubles
- Generous 21'6" sitting room
- South-facing, landscaped rear garden with a summer house
- Ground floor cloakroom plus first floor bathroom
- Off-road parking and attached garage with power
- Chain-free sale for a smooth transition
**Summary:**
Discover this charming three-bedroom semi-detached home nestled in a quiet cul-de-sac in Trimley St Mary. Perfectly designed for family living, this property features a generous sitting room that stretches 21'6", providing ample space for relaxation and entertaining. The kitchen is functional with modern appliances and an easy access layout. Enjoy a beautifully landscaped, south-facing garden that boasts a small pond and summer house—positioned perfectly for outdoor enjoyment and gatherings.
With added conveniences like a downstairs cloakroom and off-road parking leading to a garage, this property promises both comfort and practicality. While the bedrooms offer a cozy retreat, they present an inviting canvas for personalization. The home is move-in ready, with no onward chain, making it an exciting opportunity for first-time buyers or families. Don’t miss out on this delightful residence, which combines space, location, and the charm of suburban living!
3 bedroom detached house for sale in Hunters End, Trimley St. Mary, Felixstowe, IP11 — £330,000 • 3 bed • 1 bath • 1012 ft²
3 bedroom semi-detached house for sale in Dains Place, Trimley St. Mary, IP11 — £280,000 • 3 bed • 1 bath • 914 ft²
3 bedroom semi-detached house for sale in High Road, Trimley St Mary, Felixstowe, IP11 — £335,000 • 3 bed • 1 bath • 1045 ft²
3 bedroom detached house for sale in Drovers Court, Trimley St. Mary, Felixstowe, IP11 — £275,000 • 3 bed • 1 bath • 623 ft²
3 bedroom detached house for sale in Woodlands Avenue, Trimley St. Mary, Felixstowe, IP11 — £350,000 • 3 bed • 3 bath • 611 ft²
3 bedroom semi-detached house for sale in Meadowlands, Ipswich, IP10 — £277,500 • 3 bed • 1 bath • 926 ft²














































































