N16 7PA - Restaurant for sale in Stoke Newington High Street, Hackney…

View on Property Piper

Restaurant for sale in Stoke Newington High Street, Hackney, N16

Summary - STOKE NEWINGTON HIGH STREET N16 7PA

1 bed 1 bath Restaurant

Turnkey licensed restaurant on Stoke Newington High Street, ready to trade..
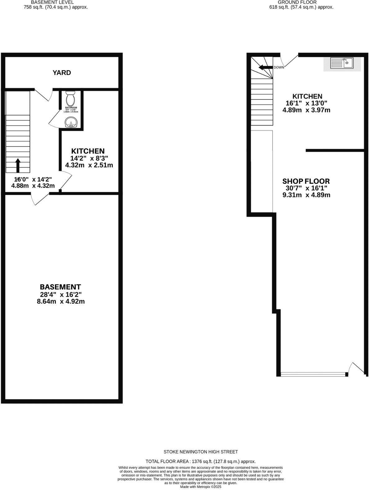
Approx. 1,376 sq ft multi‑story Victorian unit
A rare lease opportunity on Stoke Newington High Street: a fully fitted, licensed café/restaurant occupying approx. 1,376 sq ft across a multi‑story Victorian mixed‑use building. The premises benefits from A3 planning use, an on‑site alcohol premises licence and a turnkey fit-out including a commercial kitchen and extraction system — ready for immediate trade.

Positioned on a busy high street with strong footfall and excellent transport links (Stoke Newington Overground and multiple bus routes), the unit currently records weekly takings of approximately £3,000–£4,000. The area attracts an inner‑city cosmopolitan clientele and a high proportion of degree‑educated residents, supporting food and beverage concepts aimed at independent and trend‑led customers.

Important considerations: there are only 12 years remaining on the lease and mortgage lenders may refuse lending against the lease length. The surrounding area records higher crime and relative deprivation indices, which should be factored into operating costs, insurance and security planning. Annual rent is £28,500 and the asking premium for the lease is £110,000.

This property suits experienced operators or investors seeking an income‑producing central London restaurant with an established trading history and alcohol licence. It offers immediate trading potential but requires buyers to accept lease length risk and local trading‑area challenges.

Property Details

Image Descriptions

Floorplan Description

Rooms

Textual Property Features

Target Audience

AI Tags

Detected Visual Features

Nearby Schools

Nearest Bars And Restaurants

,,,,}

Nearest General Shops

,,}

Nearest Grocery shops

,,}

Nearest Supermarkets

,,}

Nearest Religious buildings

,,}

Nearest Medical buildings

,,,}

Nearest Airports

,}

Nearest Leisure Facilities

,,,,}

Nearest Tourist attractions

,,}

Nearest Train stations

,,,,}

Nearest Bus stations and stops

,,,,}

Nearest Hotels

,,}

Tags

Local Market Stats

AirBnB Data

Similar Properties

Meta

High Res Images

Compatible Images

Low res Images

Thumbnails

Raw Images

High Res Floorplan Images

Compatible Floorplan Images

Low res Floorplan Images

FloorplanImages Thumbnail

Raw Floorplan Images