Move-in ready home near trains and local amenities for first-time buyers.
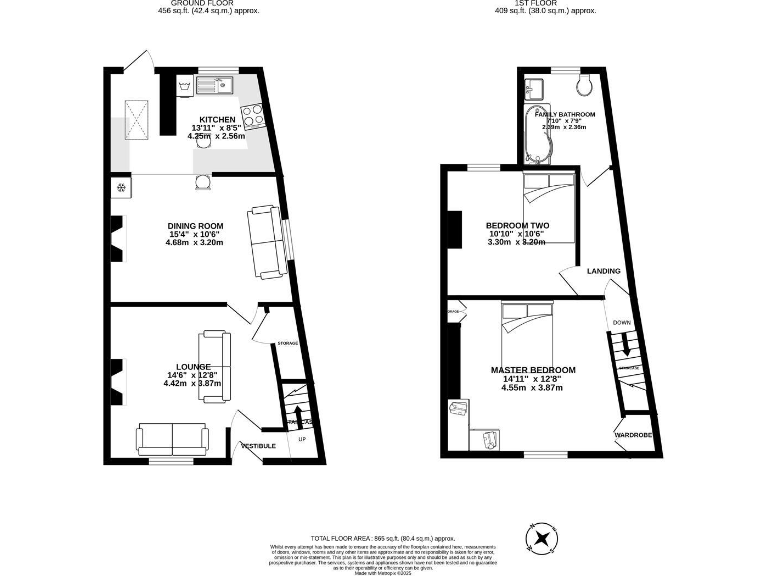
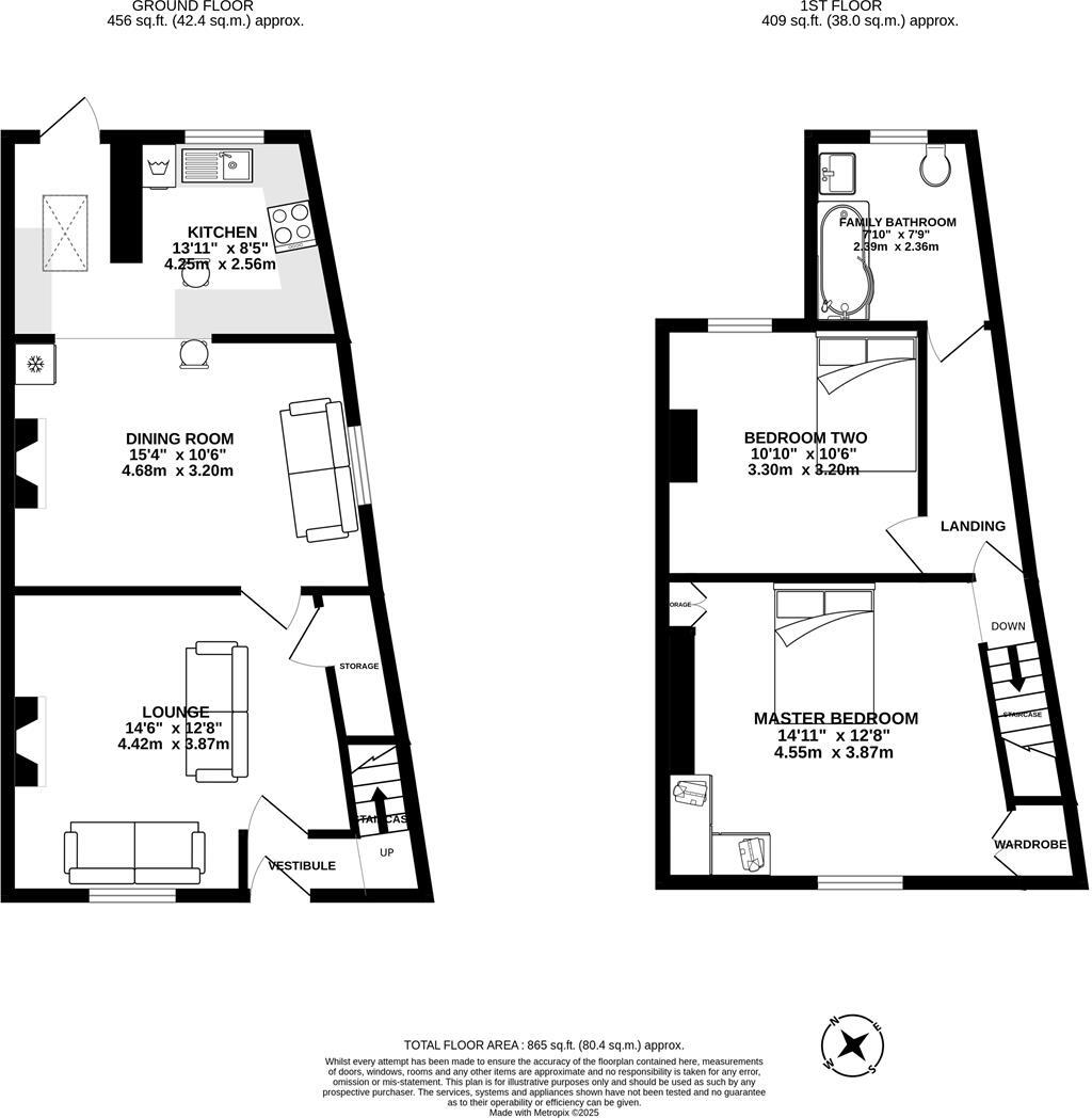
- Fully renovated two-bedroom end-terrace, approx 865 sq.ft
- Traditional stone facade with modern interior finishes
- Two double bedrooms and contemporary three-piece bathroom
- Private rear yard with raised decking, low-maintenance
- Freehold tenure; cheap council tax banding
- On-street parking only; no off-street drive or garage
- EPC rating D; stone walls assumed uninsulated (may need work)
- Compact rooms typical of period terraces, limited footprint
This charming stone-fronted end-terrace has been fully renovated throughout, presenting a modern two-bedroom home while retaining period character. Bright living spaces, a separate dining room and a fitted kitchen with integrated appliances give practical room for everyday life. The private rear yard with raised decking is low-maintenance and well suited to alfresco seating.
Placed on a picturesque Church Road in Bamber Bridge, the house sits within walking distance of shops, eateries, schools and Bamber Bridge train station, with easy access to the M6, M61 and M65 for commuters. At approximately 865 sq.ft and offered freehold, it provides an affordable step onto the ladder for first-time buyers.
Buyers should note the property has a compact internal footprint typical of traditional terraces and on-street parking only. The EPC is rated D and the stone walls are assumed to lack insulation, so buyers wanting maximum energy efficiency may consider further insulation or upgrades. Overall, the home is move-in ready but offers sensible scope for small improvements to increase comfort and reduce running costs.
2 bedroom end of terrace house for sale in Mounsey Road, Bamber Bridge, Preston, Lancashire, PR5 — £125,000 • 2 bed • 1 bath • 772 ft²
4 bedroom end of terrace house for sale in Tunley Holme, Bamber Bridge, PR5 — £180,000 • 4 bed • 1 bath • 1174 ft²
2 bedroom end of terrace house for sale in Oakland Street, Bamber Bridge, Preston, PR5 — £129,950 • 2 bed • 1 bath • 846 ft²
2 bedroom end of terrace house for sale in White Admiral Place, Bamber Bridge, Preston, Lancashire, PR5 — £200,000 • 2 bed • 1 bath • 600 ft²
3 bedroom terraced house for sale in Dean Street, Bamber Bridge, Preston, Lancashire, PR5 — £135,000 • 3 bed • 1 bath • 807 ft²
2 bedroom terraced house for sale in Mounsey Road, Bamber Bridge, Preston, Lancashire, PR5 — £115,000 • 2 bed • 1 bath • 755 ft²


























































































