Spacious four-bedroom home backing onto parkland — quality new build living.
Park-facing plot backing onto Holt Country Park and woodland
Stone and flint frontage with Georgian Revival aesthetic
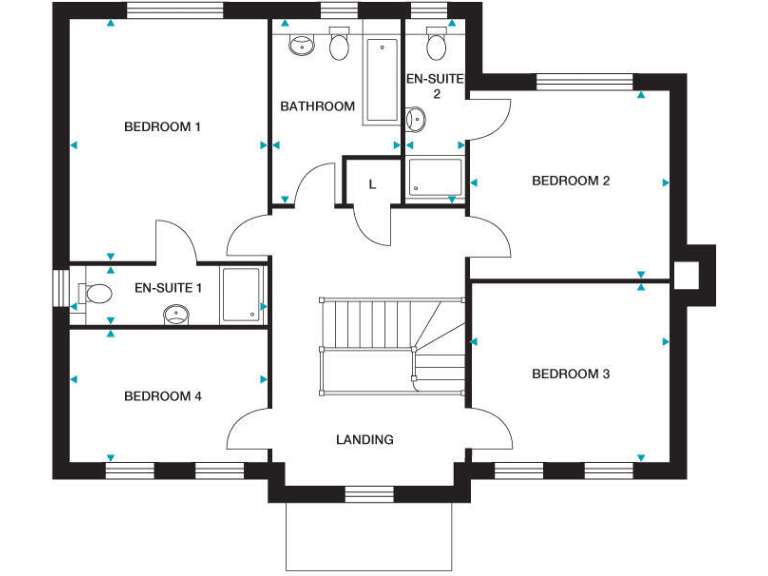
Four bedrooms; two bedrooms with en-suite bathrooms
High-spec finish: underfloor heating and air source heat pump
Double garage plus side-by-side off-street parking for two cars
10-year NHBC warranty and developer aftercare included
Local broadband reported slow; check connectivity for remote working
Crime levels above average in the wider area — verify local statistics
Park View’s final Queenswood home is a spacious four-bedroom detached new build with a stone and flint frontage and generous plot backing onto Holt Country Park. The layout suits buyers seeking easy access to green space, countryside walks and the North Norfolk coast, with a large living room and open-plan kitchen/diner that both open to the private rear garden.
Specification highlights include an air source heat pump, underfloor heating, high-quality Symphony kitchen with quartz worktops, oak internal doors, and two en-suite bedrooms. Practical features such as a utility room, ground-floor study and a double garage with side-by-side parking add day-to-day convenience and family flexibility.
This is a new-build freehold with a 10-year NHBC warranty and developer aftercare, which reduces near-term maintenance risk. The site is built beside extensive Green Flag woodland, offering attractive long-term amenity and outlook — a key value driver for buyers prioritising tranquillity and outdoor recreation.
Notable practical drawbacks are highlighted plainly: local broadband speeds are reported as slow, and crime levels are above average in the wider area. The development is in a small town fringe setting with some area deprivation indicators; buyers should verify local services, school catchments and travel needs before committing.
4 bedroom detached house for sale in Beresford Road,
Holt,
Norfolk,
NR25 6EW, NR25 — £620,000 • 4 bed • 1 bath • 1539 ft²
4 bedroom detached house for sale in Beresford Road,
Holt,
Norfolk,
NR25 6EW, NR25 — £495,000 • 4 bed • 1 bath • 1244 ft²
2 bedroom semi-detached house for sale in Beresford Road,
Holt,
Norfolk,
NR25 6EW, NR25 — £295,000 • 2 bed • 1 bath • 794 ft²
3 bedroom semi-detached house for sale in Beresford Road,
Holt,
Norfolk,
NR25 6EW, NR25 — £325,000 • 3 bed • 1 bath • 897 ft²
2 bedroom semi-detached house for sale in Beresford Road,
Holt,
Norfolk,
NR25 6EW, NR25 — £295,000 • 2 bed • 1 bath • 790 ft²
3 bedroom semi-detached house for sale in Beresford Road,
Holt,
Norfolk,
NR25 6EW, NR25 — £325,000 • 3 bed • 1 bath • 897 ft²






















