Large garden, excellent schools, and room to grow for family life.
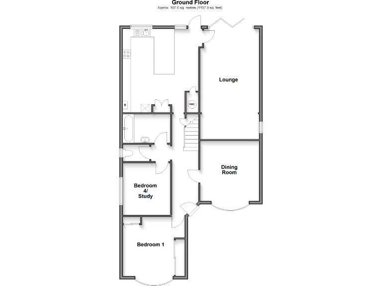
Four bedrooms plus flexible ground-floor study/bedroom
This spacious four-bedroom chalet offers flexible family living in sought-after Hempstead, close to highly regarded primary and secondary schools. The layout includes a generous 21ft lounge and a large 16ft kitchen/breakfast room, ideal for daily family life and entertaining. The adaptable ground-floor rooms and first-floor bedrooms suit a growing family's changing needs.
Set on a large, mature plot, the property benefits from a private, well-established rear garden and ample off-street parking, including a long garage. Large bay windows bring plenty of natural light and pleasant outlooks across nearby woodland and fields. Broadband and mobile signals are strong, supporting home working and family connectivity.
The house dates from the 1930s–40s and is traditionally constructed with cavity walls, mains gas boiler and radiators. While well-presented in many areas, buyers should note the property is an average-sized overall home on a large plot and may benefit from modernisation in places to suit contemporary tastes. Council tax is expensive — an important running cost for prospective purchasers.
Positioned for easy commuting with nearby motorway links and local shopping, this home suits families seeking space, schooling close by and access to countryside walks. Verify measurements, tenure and any extension consents before purchase to confirm suitability.
4 bedroom detached house for sale in The Everglades, Hempstead, Gillingham, Kent, ME7 — £625,000 • 4 bed • 2 bath • 1421 ft²
4 bedroom chalet for sale in Hempstead Road, Hempstead, Gillingham, ME7 — £575,000 • 4 bed • 3 bath • 1816 ft²
4 bedroom bungalow for sale in Hempstead Road, Hempstead, Gillingham, Kent, ME7 — £475,000 • 4 bed • 2 bath • 1305 ft²
5 bedroom detached house for sale in Springvale, Rainham, ME8 — £700,000 • 5 bed • 3 bath • 1994 ft²
4 bedroom detached house for sale in Hempstead Road, Hempstead, Gillingham, ME7 — £595,000 • 4 bed • 2 bath • 1689 ft²
4 bedroom detached house for sale in Lambsfrith Grove, Hempstead, Gillingham, Kent, ME7 — £625,000 • 4 bed • 2 bath • 1416 ft²






























































































