Compact two-bedroom home with private west-facing garden and excellent transport links.
Long lease over 900 years, very low outgoings
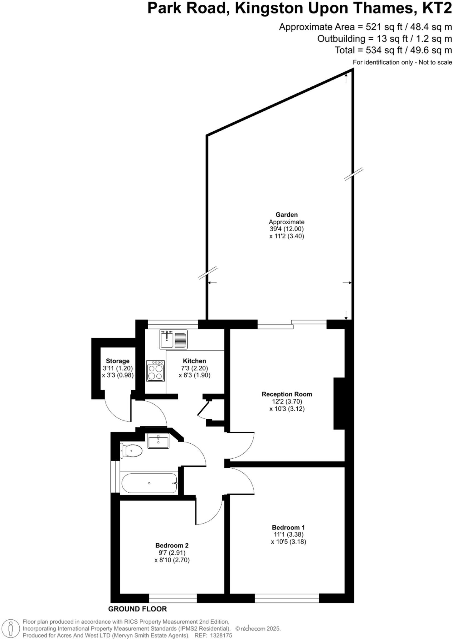
This well-presented 1930s ground-floor maisonette offers a compact, characterful home with modern comforts and unusually long lease security. Two double bedrooms, a bright lounge/dining room and smart patio doors lead straight out to a sunny westerly private garden — ideal for evening relaxation.
Practical long-term benefits include a lease of over 900 years, low outgoings, double glazing throughout and mains gas central heating with boiler and radiators. The location is a strong draw: quiet Park Road near Tudor Drive, short walks to Richmond Park and Kingston town centre, good bus links, and several Outstanding or Good local schools.
Be upfront about the limits: the property is small at around 521 sq ft and is a ground-floor maisonette, so internal space is limited. The gardens are multiple but currently overgrown and will need regular maintenance or landscaping to reach their potential. The building is solid brick as originally constructed and may lack cavity insulation, which could affect heating costs despite double glazing.
Overall, this maisonette suits first-time buyers, downsizers or investors seeking a low-maintenance, well-located property with long lease security and outside space. It presents an opportunity to personalise cosmetic details and garden areas while benefiting from a sought-after North Kingston address and very affordable ongoing costs.
2 bedroom flat for sale in Wilmer Close, Kingston Upon Thames, KT2 — £499,950 • 2 bed • 1 bath • 738 ft²
2 bedroom maisonette for sale in Kelvedon Close, Kingston Upon Thames, KT2 — £525,000 • 2 bed • 1 bath • 743 ft²
2 bedroom maisonette for sale in Queens Road, Kingston Upon Thames, KT2 — £595,000 • 2 bed • 1 bath • 654 ft²
2 bedroom flat for sale in Park Road, Kingston Upon Thames, KT2 — £379,500 • 2 bed • 1 bath • 500 ft²
2 bedroom apartment for sale in Park Road, Kingston upon Thames, KT2 — £450,000 • 2 bed • 1 bath • 779 ft²
2 bedroom flat for sale in Tudor Drive, Kingston Upon Thames, KT2 — £359,950 • 2 bed • 1 bath • 587 ft²






























































