BL1 5DW - 5 bed spacious 1920s family home in Dalegarth Avenue, BL1 5…

View on Property Piper

5 bedroom detached house for sale in Dalegarth Avenue, Heaton, BL1 5, BL1

Summary - STONYWAY, DALEGARTH AVENUE BL1 5DW

5 bed 3 bath Detached

1929 detached family home on a large south-facing plot near top schools.
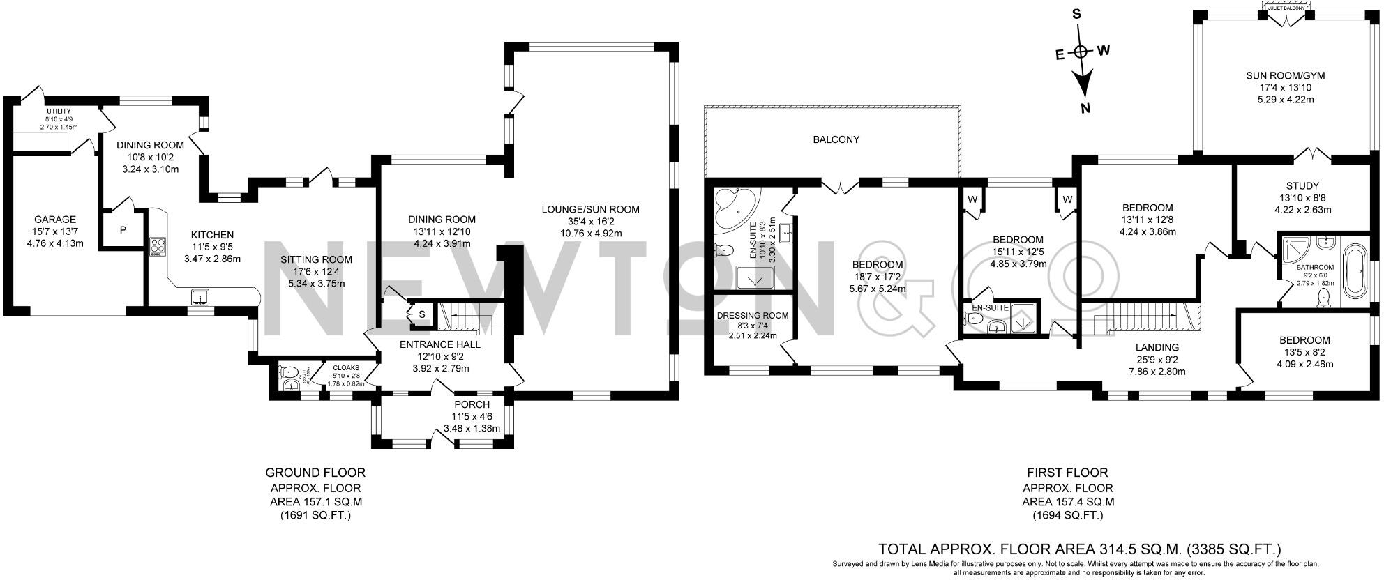
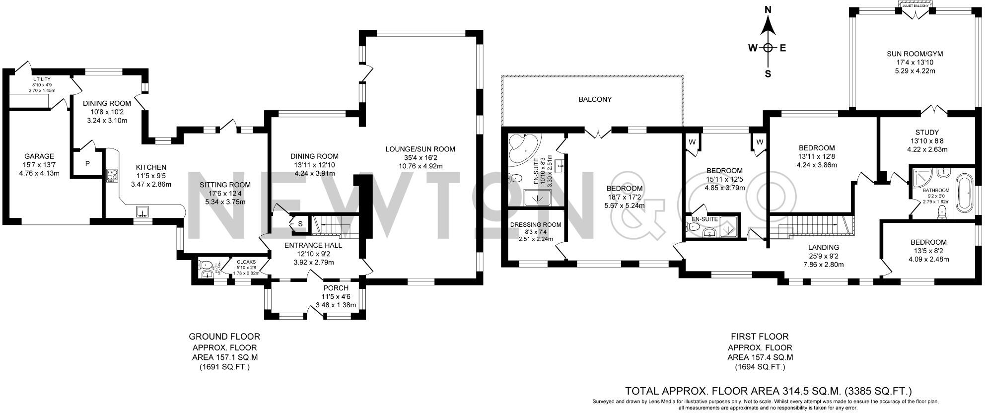
Five bedrooms and three bathrooms plus downstairs WC
Set on an exceptionally large plot in sought-after Lostock, this 1929 detached home combines authentic period detail with generous modern living spaces. The house offers five bedrooms, three bathrooms and flexible reception rooms including a study and a garden room — ideal for family life, home working and entertaining. The south-facing rear garden, extensive patio areas and woodland edge have previously hosted large events and provide excellent scope for family activities or a future extension (subject to consents).

Original features such as stained glass windows, the original front door and solid wood internal doors give the house strong character, while thoughtful modern interventions create comfortable everyday living: a large open-plan kitchen/dining/living hub, ensuite principal bedroom with dressing room, and multiple outdoor access points. Practical benefits include substantial off-street parking (double-width driveway, garage, carport and additional gravel driveway) and easy access to top local schools, Lostock station and the M61 for commuter routes.

Buyers should note a few practical considerations. Broadband speeds are described as slow, which may affect heavy home-working or streaming without upgrade. The cavity walls are described as uninsulated (assumed), so buyers should budget for potential insulation or energy-efficiency improvements. Council tax is reported as quite expensive. While the property has been modernised, some rooms and systems may benefit from updating to suit contemporary finishes and technology.

Overall this is a characterful, spacious family home in a very affluent neighbourhood with excellent schooling and commuting links. It will suit a family wanting a long-term home with garden, entertaining potential and scope to personalise or extend. Viewing is recommended to appreciate the scale, period detail and garden setting in person.

Property Details

Image Descriptions

Floorplan Description

Rooms

Textual Property Features

Target Audience

AI Tags

Detected Visual Features

EPC Details

Nearby Schools

Nearest Bars And Restaurants

,,,,}

Nearest General Shops

,,}

Nearest Grocery shops

,,}

Nearest Supermarkets

,,}

Nearest Religious buildings

,,}

Nearest Medical buildings

,,,}

Nearest Airports

,}

Nearest Leisure Facilities

,,,,}

Nearest Tourist attractions

,,}

Nearest Train stations

,,,,}

Nearest Bus stations and stops

,,,,}

Nearest Hotels

,,}

Tags

Local Market Stats

AirBnB Data

Similar Properties

Meta

High Res Images

Compatible Images

Low res Images

Thumbnails

Raw Images

High Res Floorplan Images

Compatible Floorplan Images

Low res Floorplan Images

FloorplanImages Thumbnail

Raw Floorplan Images