Single-storey living with big garden and ample parking for downsizers.
Large corner plot with private, sheltered rear garden
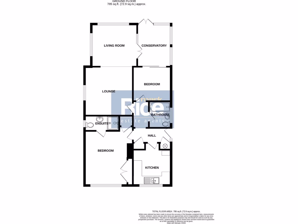
Set on a substantially larger-than-average corner plot, this two-bedroom detached bungalow offers single-storey living with genuine downsizing appeal. The layout includes a lounge with adjoining living/dining room, conservatory, kitchen, two bedrooms (master with en-suite) and a family bathroom — practical accommodation arranged for easy daily use. The generous gardens and wide gravel drive provide privacy, ample parking and straightforward outdoor maintenance.
The property benefits from gas central heating and double glazing, and is offered with no onward chain for a quicker move. Its post‑war construction and simple brick exterior mean the bungalow is structurally typical of its era and presents clear potential for modest improvement or a sympathetic extension subject to planning.
Buyers should note the internal accommodation is average in size for this type and the second bedroom is notably small. The home shows mid‑20th century styling in places and will suit purchasers seeking a sound, low‑rise property they can update over time rather than a fully renovated turnkey home. Council Tax Band B and very low local crime add to the practical appeal.
2 bedroom detached bungalow for sale in Edmunds Road, Cranwell Village, Sleaford, Lincolnshire, NG34 — £179,950 • 2 bed • 1 bath • 928 ft²
2 bedroom detached bungalow for sale in Northwood Drive, Sleaford, NG34 — £225,000 • 2 bed • 1 bath • 1094 ft²
3 bedroom bungalow for sale in Robertson Avenue, Leasingham, Sleaford, Lincolnshire, NG34 — £230,000 • 3 bed • 1 bath • 1100 ft²
3 bedroom detached bungalow for sale in Mark Avenue, Sleaford, NG34 — £265,000 • 3 bed • 2 bath • 1227 ft²
2 bedroom detached bungalow for sale in East Street, Helpringham, NG34 — £275,000 • 2 bed • 1 bath • 1056 ft²
3 bedroom detached bungalow for sale in Alexandra Road, Sleaford, NG34 — £195,000 • 3 bed • 1 bath • 1184 ft²


























































