Chain-free two double-bedroom flat in central Whitton, close to shops and fast trains..
No onward chain; long lease (circa 162–163 years)
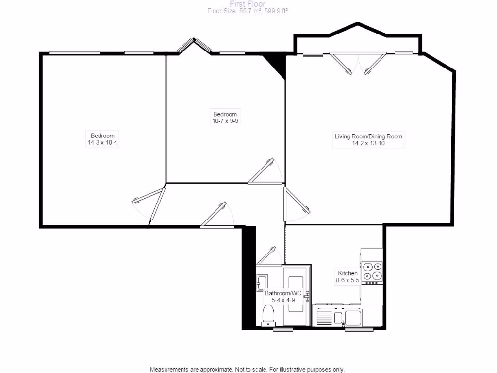
First-time buyers or buy-to-let investors will appreciate this chain-free, first-floor two double bedroom flat in central Whitton. The apartment sits directly on High Street with shops, cafés and fast trains to London Waterloo in under 30 minutes, offering strong commuter appeal and convenient everyday living.
The interior is bright with large windows and a generously proportioned reception room that leads to a small balcony — good for morning coffee and air. The property benefits from a long lease (circa 162–163 years remaining), mains gas central heating with boiler and radiators, and double glazing already installed.
Be clear about running costs and condition: the building has a relatively high annual service charge (£1,497.22) and a small ground rent (£200pa). The construction is solid brick with assumed no cavity insulation, and glazing predates 2002, so buyers should budget for potential energy-efficiency improvements and routine maintenance. Broadband speeds are average and local crime statistics are higher than average, which may concern some buyers.
Overall, this is a practical, well-located flat with immediate letting or move-in potential for someone happy to accept modest maintenance and upgrade tasks. Its strong transport links and long lease make it a straightforward starter home or an easy addition to a rental portfolio.
1 bedroom apartment for sale in Percy Road, Twickenham, TW2 — £225,000 • 1 bed • 1 bath • 481 ft²
1 bedroom apartment for sale in Nelson Road, Twickenham, TW2 — £235,000 • 1 bed • 1 bath • 380 ft²
1 bedroom flat for sale in Arden Close, Whitton, Twickenham, TW2 — £220,000 • 1 bed • 1 bath • 484 ft²
2 bedroom flat for sale in Constance Road, Whitton, Twickenham, TW2 — £400,000 • 2 bed • 1 bath • 667 ft²
1 bedroom apartment for sale in High Street, Twickenham, TW2 — £250,000 • 1 bed • 1 bath • 429 ft²
2 bedroom flat for sale in Heathside, Whitton, Hounslow, TW4 — £300,000 • 2 bed • 1 bath • 678 ft²










































