NE24 3TW - 3 bedroom semidetached house for sale in Aylesford Square,…

View on Property Piper

3 bedroom semi-detached house for sale in Aylesford Square, South Beach, Blyth, NE24 3TW, NE24

Summary - 1, Aylesford Square,BLYTH,NE24 3TW NE24 3TW

3 bed 1 bath Semi-Detached

**Standout Features:**
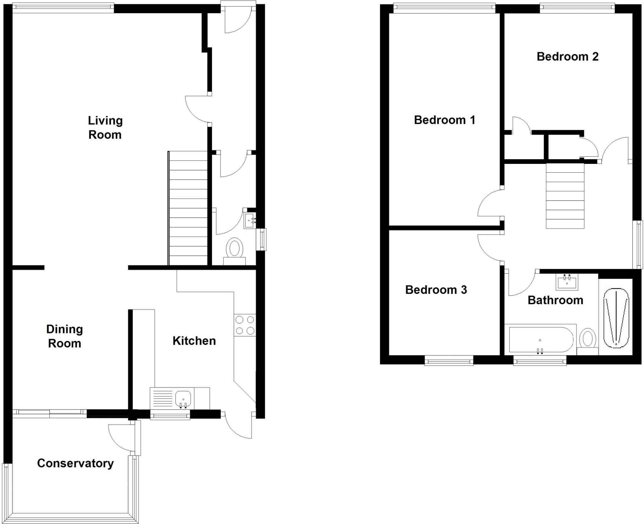
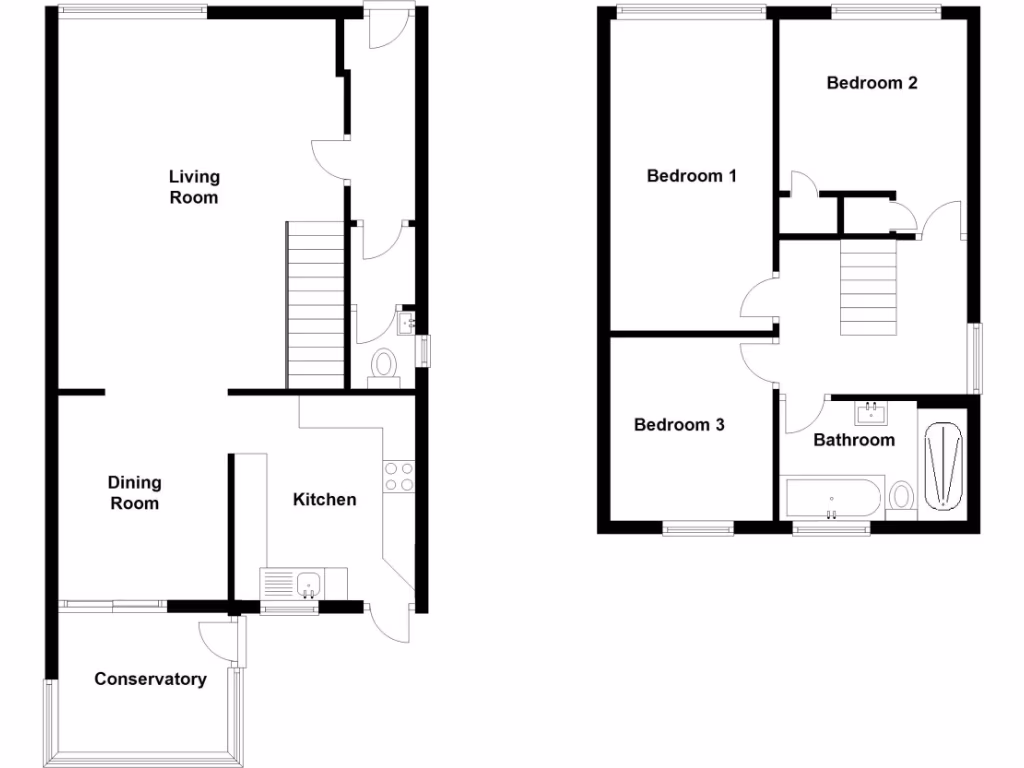
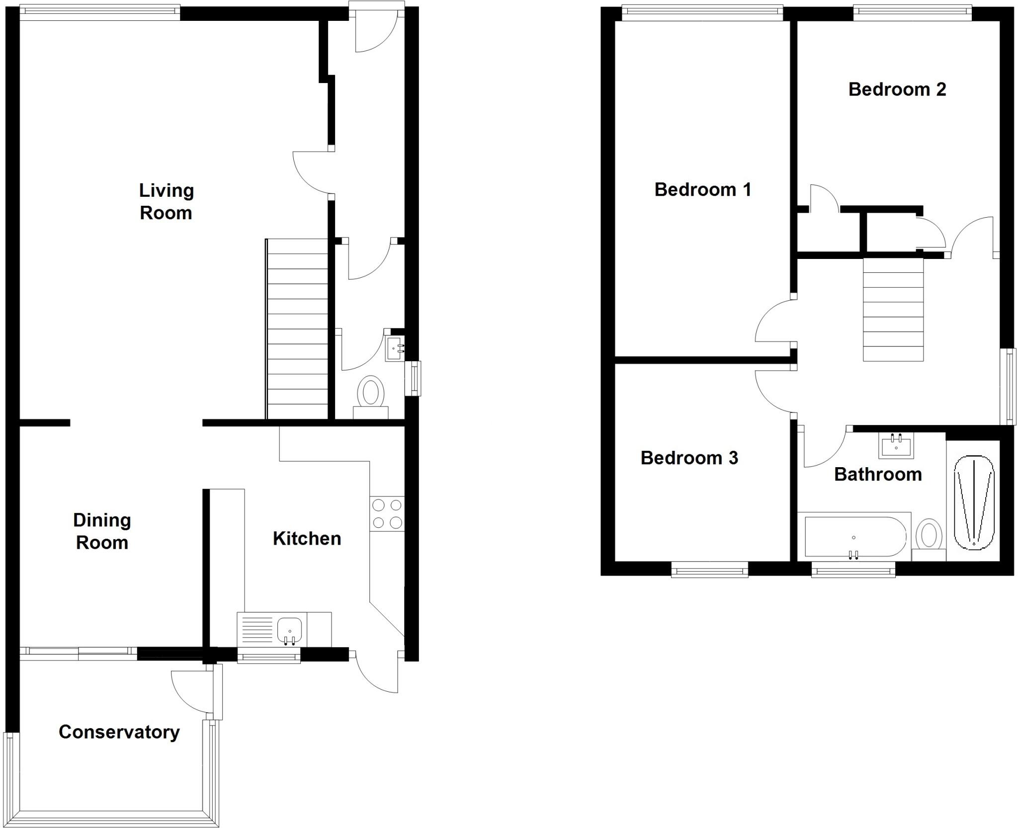
- Generously proportioned 3-bedroom semi-detached house
- Extended living space with a large living room and uPVC double glazed conservatory
- Refitted kitchen (2019) and bathroom (2020) with modern finishes
- Landscaped, south-facing rear garden with outdoor seating area
- Off-street parking with a detached garage
- Chain-free sale, making it move-in ready
- Located in a quiet cul-de-sac with low crime rates and excellent amenities nearby

**Potential Downsides:**
- Built in 1975, some features may require updating to suit personal tastes
- Average-sized plot may not appeal to those seeking a larger garden

This beautifully updated semi-detached home offers an exceptional living experience in a tranquil cul-de-sac setting. Boasting three spacious bedrooms and a host of modern amenities, including a refitted kitchen and bathroom, this property combines comfort and style. Enjoy the generous living space with a large conservatory that opens onto a stunning landscaped garden, perfect for entertaining or unwinding in the sun. Off-street parking and a detached garage enhance convenience.

Nestled within Blyth, you’ll be mere moments from the beach and local conveniences, including an outstanding primary school nearby. With excellent transport links and a sense of community in an affluent area, this home is ideal for families or as an investment. Don’t miss your chance to own a charming and well-maintained property like this! With low council tax and strong demand for family homes in the area, this is an opportunity worth seizing.

Property Details

Image Descriptions

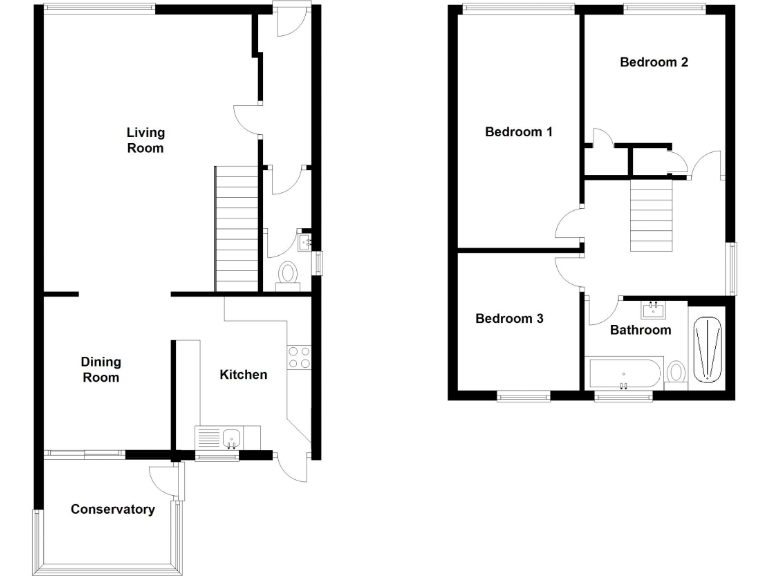
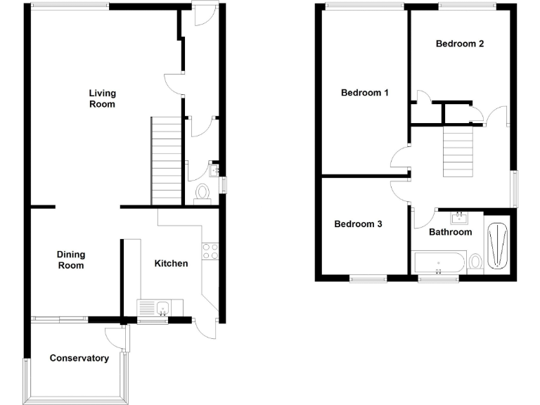
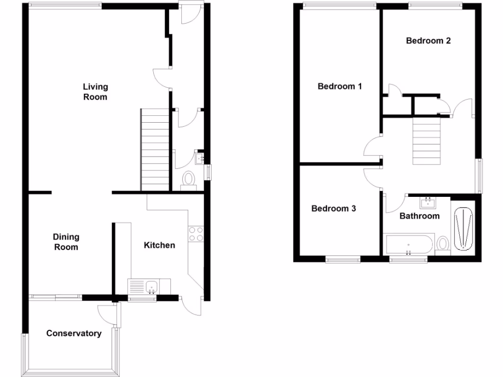
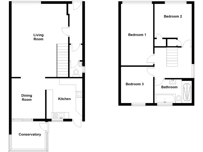
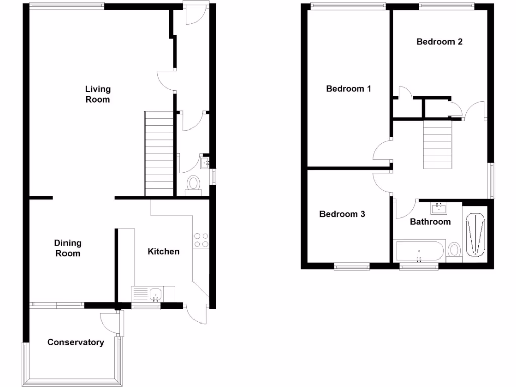
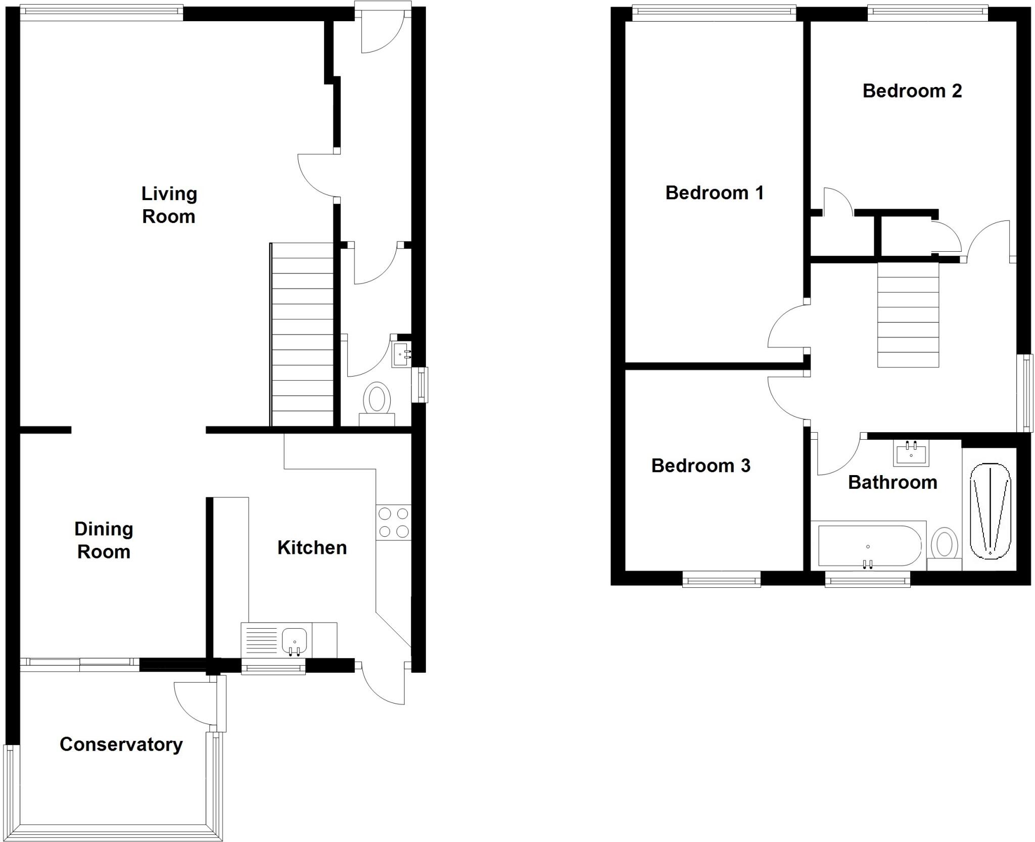
Floorplan Description

Rooms

Textual Property Features

Detected Visual Features

Nearby Schools

Nearest Bars And Restaurants

,,,,}

Nearest General Shops

,,}

Nearest Grocery shops

,,}

Nearest Supermarkets

,,}

Nearest Religious buildings

,,}

Nearest Medical buildings

,,,}

Nearest Airports

,}

Nearest Leisure Facilities

,,,,}

Nearest Tourist attractions

,,}

Nearest Train stations

,,,,}

Nearest Bus stations and stops

,,,,}

Nearest Hotels

,,}

Tags

Local Market Stats

AirBnB Data

Similar Properties

Meta

High Res Images

Compatible Images

Low res Images

Thumbnails

Raw Images

High Res Floorplan Images

Compatible Floorplan Images

Low res Floorplan Images

FloorplanImages Thumbnail

Raw Floorplan Images