**Standout Features:**
- Contemporary two-bedroom flat in a luxury gated development
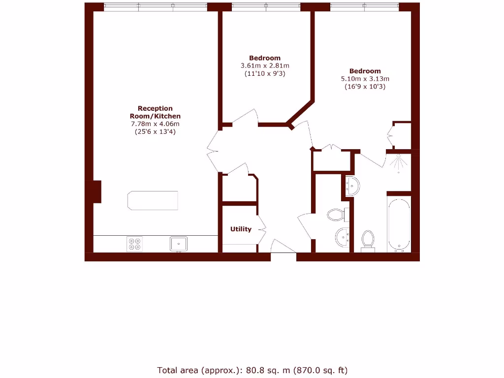
- Two bathrooms, including one en-suite 
- Allocated off-street parking
- Prime location near Wimbledon Common and All England Lawn Tennis Club
- Excellent local schools with strong Ofsted ratings
- First-floor convenience with lift service
- Average-sized living area with modern finishes
**Concerns:**
- Leasehold tenure may require future rental considerations 
- Council tax band is classified as expensive
- Broadband speeds are noted as slow
Discover your urban oasis in this modern, purpose-built two-bedroom apartment nestled within a gated development, ideally located near the serene Wimbledon Common and the prestigious All England Lawn Tennis Club. This spacious, first-floor residence features a contemporary open-plan living area, complemented by chic wood flooring and stylish spotlights, creating an inviting atmosphere for relaxation or entertaining. Enjoy the comfort of two bathrooms, including a coveted en-suite, alongside the convenience of allocated parking.
Perfect for families or first-time buyers, this apartment is situated in an affluent area with access to excellent local schools, including top-rated options for primary and secondary education. While the leasehold nature of the property and the higher council tax may be considerations, the appeal of secure living, modern amenities, and a vibrant community present an enticing opportunity. With urban cultural experiences at your doorstep, don’t miss out on making this stylish apartment your own—schedule a viewing today and envision the lifestyle that awaits!
 2 bedroom flat for sale in Queensmere Road, Southfields, London, SW19 — £500,000 • 2 bed • 1 bath • 810 ft²
 2 bedroom flat for sale in Queensmere Road, Southfields, London, SW19 — £500,000 • 2 bed • 1 bath • 810 ft² 2 bedroom flat for sale in Inner Park Road, London, SW19 — £575,000 • 2 bed • 2 bath • 778 ft²
 2 bedroom flat for sale in Inner Park Road, London, SW19 — £575,000 • 2 bed • 2 bath • 778 ft² 2 bedroom flat for sale in Chapman Square, London, SW19 — £695,000 • 2 bed • 2 bath • 802 ft²
 2 bedroom flat for sale in Chapman Square, London, SW19 — £695,000 • 2 bed • 2 bath • 802 ft² 2 bedroom flat for sale in Inner Park Road, London, SW19 — £499,950 • 2 bed • 2 bath • 636 ft²
 2 bedroom flat for sale in Inner Park Road, London, SW19 — £499,950 • 2 bed • 2 bath • 636 ft² 2 bedroom apartment for sale in Holly Tree Close, London, SW19 — £400,000 • 2 bed • 1 bath • 708 ft²
 2 bedroom apartment for sale in Holly Tree Close, London, SW19 — £400,000 • 2 bed • 1 bath • 708 ft² 2 bedroom flat for sale in 80 Wimbledon Park Side, London, SW19 — £475,000 • 2 bed • 1 bath • 774 ft²
 2 bedroom flat for sale in 80 Wimbledon Park Side, London, SW19 — £475,000 • 2 bed • 1 bath • 774 ft²


























