Spacious two-bed bungalow on a generous plot—ideal for easy, single-floor living..
Detached two-bedroom bungalow on a generous, low-maintenance plot
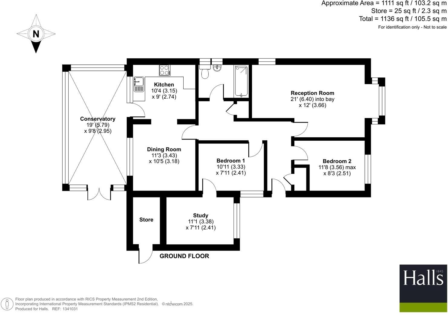
Spacious living room with feature bay window and separate dining room
Conservatory overlooks private, enclosed rear garden
Modern fitted kitchen with integrated appliances
Principal bedroom with dressing room that could be a small third room
Driveway parking for several vehicles; off-street parking available
One bathroom only; accommodation mainly two-bedroom single-storey layout
Situated in an area classed as very deprived; consider local services and resale
Set on a generous plot in a quiet cul-de-sac, this detached two-bedroom bungalow offers comfortable single-level living close to Chirk amenities and transport links. The living room’s bay window, separate dining room and a bright conservatory provide flexible day-to-day space, while a modern fitted kitchen and contemporary bathroom give the home a move-in-ready feel.
The principal bedroom includes an adjoining dressing room that could double as a small third bedroom or study, adding useful versatility. Practical benefits include double glazing, mains gas central heating and ample driveway parking for several vehicles — all helpful for downsizers seeking low-maintenance, convenient accommodation.
Buyers should note practical limitations: accommodation is principally two bedrooms with one bathroom, and the property sits in an area classed as very deprived, which may affect local services and long-term resale. Council Tax is Band D. Overall, this bungalow will suit anyone seeking easy single-floor living in a peaceful setting with scope to adapt internal space to personal needs.
3 bedroom detached house for sale in Derwen, Chirk, Wrexham, LL14 — £275,000 • 3 bed • 1 bath • 1213 ft²
3 bedroom bungalow for sale in Cilcoed, Chirk, Wrexham, LL14 — £289,950 • 3 bed • 1 bath • 915 ft²
2 bedroom detached bungalow for sale in Lodgevale Park, LL14 — £220,000 • 2 bed • 2 bath • 973 ft²
3 bedroom bungalow for sale in Station Avenue, Chirk, Wrexham., LL14 — £450,000 • 3 bed • 1 bath • 3313 ft²
2 bedroom bungalow for sale in Crogen, Chirk, Wrexham, LL14 — £230,000 • 2 bed • 1 bath • 820 ft²
2 bedroom semi-detached bungalow for sale in Lodgevale Park, Chirk, LL14 — £254,500 • 2 bed • 1 bath • 871 ft²


















































































