Characterful ground-floor flat minutes from Hove seafront and transport links.
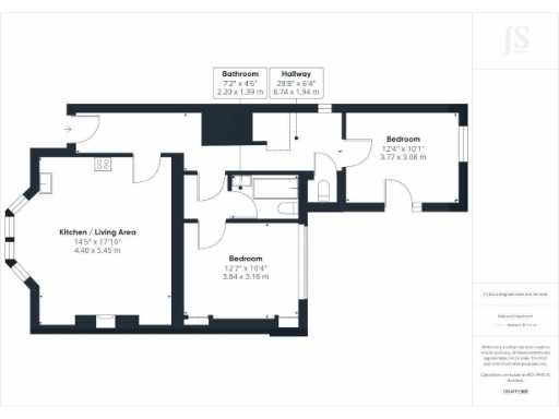
Two double bedrooms with high ceilings and bay windows
Set on the ground floor of a Victorian townhouse, this two-double-bedroom flat blends period character with practical modern living. High ceilings, bay windows and original features give a roomy, airy feel while an open-plan living/kitchen area suits everyday life and entertaining. There’s a private front door and a balcony for outdoor space.
The layout includes a family bathroom plus two separate toilets, useful for sharers or a growing household. The property is advertised as a share of freehold, which can provide more control than a standard leasehold — confirm exact tenure and any associated costs before proceeding. Broadband and mobile signals are strong, and Hove Station and the seafront are within easy walking distance.
Be upfront about the local context: the wider area records higher-than-average crime levels and the neighbourhood is described as a cosmopolitan, student-oriented pocket. The flat’s period nature brings charm but may also mean ongoing maintenance and potential retrofit work for modern systems. Council tax band and total floor area are not provided, so check these details if exact running costs and space are critical.
This home will suit first-time buyers or couples who value character, transport links and nearby amenities, and who are comfortable managing the typical upkeep of an older property. For buyers seeking immediate turnkey perfection or large private outdoor space, this may require compromises or modest investment.
 2 bedroom flat for sale in Albany Villas, Hove, BN3 2RS, BN3 — £350,000 • 2 bed • 1 bath • 714 ft²
 2 bedroom flat for sale in Albany Villas, Hove, BN3 2RS, BN3 — £350,000 • 2 bed • 1 bath • 714 ft² 2 bedroom flat for sale in Medina Villas, Hove, BN3 — £425,000 • 2 bed • 1 bath • 786 ft²
 2 bedroom flat for sale in Medina Villas, Hove, BN3 — £425,000 • 2 bed • 1 bath • 786 ft² 2 bedroom flat for sale in St. Aubyns, Hove, BN3 — £385,000 • 2 bed • 1 bath • 685 ft²
 2 bedroom flat for sale in St. Aubyns, Hove, BN3 — £385,000 • 2 bed • 1 bath • 685 ft² 2 bedroom apartment for sale in Clarendon Villas, Hove, East Sussex, BN3 — £375,000 • 2 bed • 1 bath • 726 ft²
 2 bedroom apartment for sale in Clarendon Villas, Hove, East Sussex, BN3 — £375,000 • 2 bed • 1 bath • 726 ft² 2 bedroom flat for sale in Hova Villas, Hove, BN3 — £425,000 • 2 bed • 1 bath • 610 ft²
 2 bedroom flat for sale in Hova Villas, Hove, BN3 — £425,000 • 2 bed • 1 bath • 610 ft² 2 bedroom apartment for sale in First Avenue, Hove, BN3 — £550,000 • 2 bed • 1 bath • 913 ft²
 2 bedroom apartment for sale in First Avenue, Hove, BN3 — £550,000 • 2 bed • 1 bath • 913 ft²


























































