**Standout Features:**
- One-bedroom flat with large private garden
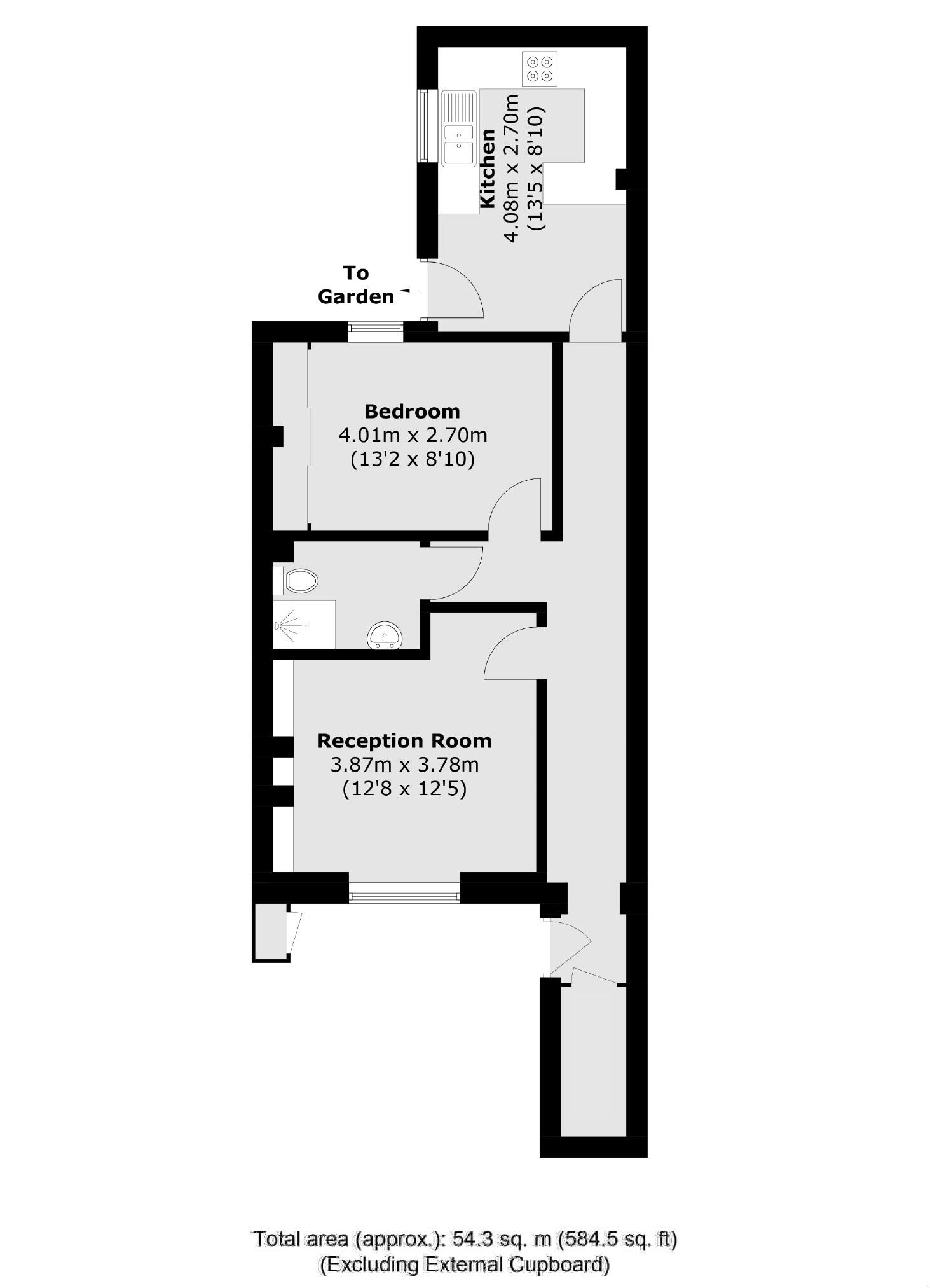
- Separate kitchen and living area with potential for cosmetic updates
- Located in a vibrant area near Fulham Broadway and Eel Brook Common
- Share of freehold tenure
- Close proximity to public transport and local amenities
**Potential Concerns:**
- High local crime rate
- Limited insulation may affect energy efficiency
- Deprived area classification
This inviting one-bedroom garden flat, located on Harwood Road in sought-after Fulham, presents a unique opportunity for first-time buyers or investors looking for rental potential. The flat features a spacious living area, a separate kitchen, and the rare benefit of a large private garden – a perfect oasis for relaxation amid urban living. At 584 square feet, the layout offers functionality and room to infuse personal style.
While the property's solid brick construction and original features charm, potential buyers should consider the modest insulation and the area's higher crime rate as factors for future renovations or security enhancements. The vibrant local community supports a lively atmosphere with a variety of shops, restaurants, and excellent nearby schools, making it a desirable location for families and professionals alike. Don't miss your chance to own a slice of Fulham's dynamic lifestyle – schedule a viewing today!
2 bedroom flat for sale in Harwood Road, Fulham, SW6 — £895,000 • 2 bed • 2 bath • 1029 ft²
1 bedroom flat for sale in Armadale Road, Fulham, London, SW6 — £500,000 • 1 bed • 1 bath • 537 ft²
1 bedroom flat for sale in Radipole Road, London, SW6 — £545,000 • 1 bed • 1 bath • 485 ft²
2 bedroom flat for sale in Tamworth Street, London, SW6 — £580,000 • 2 bed • 1 bath • 546 ft²
1 bedroom apartment for sale in Moore Park Road, London, SW6 — £475,000 • 1 bed • 1 bath • 496 ft²
2 bedroom flat for sale in Homestead Road, Fulham, London, SW6 — £600,000 • 2 bed • 2 bath • 624 ft²






















