Generous plot with modern family living and excellent village schools.
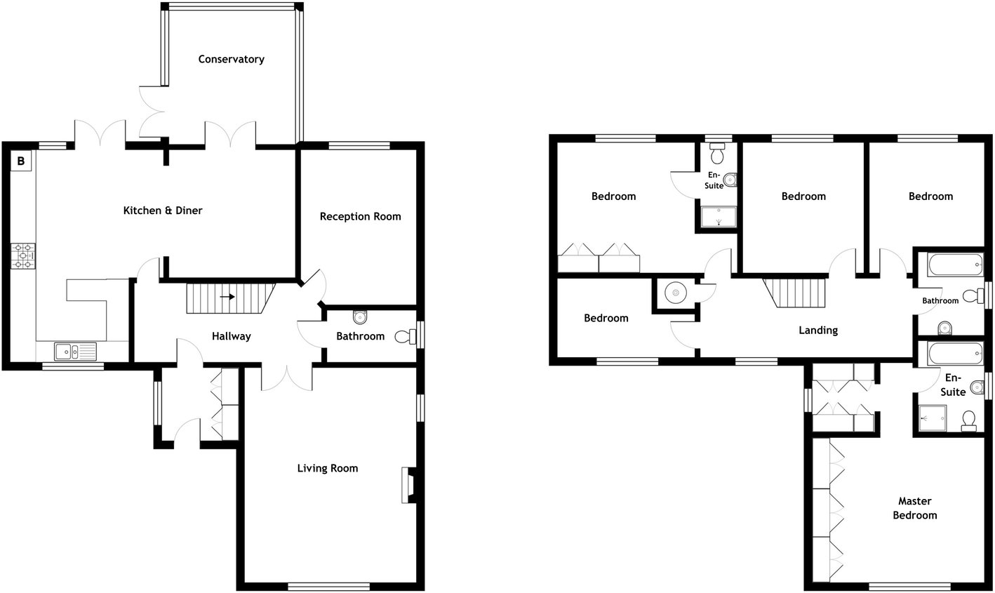
Five bedrooms with two en-suites and family bathroom
Spacious lounge with multi-fuel burner
Modern breakfast kitchen; French doors to garden
Large conservatory overlooking mature rear garden
Detached garage plus driveway parking
Built 2003–2006; double glazed and gas central heating
Council tax described as expensive
Average mobile and broadband speeds in area
Set on a large plot in desirable Grimsargh, this five-bedroom detached house balances spacious family living with practical modern finishes. Ground-floor living flows from a welcoming lounge with multi-fuel burner to a modern breakfast kitchen with French doors and a large conservatory overlooking the rear garden—ideal for daily family life and weekend entertaining.
The principal suite includes a walk-in wardrobe and four-piece en-suite, while a second bedroom also benefits from an en-suite. Three further good-sized bedrooms and a contemporary family bathroom provide flexible sleeping arrangements for children, guests, or a home office. A detached garage and driveway deliver useful off-street parking.
Built in the mid-2000s with double glazing and gas central heating, the home is largely move-in ready and will suit families seeking space and strong local schools. Practical points to note: council tax is listed as expensive, mobile and broadband speeds are average, and the area records average crime levels. The property is freehold and has no flooding risk.
Overall, this is a substantial, well-presented family home in a prosperous village setting. The generous plot and flexible accommodation make it a sensible long-term family purchase for those valuing school access and easy road links to Preston and the Ribble Valley.
5 bedroom detached house for sale in Crofts Drive, Lancashire, PR2 — £499,999 • 5 bed • 4 bath • 2530 ft²
3 bedroom detached house for sale in Yew Tree Avenue, Grimsargh, Preston, PR2 5LA, PR2 — £325,000 • 3 bed • 2 bath • 1647 ft²
4 bedroom detached house for sale in Jeffrey Hill Close, Grimsargh, PR2 — £315,000 • 4 bed • 3 bath • 1490 ft²
4 bedroom detached house for sale in Park Way Close, Grimsargh, Preston, PR2 — £475,000 • 4 bed • 3 bath • 1637 ft²
4 bedroom detached house for sale in 1, Daniel Park, South Hetton, Durham DH6 2TF, PR2 — £350,000 • 4 bed • 1 bath • 1485 ft²
4 bedroom detached house for sale in Moss Nook Drive, Grimsargh, Preston, PR2 — £329,950 • 4 bed • 2 bath • 1082 ft²














































































































