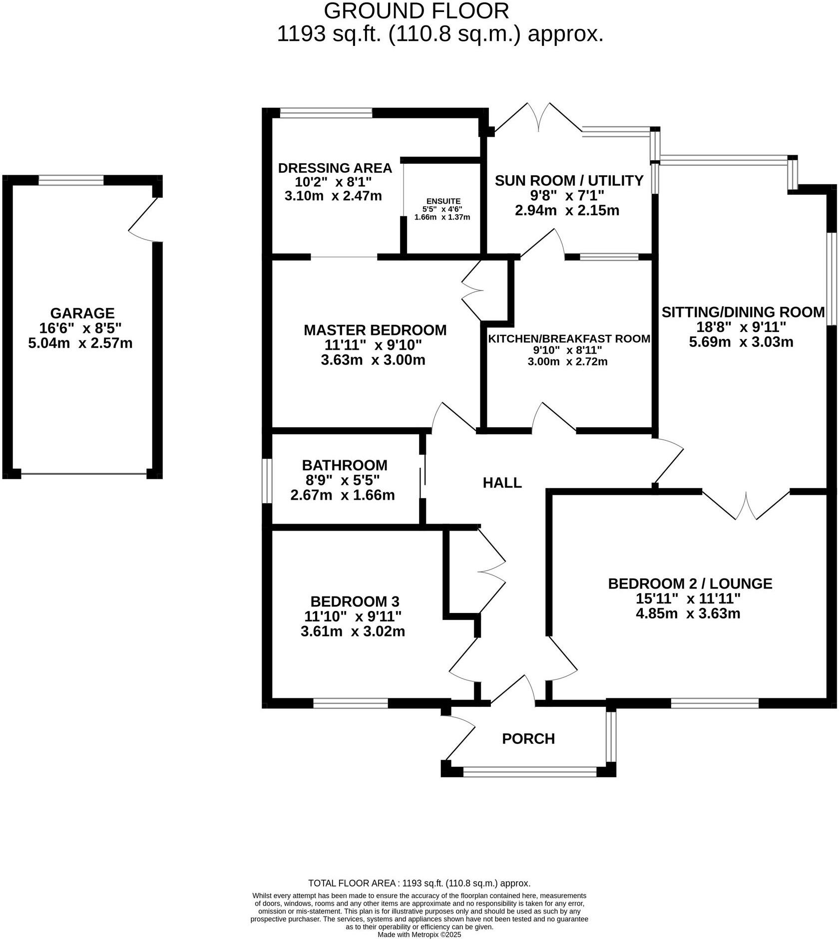
**Key Features:**
- Detached bungalow in a sought-after Wistaston location
- Flexible layout with generous room sizes
- 3 bedrooms, including a master suite with en-suite
- Open-plan lounge and dining area
- Sunroom/utility with garden views
- Private rear garden and additional front garden
- Off-road parking for multiple vehicles and single garage
- No onward chain for a hassle-free move
- Double glazing and gas central heating
- Renovation potential to personalize the property
Occupying a serene spot in the desirable Wistaston area, this detached bungalow offers potential buyers a rare opportunity to create their ideal home. The property features a flexible, open-plan layout with spacious rooms that cater perfectly to families, retirees, or those looking to invest. The welcoming lounge flows into a dining area, making this home ideal for both relaxing and entertaining. The master bedroom comes with its own dressing area and en-suite, complemented by a further well-sized bedroom and a family bathroom.
Outside, you'll find a charming, manageable rear garden perfect for outdoor leisure, with additional front garden space and ample off-road parking. Additionally, the single garage provides secure storage and further versatility. Located close to local amenities, schools, and transport links, this bungalow is poised for customization and modernisation. With the added advantage of no onward chain, it's an excellent opportunity not to be missed—ideal for those looking to invest in a peaceful yet conveniently connected community. Act quickly to secure this versatile gem!
2 bedroom detached bungalow for sale in Princess Drive, Wistaston, CW2 — £335,000 • 2 bed • 1 bath • 969 ft²
3 bedroom bungalow for sale in Towers Close, Wistaston, CW2 — £335,000 • 3 bed • 1 bath • 1031 ft²
2 bedroom detached bungalow for sale in Keswick Close, Crewe, CW2 — £250,000 • 2 bed • 1 bath • 560 ft²
2 bedroom detached bungalow for sale in Lochleven Road, Crewe, CW2 — £315,000 • 2 bed • 1 bath • 926 ft²
3 bedroom bungalow for sale in Church Lane, Wistaston, Crewe, Cheshire, CW2 — £270,000 • 3 bed • 1 bath • 1185 ft²
2 bedroom bungalow for sale in Hanbury Close, Crewe, Cheshire, CW2 — £200,000 • 2 bed • 1 bath • 557 ft²


























































































