Large three-bedroom terrace with garage and no chain, ideal for refurbishment..
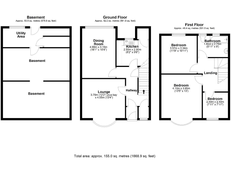
Approximately 1,669 sq ft including basement and garage
A spacious three-bedroom Victorian mid-terrace in Consett town centre offering substantial floor area and clear scope for improvement. With approximately 1,669 sq ft across two main floors plus a basement, the house includes a bay-fronted living room, generous dining room, and a garage — rare for a mid-terrace — all offered with no onward chain.
This home will suit families, investors or buyers seeking a project. The layout includes two double bedrooms and a single, plus a single bathroom. Original period features are present but much of the interior requires updating — exposed floorboards, peeling wallpaper and general refurbishment are visible throughout, so expect decorating and possible remedial works.
Outside, a small front garden and a rear yard provide outdoor space; the yard offers off-street parking and rear garage access. Although the plot is small, the convenient town-centre location places shops, bus links and schools within walking distance; Durham and Newcastle are both within around 15 miles for commuting.
Important practical points: the property is freehold and chain-free, council tax is low (Band B), and there is no flood risk. EPC is not yet provided. Buyers should allow budget for refurbishment and standard checks on services and structure before purchase.
3 bedroom end of terrace house for sale in Hutchinson Avenue, Consett, Durham, DH8 — £119,950 • 3 bed • 1 bath • 968 ft²
2 bedroom terraced house for sale in Medomsley Road, Consett, County Durham, DH8 — £120,000 • 2 bed • 2 bath • 911 ft²
3 bedroom terraced house for sale in Sherburn Terrace, Consett, Durham, DH8 — £110,000 • 3 bed • 1 bath • 1022 ft²
3 bedroom terraced house for sale in Taylor Street, Consett, County Durham, DH8 — £100,000 • 3 bed • 1 bath • 1131 ft²
3 bedroom terraced house for sale in Durham Road, Blackhill, Consett, DH8 — £130,000 • 3 bed • 1 bath
4 bedroom terraced house for sale in Berry Edge Road, Consett, Durham, DH8 — £170,000 • 4 bed • 3 bath • 1260 ft²


















































