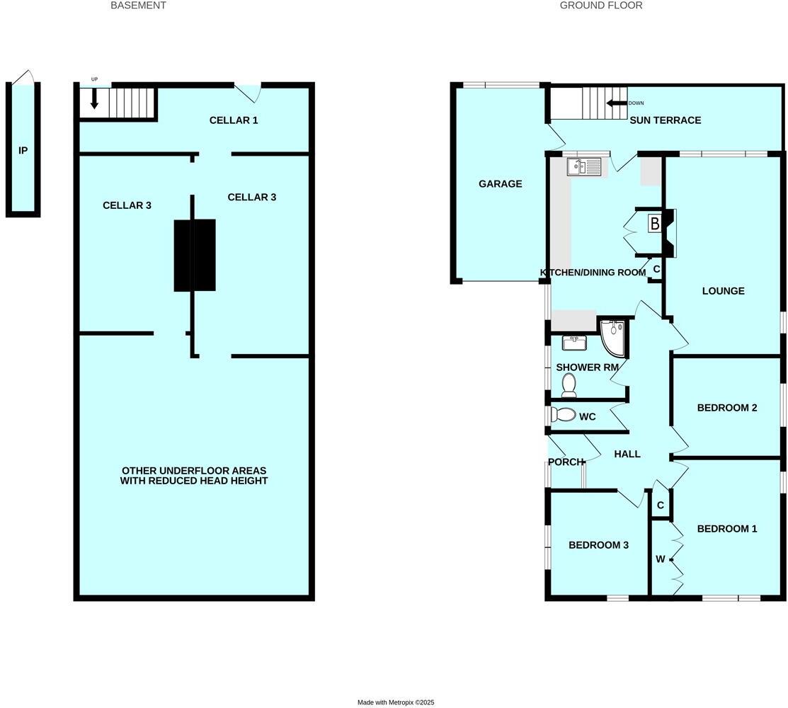
**Standout Features:**
- Spacious 3-bedroom detached bungalow from the 1960s
- Generous lounge with fireplace and large windows
- Showroom-style modern bathroom and separate WC
- Long private drive with ample off-street parking
- 18ft garage with inspection pit for maintenance
- Southerly facing private rear garden with sun terrace
- Three cellar rooms perfect for storage or potential conversion
This well-proportioned 3-bedroom detached bungalow in Eggbuckland, Plymouth, offers a blend of comfort, privacy, and convenient living. With a spacious 19ft lounge and modern fitted kitchen/dining room, the home is light and airy, ideal for family gatherings. The contemporary shower room and additional separate WC enhance functionality for daily living. Outside, enjoy sunny afternoons in the southerly facing enclosed rear garden, complete with a sun terrace perfect for outdoor dining.
The property features excellent storage capabilities, thanks to three spacious cellar rooms with generous head heights, and the 18ft garage with an inspection pit adds practicality for car enthusiasts or DIYers. With a long private drive providing ample parking, this bungalow ensures convenience for you and your guests. Located in a desirable area with low crime rates and accessible amenities, it’s the perfect family home for those looking for a peaceful yet connected lifestyle. Don’t miss the opportunity to make this charming property your own!
3 bedroom detached bungalow for sale in The Retreat, Plymouth Spacious Versatile Detached Bungalow, PL3 — £300,000 • 3 bed • 3 bath • 1497 ft²
3 bedroom detached bungalow for sale in Bearsdown Close, Plymouth, PL6 — £340,000 • 3 bed • 1 bath • 1045 ft²
2 bedroom semi-detached bungalow for sale in Kingswear Crescent, Crownhill, Plymouth, PL6 — £250,000 • 2 bed • 1 bath • 681 ft²
3 bedroom detached bungalow for sale in Plymstock, Plymouth, PL9 — £389,950 • 3 bed • 1 bath • 1389 ft²
3 bedroom detached bungalow for sale in Mainstone, Plymouth, PL6 — £350,000 • 3 bed • 1 bath • 1119 ft²
3 bedroom detached bungalow for sale in Prince Maurice Road, Plymouth, PL4 — £325,000 • 3 bed • 1 bath • 780 ft²














































































