Ready-to-move-in family house with garage, summer house and EV charging.
- Extended three-bedroom semi-detached with two reception rooms
- Modern kitchen; luxury bathroom with underfloor heating and jacuzzi bath
- Driveway, EV charger and large garage currently used as a home gym
- Summer house with power and sun terrace; decent-sized rear garden
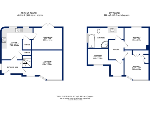
- Approximately 927 sq ft; mid-20th century construction (1950–66)
- Double glazing installed before 2002 — may need future replacement
- Located in area with pockets of deprivation; crime level average
- Single bathroom only; good schools and fast broadband nearby
This extended three-bedroom semi-detached home is presented in move-in condition and well suited to growing families seeking convenient West Leeds living. The layout includes two reception rooms, a modern fitted kitchen, and a spacious luxury bathroom with underfloor heating and a deep Jacuzzi-style bath. Practical extras include a driveway with EV charger, a large garage currently used as a gym, and a summer house with power on a sun terrace.
The property sits on a decent plot and benefits from gas central heating, double glazing and a filled cavity wall from mid-20th century construction. Local amenities are strong: good primary and secondary schools nearby, fast broadband and excellent mobile signal, plus handy access to bus routes, New Pudsey and Bramley stations and the Owlcotes shopping centre.
Buyers should note the area’s broader socioeconomic profile — classified as an ageing industrious workers area with pockets of deprivation and a ‘hampered neighbourhoods’ local classification; crime levels are average. The double glazing was installed prior to 2002 and the house dates from the 1950–66 period, so those wanting long-term low-maintenance fabric may wish to inspect the windows and general condition. There is a single family bathroom only, and the garage will need conversion back if gym equipment is removed.
Overall this property offers a comfortable, flexible home in a well-connected part of Leeds with clear family appeal and sensible scope for cosmetic updates or modest improvements.
3 bedroom semi-detached house for sale in Half Mile Lane, Bramley , LS13 — £295,000 • 3 bed • 1 bath • 1249 ft²
3 bedroom detached house for sale in Fieldway Rise, Leeds, West Yorkshire, LS13 — £300,000 • 3 bed • 1 bath • 861 ft²
3 bedroom semi-detached house for sale in Hare Park Mount, Leeds, LS12 — £295,000 • 3 bed • 1 bath • 1276 ft²
3 bedroom semi-detached house for sale in Green Hill Lane, Leeds, West Yorkshire, LS12 — £244,995 • 3 bed • 1 bath • 1027 ft²
3 bedroom semi-detached house for sale in Wheelwright Close, Leeds, West Yorkshire, LS12 — £240,000 • 3 bed • 1 bath • 781 ft²
3 bedroom semi-detached house for sale in Queenswood Drive, Leeds, LS6 — £325,000 • 3 bed • 1 bath • 866 ft²


























































































