Modern, low-maintenance retirement home with south garden and parking.
Three bedrooms with flexible third room for study or hobby
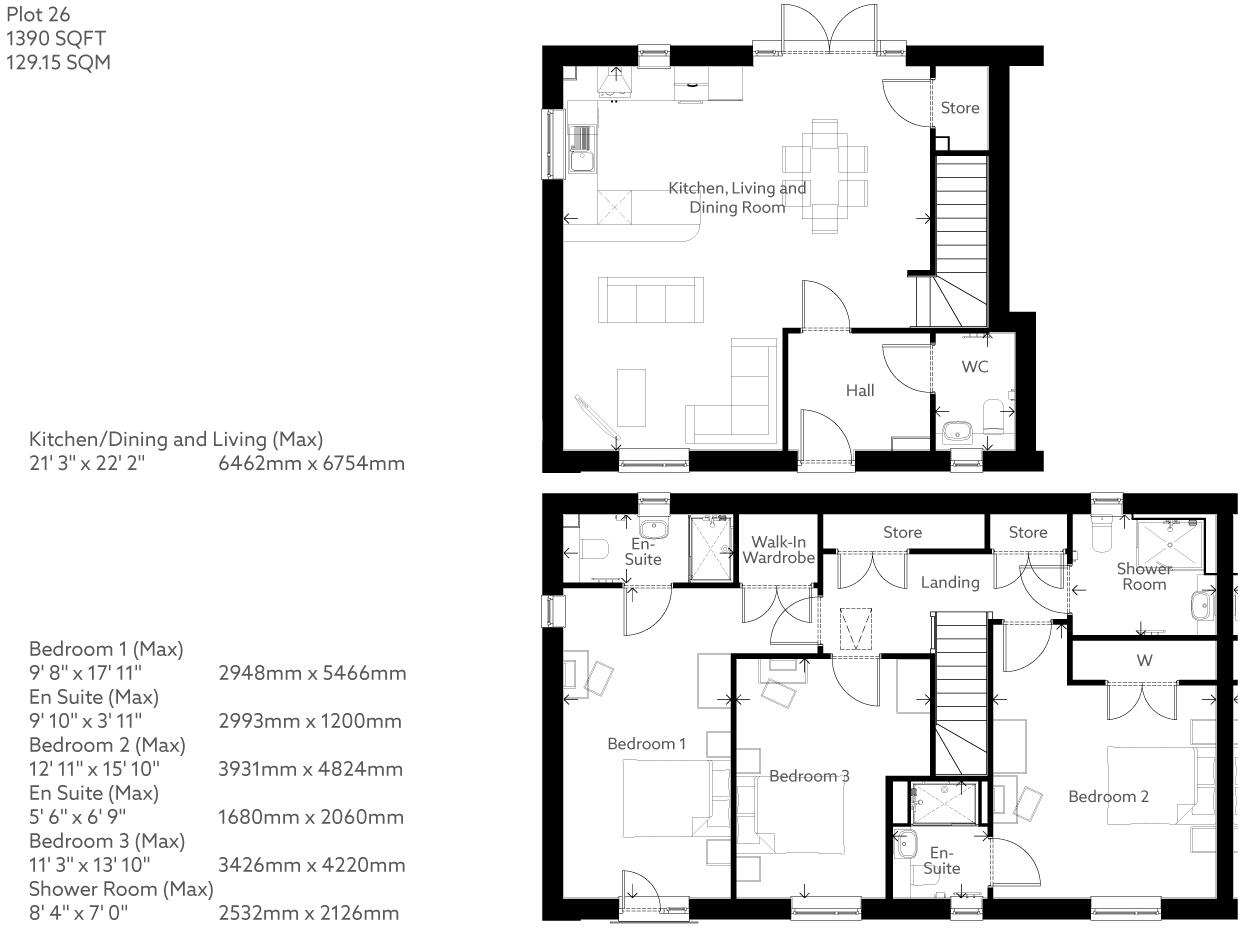
A spacious three-bedroom retirement home in Strawberry Hill Gardens, Eaton, designed for comfortable, low-maintenance living. The Aspen cottage offers generous open-plan living, a south-facing private garden and two parking spaces — all within a modern, purpose-built retirement community close to local shops, a pharmacy and pubs.
Finished in 2019 and offered freehold, the property sits in a very affluent area with excellent mobile signal and fast broadband — helpful for staying connected with family and services. The layout includes multiple storage cupboards and a flexible third bedroom that can serve as a study, hobby room or guest room.
Practical points to note: heating is by electric room heaters (no mains gas) and the property relies on electricity as its main fuel; energy performance is mid-range (SAP up to 74). Crime in the wider area is above average for the postcode, and council tax banding is not provided here. The development is exclusively for the over-55s and includes communal landscaping and a Pavilion for socialising.
This home suits downsizers or active retirees seeking modern, low-upkeep accommodation with easy access to Norwich and surrounding countryside. The large plot and south-facing garden give scope for gardening or relaxing outdoors, while the open-plan living space provides a bright, adaptable core for daily life.
3 bedroom semi-detached house for sale in Bluebell Road, Norwich, Norfolk, NR4 — £499,995 • 3 bed • 3 bath • 1410 ft²
2 bedroom apartment for sale in 26 Strawberry Hill Gardens, NR4 — £375,000 • 2 bed • 2 bath • 807 ft²
3 bedroom semi-detached house for sale in Woolhouse Way,
Cringleford
Norwich,
Norfolk,
NR4 7FX, NR4 — £340,000 • 3 bed • 1 bath • 592 ft²
1 bedroom apartment for sale in Westfield View, Norwich, Norfolk, NR4 — £230,000 • 1 bed • 1 bath • 515 ft²
3 bedroom semi-detached house for sale in Woolhouse Way,
Cringleford
Norwich,
Norfolk,
NR4 7FX, NR4 — £320,000 • 3 bed • 1 bath • 592 ft²
1 bedroom retirement property for sale in Coralie Court, Eaton, NR4 — £210,000 • 1 bed • 1 bath • 544 ft²


































































































































