S10 3BF - 4 bedroom duplex for sale in 1402 Hallam Towers, Sheffield,…

View on Property Piper

4 bedroom duplex for sale in 1402 Hallam Towers, Sheffield, S10

Summary - APARTMENT 1402, HALLAM TOWERS, 272A, FULWOOD ROAD S10 3BF

4 bed 4 bath Duplex

Rare 4-bed duplex with panoramic views, concierge and three parking spaces.
Approximately 4,000 sq ft duplex penthouse with wrap‑around balconies
A rare duplex penthouse occupying the 13th and 14th floors of Hallam Towers, this four‑bedroom, four‑bathroom apartment offers approximately 4,000 sq ft of contemporary living with expansive wrap‑around balconies and sweeping elevated views across Sheffield. The only duplex in the development, it combines generous open-plan reception space, large glazed elevations and a bespoke SieMatic kitchen—designed for entertaining and family living.

Residents benefit from gated access, concierge, an on-site leisure suite with swimming pool and gym, and three allocated parking spaces. The apartment sits in an affluent, low-crime area close to top independent schools and excellent transport links, appealing to families and professionals seeking a high-spec, secure urban home.

Practical points are straightforward: the property is leasehold (246 years remaining), with an annual service charge of £8,700 and ground rent of £200. There is no private garden—outdoor amenity is provided by extensive terraces and communal landscaped grounds. Heating is electric, which may affect running costs compared with gas-heated homes.

This is a distinctive, high-value apartment for buyers prioritising space, privacy and concierge-style living in a landmark building. It will particularly suit those who want turnkey, secure city living with exceptional views, but buyers should factor service charges and electric heating into ongoing costs.

Property Details

Brochure Descriptions

Image Descriptions

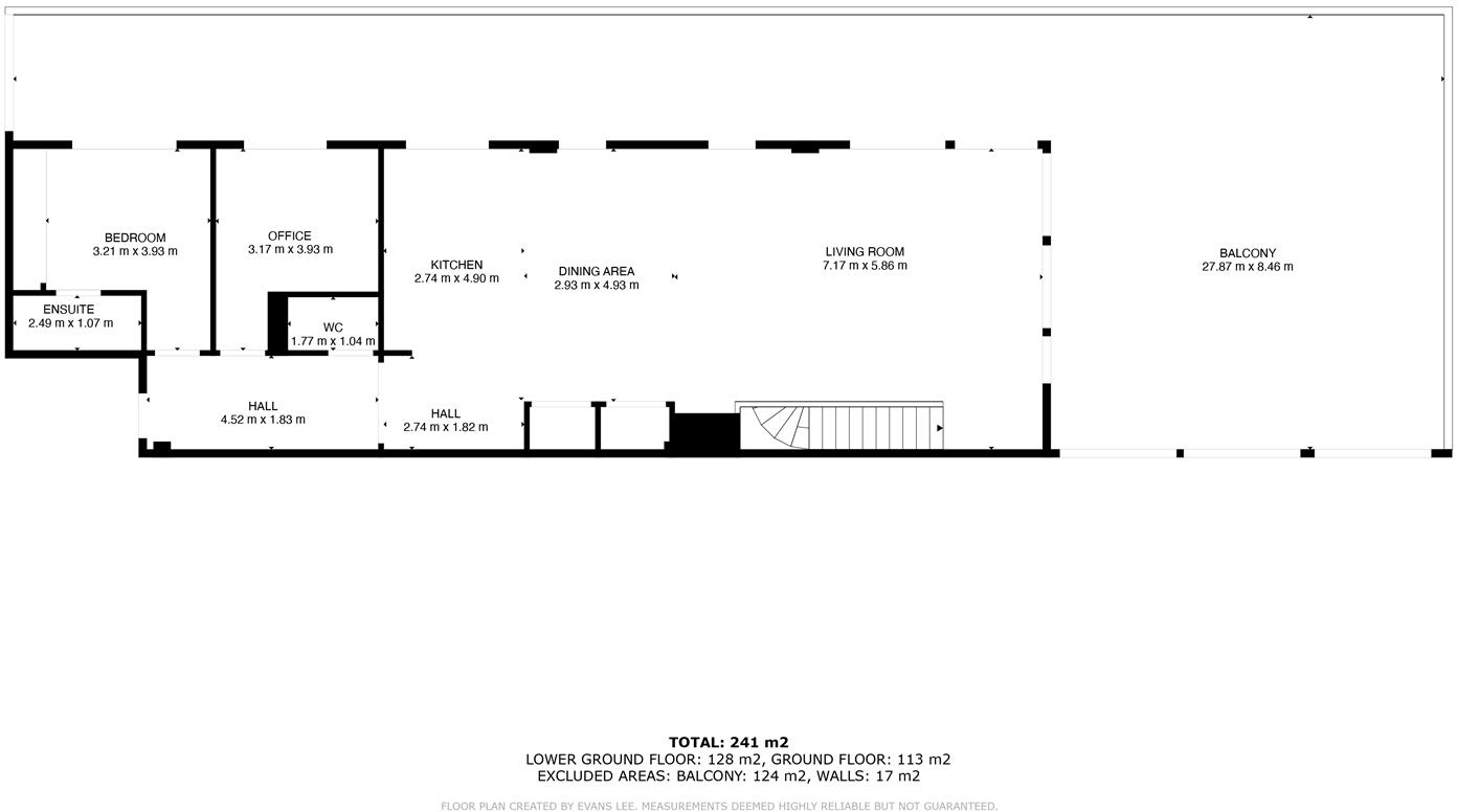
Floorplan Description

Rooms

Textual Property Features

Target Audience

AI Tags

Detected Visual Features

Nearby Schools

Nearest Bars And Restaurants

,,,,}

Nearest General Shops

,,}

Nearest Grocery shops

,,}

Nearest Supermarkets

,,}

Nearest Religious buildings

,,}

Nearest Medical buildings

,,,}

Nearest Leisure Facilities

,,,,}

Nearest Tourist attractions

,,}

Nearest Train stations

,,,,}

Nearest Bus stations and stops

,,,,}

Nearest Hotels

,,}

Tags

Local Market Stats

AirBnB Data

Similar Properties

Meta

High Res Images

Compatible Images

Low res Images

Thumbnails

Raw Images

High Res Floorplan Images

Compatible Floorplan Images

Low res Floorplan Images

FloorplanImages Thumbnail

Raw Floorplan Images