BA7 7ER - 4 bed spacious countryside cottage in South Cary Lane, BA7…

View on Property Piper

4 bedroom detached house for sale in South Cary Lane, Castle Cary, BA7

Summary - PRIMROSE COTTAGE SOUTH CARY LANE CASTLE CARY BA7 7ER

4 bed 3 bath Detached

Large, characterful 4-bed cottage with modern extension and private grounds.
Large 4-bedroom detached cottage with modern glazed extension
Elevated position with wide countryside views including Glastonbury Tor
Open-plan kitchen/dining/living with Neff appliances and underfloor heating
Two insulated garden studios with bi-fold doors — office or gym potential
Ample driveway parking plus new carport; large, private enclosed plot
Oil-fired central heating and buried oil tank — ongoing fuel dependency
Slow broadband speeds in the area may affect home working and streaming
Council tax band above average for the property and area
Primrose Cottage is a spacious four-bedroom detached home set on large, private grounds just under a mile from Castle Cary. The property combines honey-stone character and cosy reception rooms with a striking, recently added glazed kitchen–dining–living extension that frames long-range countryside views. Its elevated position and enclosed garden make it a peaceful family retreat.

The extended open-plan hub features high-quality integrated Neff appliances, an island, underfloor heating and floor-to-ceiling storage — ideal for everyday family living and entertaining. The older parts of the house retain exposed stone, flagstone floors and working log burners, offering authentic cottage character alongside contemporary fittings. There are two insulated garden studios with bi-fold doors providing flexible workspace, gym or hobby rooms.

Practical points are clear and factual: heating is oil-fired, broadband speeds are slow in this location, and council tax is above average. The plot offers ample off-street parking plus a new carport; the oil tank is buried close to the gate for maintenance. Overall this is a large, well-presented home for buyers wanting substantial indoor space, versatile outbuildings and true rural privacy within easy reach of local amenities and rail links.

Property Details

Image Descriptions

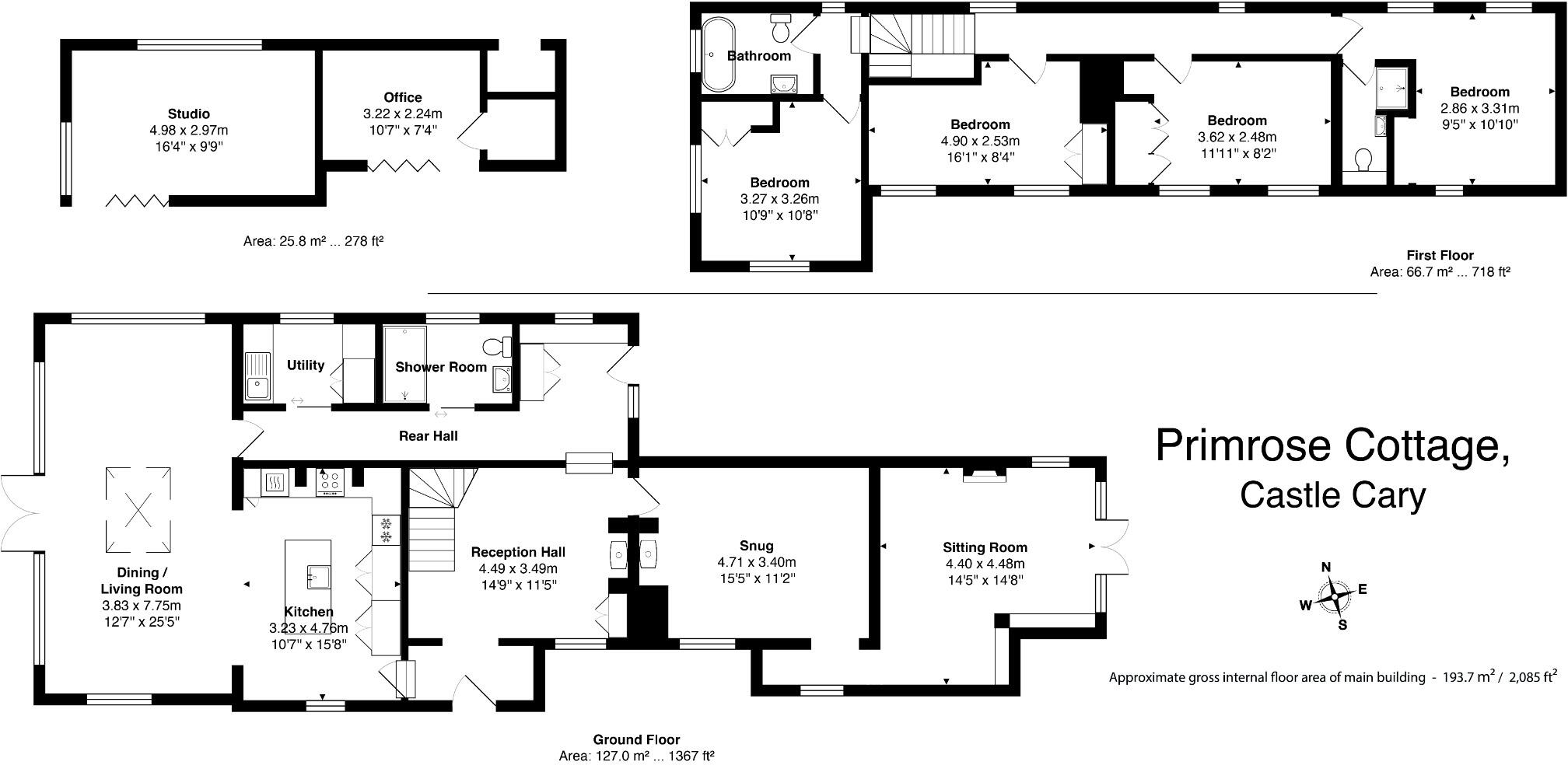
Floorplan Description

Rooms

Textual Property Features

Target Audience

AI Tags

Detected Visual Features

Nearby Schools

Nearest Bars And Restaurants

,,,,}

Nearest General Shops

,,}

Nearest Grocery shops

,,}

Nearest Supermarkets

,,}

Nearest Religious buildings

,,}

Nearest Medical buildings

,,,}

Nearest Leisure Facilities

,,,,}

Nearest Tourist attractions

,,}

Nearest Train stations

,,,,}

Nearest Bus stations and stops

,,,,}

Nearest Hotels

,,}

Tags

Local Market Stats

Similar Properties

Meta

High Res Images

Compatible Images

Low res Images

Thumbnails

Raw Images

High Res Floorplan Images

Compatible Floorplan Images

Low res Floorplan Images

FloorplanImages Thumbnail

Raw Floorplan Images