Chain-free apartment with gated parking and strong rental appeal.
Two double bedrooms and en-suite bathroom
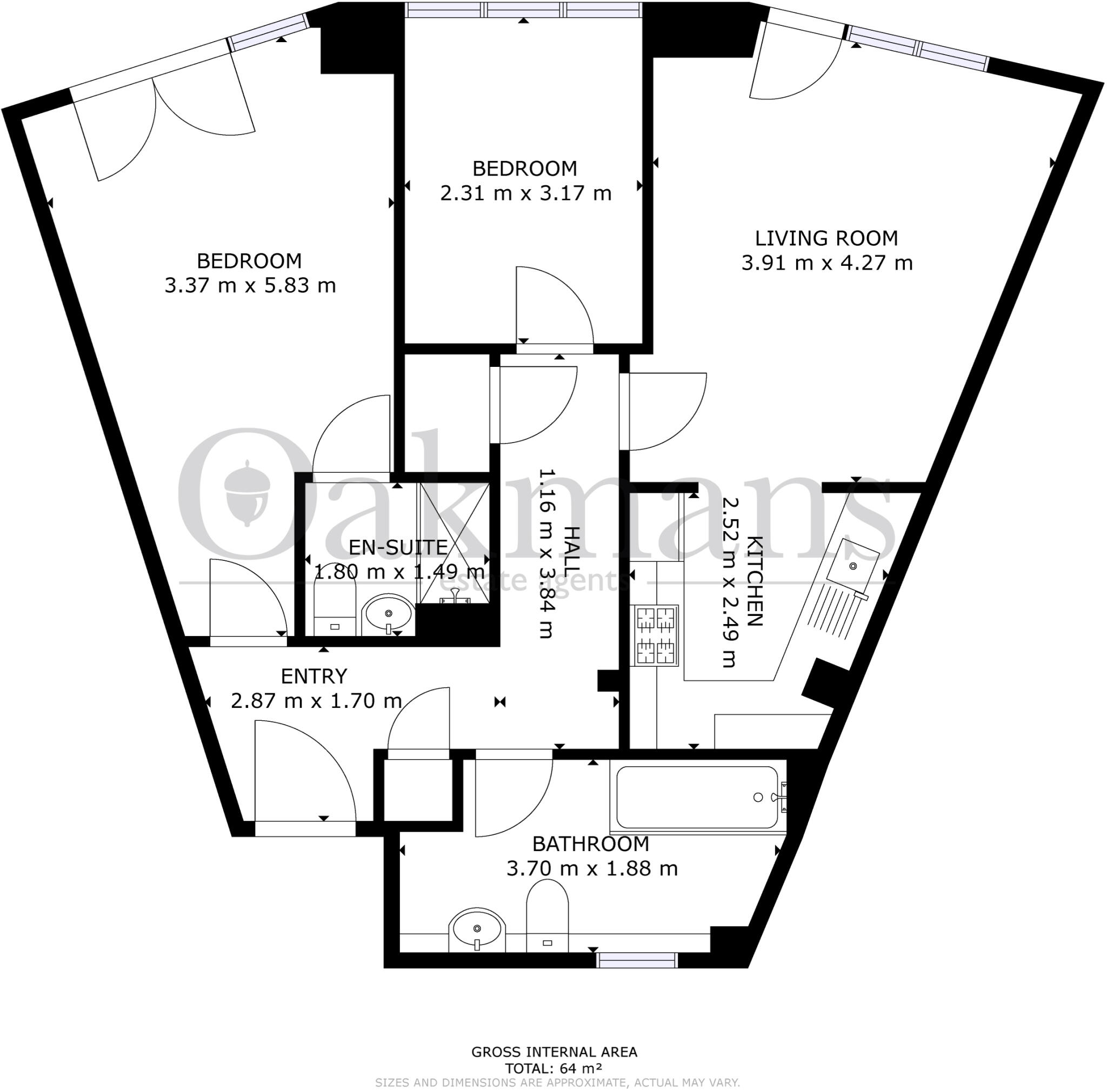
Set in a modern Lee Bank development, this two-double-bedroom apartment offers practical city-centre living with no upward chain. At around 688 sq ft the layout includes an entrance hall, lounge with arch to kitchen, two double bedrooms, a family bathroom and an en-suite — ready for immediate occupation or rental. Allocated gated parking and fast broadband add to everyday convenience.
The building dates from the late 1990s–early 2000s and benefits from double glazing, mains gas heating (boiler and radiators) and an EPC rating of B. Its central location places shops, transport links and city amenities within easy reach, making the flat suitable for professionals, investors or buyers seeking a compact urban home.
Important considerations: the property sits in an area classified as deprived with constrained neighbourhood characteristics, and some nearby state schools are rated “requires improvement.” The tenure details are not confirmed in the supplied information — buyers should verify lease length, service charges and ground rent before committing. Overall, this is a straightforward, chain-free central apartment with rental potential and scope for cosmetic updating.
2 bedroom apartment for sale in Navigation Street, Birmingham, West Midlands, B5 — £170,000 • 2 bed • 1 bath • 742 ft²
2 bedroom apartment for sale in Longleat Avenue, Birmingham, West Midlands, B15 — £184,000 • 2 bed • 1 bath • 657 ft²
2 bedroom apartment for sale in Alfred Knight Way, Birmingham, West Midlands, B15, West Midlands, B15 — £235,000 • 2 bed • 1 bath • 730 ft²
2 bedroom flat for sale in 2 Lee Bank Middleway, Edgbaston, Birmingham, B15 — £170,000 • 2 bed • 2 bath • 668 ft²
2 bedroom apartment for sale in Sherborne Street, Birmingham, B16 — £230,000 • 2 bed • 2 bath • 764 ft²
2 bedroom apartment for sale in Mason Way, Birmingham, B15 — £240,000 • 2 bed • 2 bath


















































































