Spacious historic home with garage and sun roof terrace for families.
Grade II listed 18th-century cottage with strong period features
Chain-free and centrally located — walkable to shops and services
Large attached garage providing off-street parking and storage
Sunny roof terrace above garage — extra outdoor living space
Three bedrooms, adaptable rooms over three floors, 1 bathroom only
Small plot with enclosed rear courtyard, limited garden space
Part-double glazing; gas central heating; average broadband speeds
Listed status will restrict alterations and may complicate works
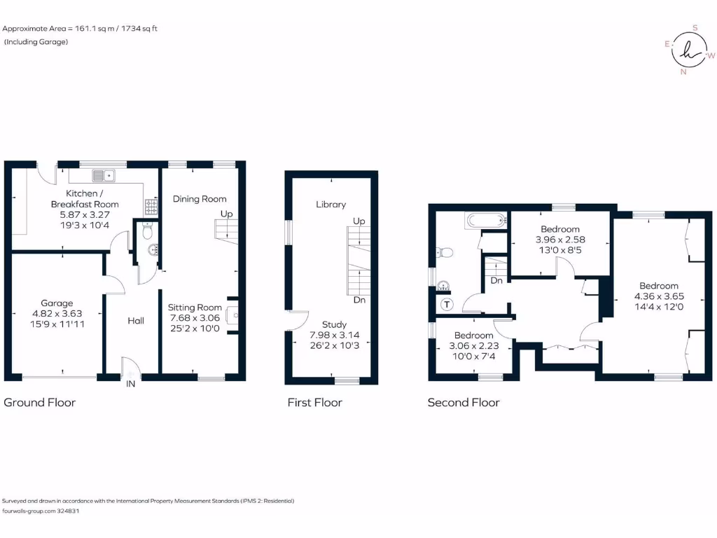
This spacious Grade II listed period cottage sits in the heart of Wilton, a short walk from shops, schools and services. Arranged over three floors, the house retains strong character — exposed timbers, sash windows, high ceilings and an open fireplace — while offering surprisingly adaptable accommodation for modern family life.
Practical benefits include a large attached garage, a sunny roof terrace over the garage, gas central heating and generous built-in storage. The kitchen/breakfast room and dual-aspect sitting room provide flexible living space; upstairs there are three bedrooms and useful additional rooms ideal for a study or family room.
Be aware this is a listed property: external and some internal changes will be restricted and may require consent. The house sits on a small plot with a rear courtyard rather than a garden, and there is a single bathroom serving three bedrooms. Some windows are part-double glazed and broadband speeds are average.
For buyers seeking character and room to adapt within a prosperous small-town setting, this chain-free cottage offers a rare combination of period charm, practical parking and a private roof terrace — but expect listed-status constraints and modest outdoor space.
3 bedroom semi-detached house for sale in West Street, Wilton, Salisbury, SP2 — £450,000 • 3 bed • 1 bath • 1313 ft²
3 bedroom terraced house for sale in Russell Street, Wilton, SP2 — £345,000 • 3 bed • 1 bath • 877 ft²
3 bedroom terraced house for sale in Russell Street, Wilton, Salisbury, SP2 — £650,000 • 3 bed • 2 bath • 2076 ft²
4 bedroom terraced house for sale in North Street, Wilton, Salisbury, Wiltshire, SP2 — £745,000 • 4 bed • 2 bath • 2760 ft²
3 bedroom terraced house for sale in Russell Street, Wilton, SP2 — £425,000 • 3 bed • 2 bath • 1184 ft²
2 bedroom house for sale in North Street, Wilton, Salisbury, SP2 — £350,000 • 2 bed • 2 bath • 958 ft²


































































































