Modern three-bed townhouse with garage, parking and countryside views — chain free.
Integral single garage with electricity and water
Allocated parking space beside the property
Private rear garden with patio and countryside terrace
Far-reaching views toward Dartmoor from kitchen terrace
Chain free sale; freehold tenure
EPC C — moderate energy performance
Constructed 2007–2011; modern timber-frame construction
Small plot size; compact outdoor space
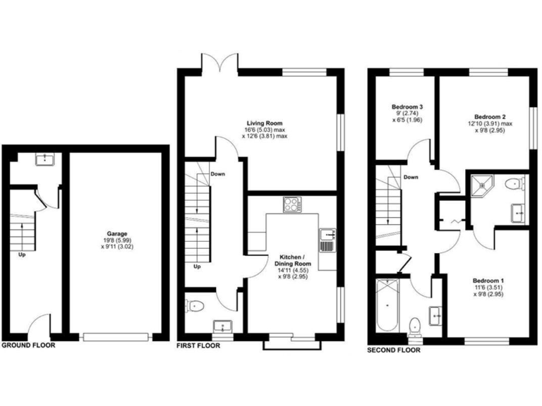
Set on a quiet development in Ogwell, this well-presented three-bedroom end-terrace townhouse offers practical family living with far-reaching countryside views. The house spans approximately 1,055 sq ft over three storeys and benefits from an integral single garage with power and water, plus an allocated parking space. The private rear garden includes a patio and side terrace overlooking open countryside toward Dartmoor.
The ground floor provides a useful utility and hallway; the first floor houses a modern fitted kitchen with sliding doors and a Juliette balcony, and a bright dual-aspect living room with French doors to the garden. Upstairs are three good-sized bedrooms, the principal with fitted wardrobes and an ensuite, alongside a contemporary family bathroom. The property has gas central heating, UPVC double glazing and was constructed 2007–2011.
Practical positives include freehold tenure, chain-free sale, low local crime, excellent mobile signal and fast broadband — helpful for commuters and home-workers. Local amenities in Newton Abbot are under 2 miles away, with good rail and road links to Exeter, Plymouth and London.
Notable considerations: the property sits on a relatively small plot and has an EPC rating of C. Buyers should note that the house is an end-terrace in a modern development (timber-frame construction assumed insulated), and any purchaser should verify fixtures, fittings and service condition independently.
3 bedroom semi-detached house for sale in Tamworth Close, Newton Abbot, TQ12 — £290,000 • 3 bed • 2 bath • 1438 ft²
3 bedroom house for sale in Saddleback Close, Newton Abbot, TQ12 — £265,000 • 3 bed • 3 bath • 1009 ft²
3 bedroom semi-detached house for sale in Gascon Close, Ogwell, TQ12 — £325,000 • 3 bed • 2 bath • 1416 ft²
3 bedroom terraced house for sale in St. Bartholomews Road, Ogwell, TQ12 6GP, TQ12 — £280,000 • 3 bed • 2 bath • 1398 ft²
3 bedroom end of terrace house for sale in Beverley Way, Newton Abbot, TQ12 — £350,000 • 3 bed • 1 bath • 1319 ft²
4 bedroom detached house for sale in Buttercombe Close, Ogwell, TQ12 — £450,000 • 4 bed • 3 bath • 1494 ft²














































































