Newly refurbished one-bedroom moments from Earls Court tube and local amenities.
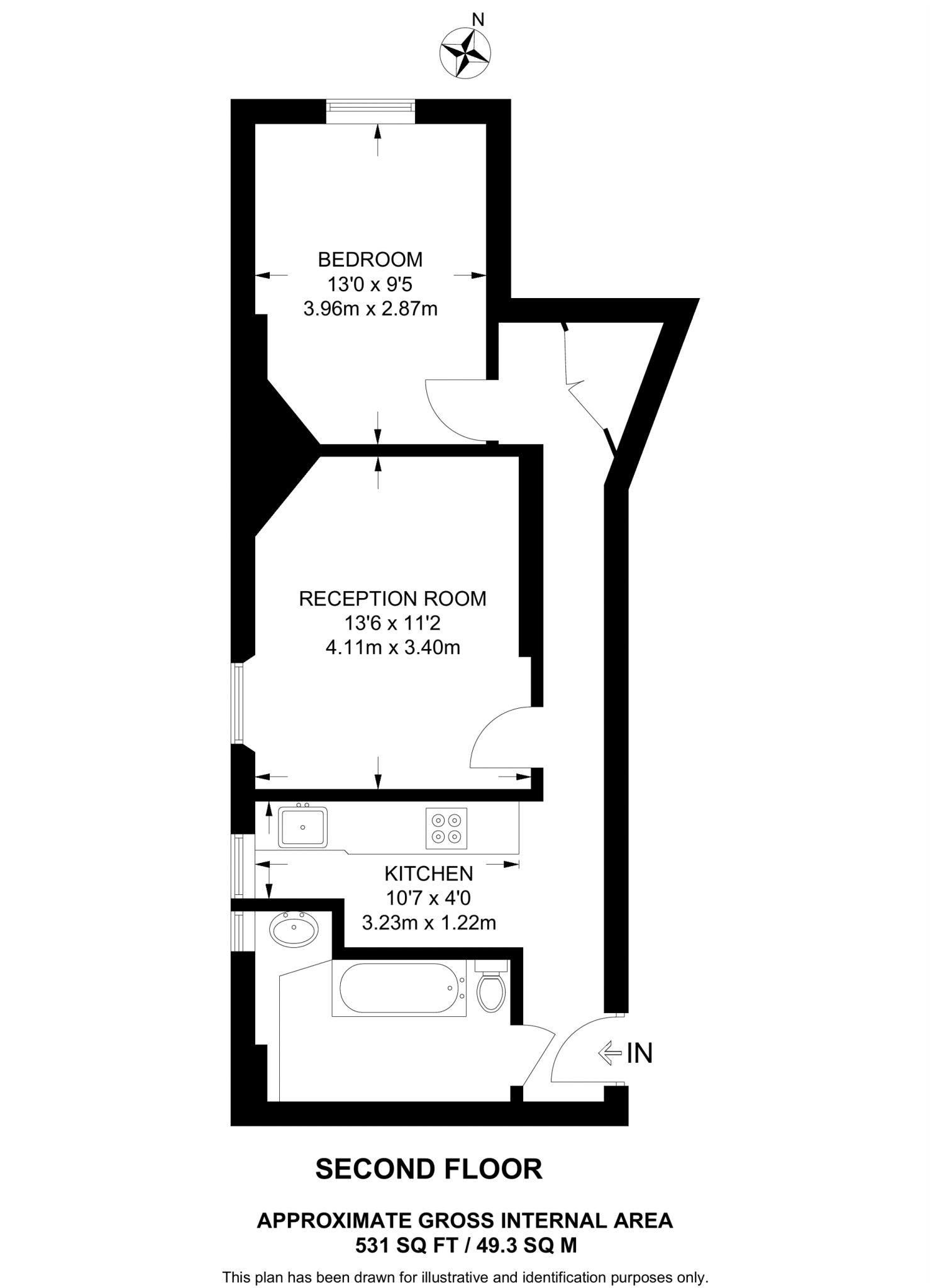
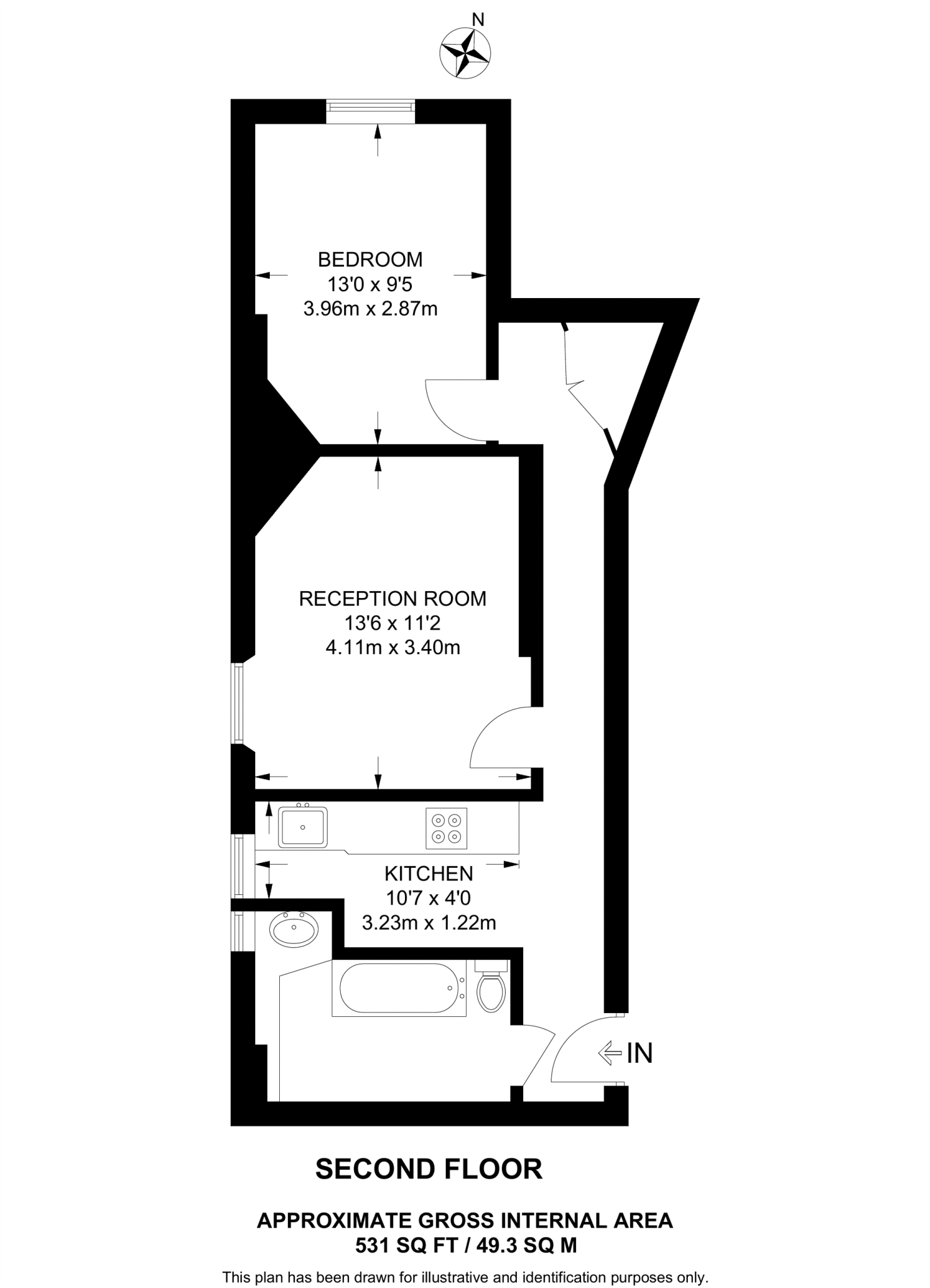
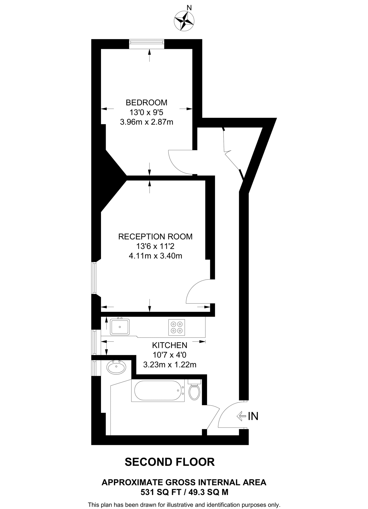
Second-floor flat in Victorian red-brick mansion block with lift access
Newly refurbished throughout; neutral decor and ample built-in storage
Bright reception with dining area and high ceilings, 531 sq ft overall
Long lease — 166 years remaining
Moments from Earls Court tube, shops, cafés and restaurants
Service charge £2,074 pa; ground rent £50 pa
Solid brick construction; no insulation assumed, may need thermal upgrades
Double glazing present; install date unknown
Set on the second floor of a handsome red-brick mansion block, this newly refurbished one-bedroom flat offers light-filled living and usable dining space ideal for first-time buyers. The reception has high ceilings and large windows; the kitchen is well equipped and interiors are neutrally finished with useful built-in storage throughout.
Practical details are favourable: a long lease of 166 years, lift access, double glazing, and mains gas central heating via boiler and radiators. The apartment measures about 531 sq ft — a comfortable size for a one-bedroom London home — and sits moments from Earls Court Underground and the shops, cafés and restaurants along Old Brompton Road.
Buyers should note the property is leasehold with an annual service charge of £2,074 and a small ground rent of £50. The building is a Victorian solid-brick construction (no cavity insulation assumed), so further thermal upgrades could be considered in future and the double-glazing install date is unknown. The local area is an inner-city, multicultural neighbourhood with average crime and deprivation statistics.
This flat will suit a buyer seeking a move-in ready central London home with period character, good storage and excellent transport links. It also offers straightforward rental potential for investors given the location and low immediate maintenance needs, though service charges and potential insulation work are worth factoring into long-term costs.
1 bedroom flat for sale in Nevern Square, Earls Court, London, SW5 — £530,000 • 1 bed • 1 bath • 547 ft²
1 bedroom flat for sale in Old Brompton Road, South Kensington, London, SW5 — £630,000 • 1 bed • 1 bath • 610 ft²
1 bedroom apartment for sale in Old Brompton Road, London, SW5 — £500,000 • 1 bed • 1 bath • 459 ft²
1 bedroom flat for sale in Old Brompton Road, Earls Court, London, SW5 — £595,000 • 1 bed • 1 bath • 502 ft²
1 bedroom flat for sale in Old Brompton Road, London, SW5 — £650,000 • 1 bed • 1 bath • 636 ft²
1 bedroom flat for sale in West Kensington, Barons Court, London, W14 — £495,000 • 1 bed • 1 bath • 552 ft²










































































































































































































































