**Standout Features:**
- Prime location in Media City Tower B, heart of MediaCityUK.
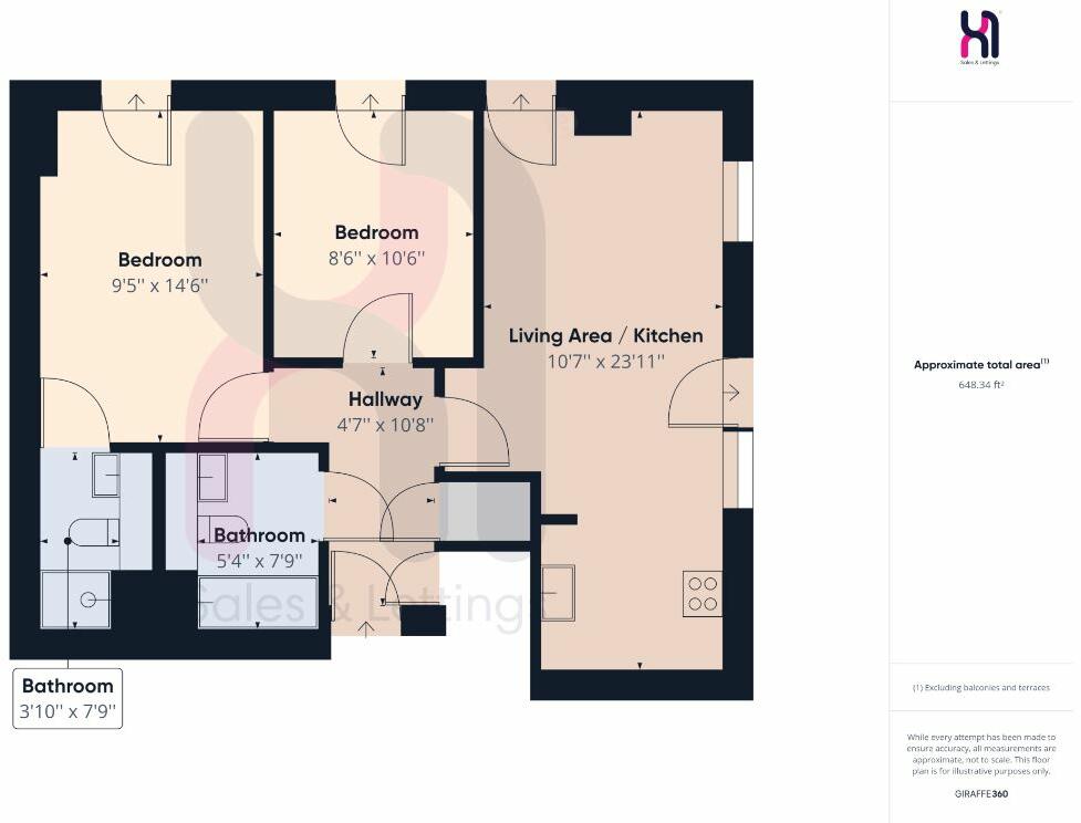
- Modern 2-bedroom, 2-bathroom apartment on the 20th floor.
- Secured underground parking included.
- Current rental income of £1,300 per month with a tenant secured until March 2025.
- Excellent building facilities, including a gym, cinema room, and communal dining areas.
- EWS1 certification in place, assuring safety compliance.
**Concerns**:
- Leasehold property with 951 years remaining; service charge of £2,441.16/year.
- Ground rent of £250/year with the next review on 31.12.2024.
- Council tax payable; band C.
Elevate your lifestyle with this modern 2-bedroom apartment perched on the 20th floor of the X1 Media City Tower B, characterized by expansive floor-to-ceiling windows that offer sweeping urban views and an abundance of natural light. Ideal for investors, this beautifully furnished flat comes complete with a tenant already in place, enabling immediate rental income, including an additional fee for the underground parking. The open-plan layout fosters a welcoming environment, perfect for social gatherings.
Nestled in a cosmopolitan community, enjoy top-notch amenities just a stone's throw away, including onsite fitness facilities, and convenient access to local transport links, enhancing its appeal for professionals and families alike. With a very low crime rate and the affluence of the area, this property promises a secure investment with plenty of growth potential. Don't miss the opportunity to experience contemporary apartment living in a vibrant neighborhood—schedule a viewing today before this highly sought-after property slips away!
2 bedroom flat for sale in Media City, Michigan Point Tower A, 9 Michigan Avenue, Salford, M50 — £210,000 • 2 bed • 2 bath • 648 ft²
2 bedroom flat for sale in Media City, Michigan Point Tower B, 11 Michigan Avenue, Salford, M50 — £209,000 • 2 bed • 2 bath • 678 ft²
2 bedroom flat for sale in Media City, Michigan Point Tower B, 11 Michigan Avenue, Salford, M50 — £199,950 • 2 bed • 2 bath • 678 ft²
2 bedroom flat for sale in Media City, Michigan Point Tower A, 9 Michigan Avenue, Salford, M50 — £215,000 • 2 bed • 2 bath • 689 ft²
2 bedroom flat for sale in Media City, Michigan Point Tower B, 11 Michigan Avenue, Salford``, M50 — £190,000 • 2 bed • 2 bath
2 bedroom flat for sale in Media City, Michigan Point Tower A, 9 Michigan Avenue, Salford, M50 — £225,000 • 2 bed • 2 bath • 689 ft²


















































































