Large period family home with versatile loft space near city amenities.
Victorian terraced house with extensive original period features throughout
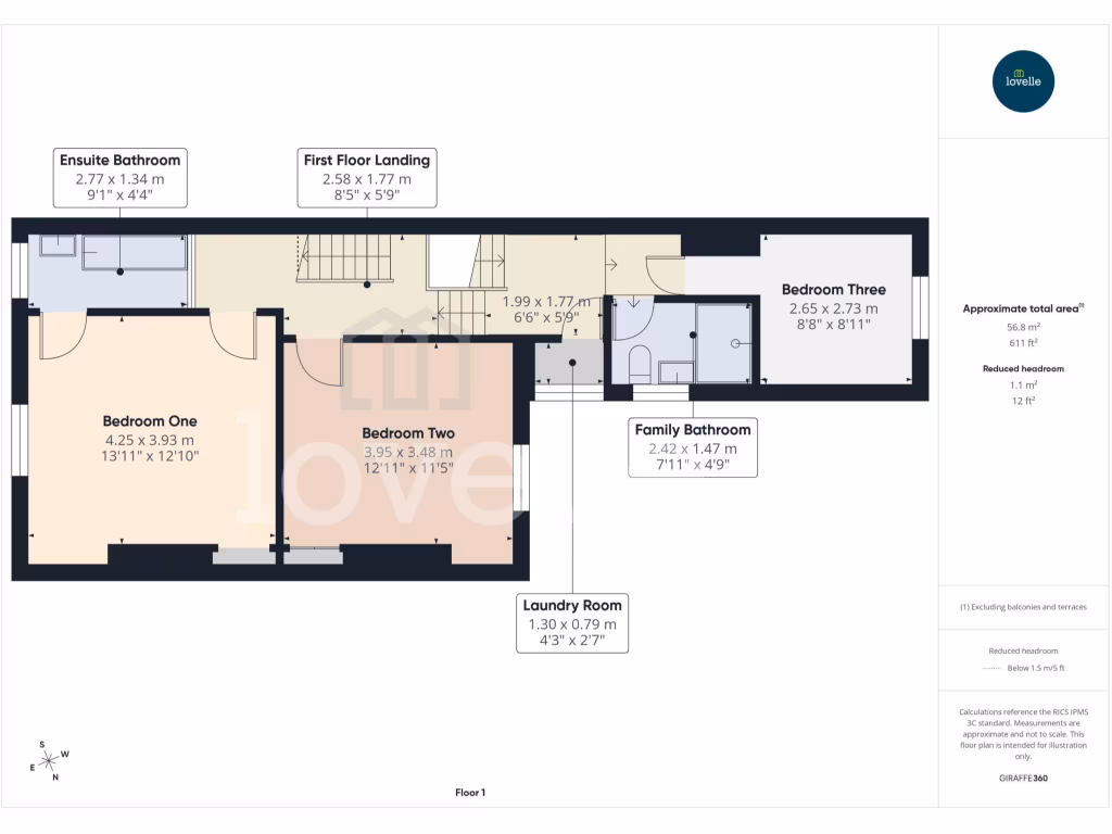
Spacious accommodation circa 1,616 sq ft, including large loft room
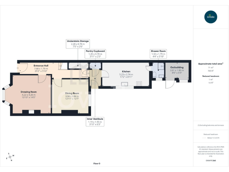
Bright modern kitchen with integrated appliances and boiler in-situ
Ground-floor shower room plus first-floor family bathroom
Brick and slate outbuilding with power — laundry/workshop potential
Small rear garden with York stone patio and gated access
EPC rating D — energy efficiency and running costs may be higher
Located in a very deprived area with higher local crime statistics
Step inside this generously proportioned Victorian terraced house and you’ll find dramatic period detail throughout: high ceilings, ornate plasterwork, original pitch pine doors and a grand east-facing bay window that fills the principal reception with morning light. The main living rooms retain grand skirtings, centre roses and an elegant cast‑iron fireplace, giving a strong sense of character and scale suited to family living and entertaining.
The layout is practical for modern family life. A bright, contemporary kitchen with integrated appliances links to a useful ground-floor shower room and a brick-and-slate outbuilding that currently serves as laundry/workshop space. Upstairs are two double bedrooms, a single bedroom and a well-appointed family bathroom; a large loft room above offers flexible space for a home office, playroom or guest suite.
Externally the property sits on a small plot with a York stone patio, lawn and gated rear access — manageable for families wanting outdoor space without heavy maintenance. The house is freehold and largely well maintained, with recent practical additions such as a new staircase to the loft and a modern boiler located in the kitchen for easy servicing.
Buyers should note a few practical drawbacks: the EPC is rated D and the property is in a very deprived area with higher-than-average local crime statistics. The plot is small and the location close to the city centre reflects an urban, mixed neighbourhood. These factors may affect running costs and resale profiles but are balanced by substantial living space (circa 1,616 sq ft), preserved period features and proximity to schools and amenities.
3 bedroom terraced house for sale in Plane St, Hull, HU3 6BU, HU3 — £129,950 • 3 bed • 1 bath • 1204 ft²
4 bedroom terraced house for sale in Spring Bank West, Hull, HU3 1LB, HU3 — £210,000 • 4 bed • 1 bath • 1834 ft²
3 bedroom terraced house for sale in Duesbery Street, Hull, HU5 — £160,000 • 3 bed • 1 bath • 1400 ft²
3 bedroom house for sale in Dorset Street, Hull, HU4 — £95,000 • 3 bed • 1 bath • 948 ft²
3 bedroom terraced house for sale in Melrose Street, Hull, HU3 — £115,000 • 3 bed • 3 bath • 1280 ft²
1 bedroom end of terrace house for sale in Alexandra Avenue, Mayfield Street, Hull, East Riding of Yorkshire, HU3 1NZ, HU3 — £70,000 • 1 bed • 1 bath • 860 ft²


















































































































































































































































