Light, modern two-bedroom home near parks and schools.
Period bay-fronted terrace with attractive original features
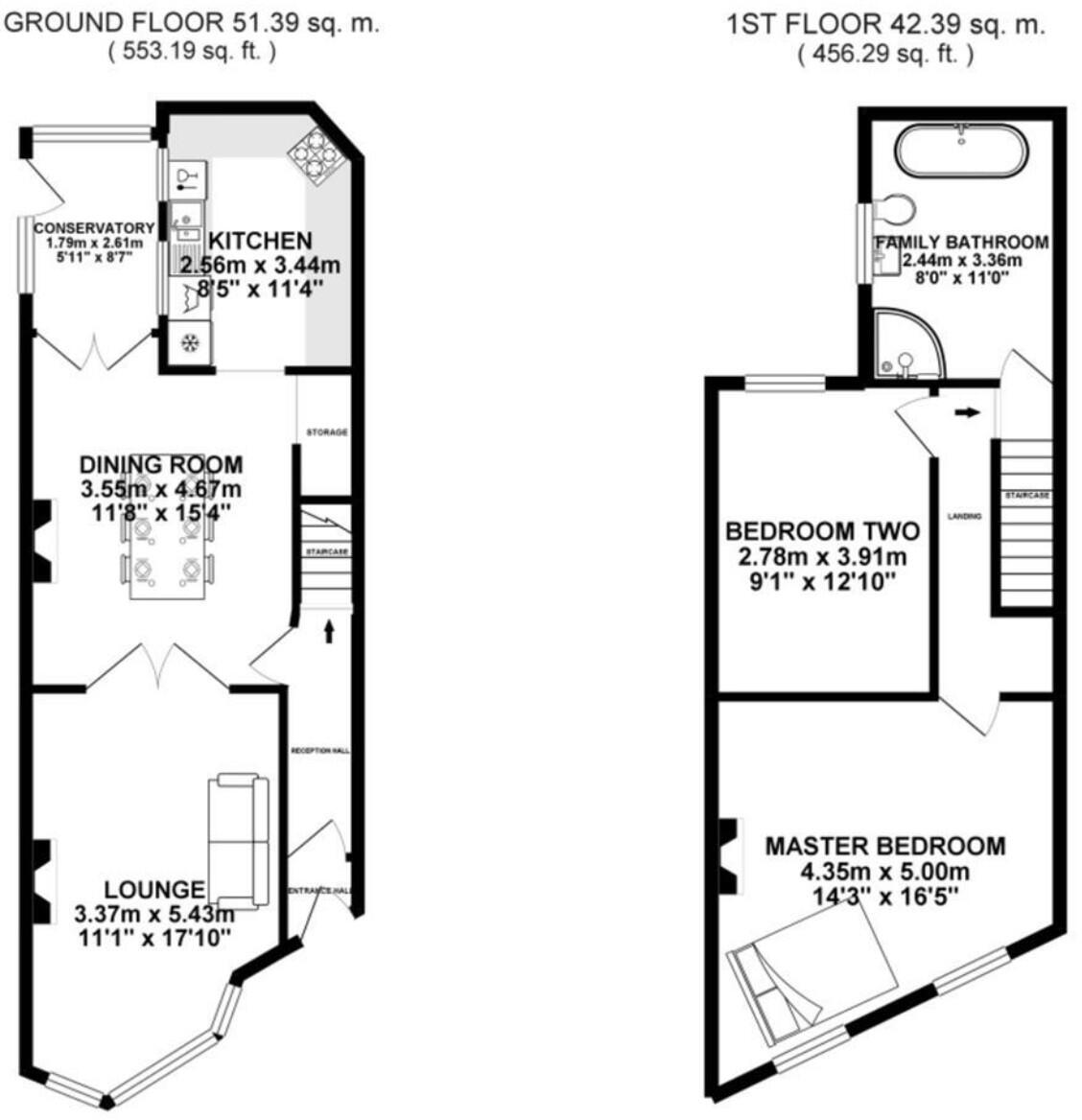
This bay-fronted period terrace blends original character with a bright, modern interior — ideal for a growing family seeking space close to town. A bay-windowed lounge flows into an open-plan dining room, while a recently fitted kitchen and handy utility make daily life straightforward.
Upstairs offers two double bedrooms and a four-piece contemporary bathroom with separate bath, shower enclosure and underfloor heating for comfort. At around 1,023 sq ft the house feels generous for a two-bedroom terrace and retains pleasing period detail throughout.
Outside, a low-maintenance yard provides private outdoor space. The location is a real draw: central Chorley, walking distance to Astley Park, shops, transport links and well-regarded schools including St Michael’s and Parklands.
Notable practical points: the property is leasehold and sits in an area with higher crime and local deprivation indices. The cavity walls are assumed uninsulated, which may affect running costs unless upgraded. Broadband and mobile signals are strong, and there is no flooding risk.
2 bedroom terraced house for sale in Pilling Lane, Chorley, PR7 — £139,995 • 2 bed • 1 bath • 984 ft²
2 bedroom terraced house for sale in Alker Street, Chorley, PR7 — £129,995 • 2 bed • 1 bath • 766 ft²
2 bedroom house for sale in Seymour Street, Chorley, PR6 — £100,000 • 2 bed • 1 bath • 675 ft²
3 bedroom terraced house for sale in Liege Road, Leyland, Lancashire, PR25 — £209,950 • 3 bed • 1 bath • 1259 ft²
2 bedroom terraced house for sale in Geoffrey Street, Chorley, PR6 — £119,995 • 2 bed • 1 bath • 760 ft²
2 bedroom terraced house for sale in Congress Street, Chorley, Lancashire, PR7 — £135,000 • 2 bed • 1 bath • 762 ft²


































































