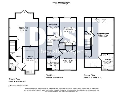
Three-storey, four-bedroom home in a quiet cul-de-sac with driveway parking.
Generous master suite with air conditioning and en‑suite facilities
Light-filled and carefully finished, this three-storey semi-detached house is aimed at growing families seeking space and commuter convenience. The top-floor master is a private retreat with air conditioning, dressing area and a modern en-suite; three further bedrooms (two with built-in wardrobes) provide flexible sleeping or home‑office options. The ground floor offers a well-proportioned lounge/diner with bay window and French doors opening to a landscaped, enclosed rear garden — good for children and outdoor entertaining.
Practical everyday living is supported by a driveway for two cars, a downstairs cloakroom, and full‑fibre broadband availability from multiple providers. The house is Freehold and sits in a quiet cul‑de‑sac with easy access to major commuter routes and Morley town amenities, plus several highly rated local schools within easy reach.
Be aware of a few material points: the plot is modest in size, so external space is manageable rather than expansive, and local crime statistics are above average for the wider area. Internally the property presents well and was built in recent years, but buyers wanting a larger garden or very low-crime neighbourhood should consider those factors. A virtual tour is available for a full walkthrough.
4 bedroom town house for sale in Mill Houses, South Street, Morley, Leeds, West Yorkshire, LS27 — £330,000 • 4 bed • 2 bath • 898 ft²
3 bedroom end of terrace house for sale in Shire Road, Morley, Leeds, West Yorkshire, LS27 — £223,000 • 3 bed • 1 bath • 746 ft²
3 bedroom town house for sale in Siegen Way, Morley, Leeds, LS27 — £250,000 • 3 bed • 2 bath • 579 ft²
3 bedroom semi-detached house for sale in Stopes Walk, Morley, Leeds, West Yorkshire, LS27 — £290,000 • 3 bed • 2 bath • 815 ft²
4 bedroom detached house for sale in Stopes Court, Morley, Leeds, West Yorkshire, LS27 — £429,995 • 4 bed • 2 bath • 933 ft²
3 bedroom semi-detached house for sale in Stopes Walk, Morley, Leeds, LS27 — £290,000 • 3 bed • 2 bath • 815 ft²






































































































































