Practical three-bedroom house with garden, parking and scope to personalise.
Three bedrooms and two reception rooms for flexible family use
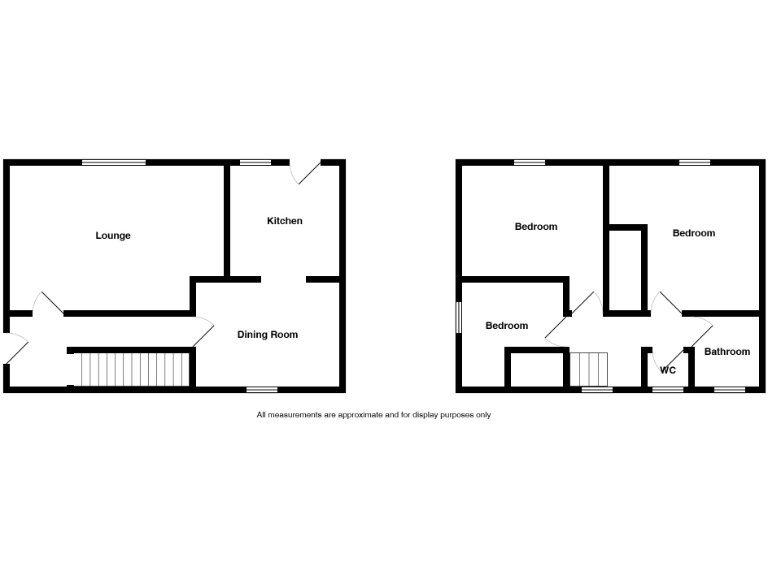
This three-bedroom semi-detached house in Wyke Regis offers practical family living with straightforward layout and outside space. The ground floor provides two reception rooms and a kitchen leading directly to an enclosed rear garden, so everyday family routines and outdoor play are easy to manage. The property is freehold and comes with off-street parking to the front.
Upstairs the principal bedroom and second bedroom both enjoy distant sea glimpses. Accommodation includes a separate WC plus a family bathroom; total internal area is around 840 sq ft. Windows are double glazed (installed before 2002) and heating is mains gas with a boiler and radiators. Council tax is described as inexpensive for the area.
Built in the mid-20th century as a system-built home, the house offers good bones but will benefit from updating and improved insulation. Notable fabric details include system-built walls with no assumed insulation, and some modernisation would improve energy efficiency and comfort. The property is well situated for local shops, parks, bus links and several primary schools rated Good by Ofsted.
This home will suit families or first-time buyers looking for an accessible seaside town location with scope to personalise. It also presents potential for investors willing to carry out modest improvements to increase value and reduce running costs.
3 bedroom terraced house for sale in Cunningham Close, Weymouth, DT4 — £260,000 • 3 bed • 2 bath • 969 ft²
4 bedroom semi-detached house for sale in Overlands Road, Weymouth, DT4 — £285,000 • 4 bed • 1 bath • 861 ft²
2 bedroom semi-detached house for sale in Langton Avenue, Weymouth, DT4 — £300,000 • 2 bed • 1 bath • 1035 ft²
3 bedroom semi-detached house for sale in Gallwey Road, Wyke, DT4 — £280,000 • 3 bed • 2 bath • 958 ft²
3 bedroom semi-detached house for sale in Mountbatten Close, Weymouth, DT4 — £290,000 • 3 bed • 1 bath • 818 ft²
3 bedroom semi-detached house for sale in Wyke Regis, DT4 — £270,000 • 3 bed • 1 bath • 708 ft²










































