Tidy, move-in ready three-bed semi with garden and driveway, near schools and transport..
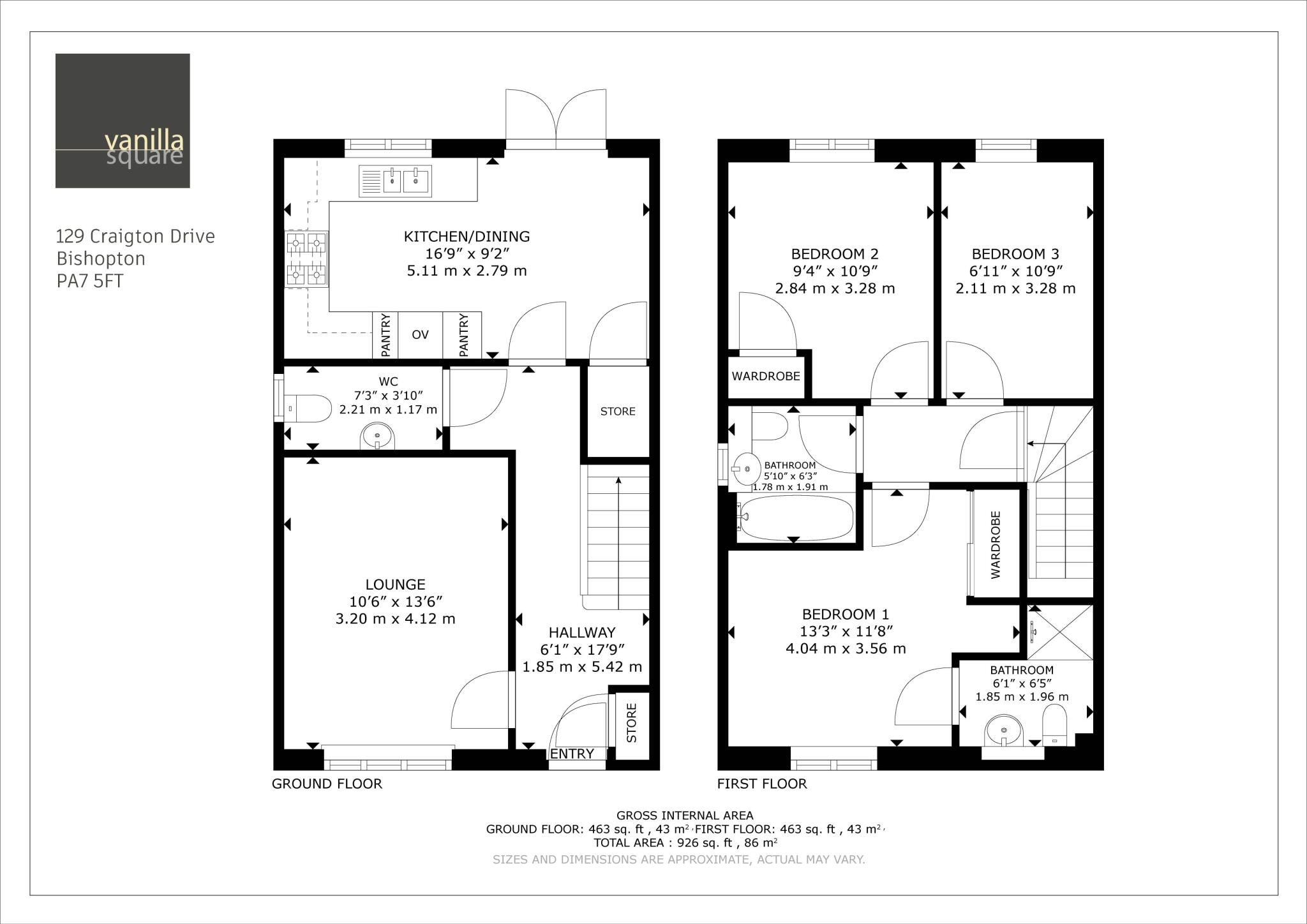
Freehold three-bedroom semi-detached, approx 926 sq ft
Master bedroom with private en-suite shower room
Modern fitted kitchen, downstairs WC, bright living room
Private driveway providing off-street parking
Secure rear garden, suitable for children and entertaining
Energy Efficiency Rating B; move-in ready condition
Fast broadband and excellent mobile signal for home working
Wider area classified as very deprived; verify room count (images note 2 beds)
129 Craigton Drive is a tidy, freehold three-bedroom semi-detached home offering around 926 sq ft of living space across two floors. The layout includes a bright living room, modern fitted kitchen with dining space, a downstairs WC, and three bedrooms upstairs — the master with an en-suite — making it a practical family home close to schools, parks and local amenities.
The property is presented as move-in ready with modern finishes and an Energy Efficiency Rating of B. Outside there is private off-street parking on the driveway and a secure rear garden suitable for children and outdoor entertaining. Broadband speeds are fast and mobile signal is excellent, which suits remote work and family connectivity.
Buyers should note a material local issue: the wider area is classified as very deprived, which can affect local services and long-term area prospects. Also, some image metadata supplied with the listing references two bedrooms rather than three; buyers are advised to verify room count and view the property to confirm details before proceeding.
Overall this house will suit families or first-time movers seeking a compact, low-maintenance home with good transport links for commuting to Glasgow and affordable council tax costs.
3 bedroom semi-detached house for sale in Barmore Crescent, Bishopton, PA7 — £229,000 • 3 bed • 2 bath • 979 ft²
3 bedroom semi-detached house for sale in Craigton Drive, Bishopton, PA7 — £240,000 • 3 bed • 2 bath • 818 ft²
3 bedroom semi-detached house for sale in Craighead Road, Bishopton, PA7 — £225,000 • 3 bed • 1 bath • 798 ft²
3 bedroom semi-detached house for sale in 68 Craigton Drive, Bishopton, Renfrewshire, PA7 — £235,000 • 3 bed • 3 bath
3 bedroom semi-detached house for sale in Brodie Park Crescent, Paisley, PA2 — £230,000 • 3 bed • 1 bath • 926 ft²
3 bedroom semi-detached house for sale in Craigmuir Drive, Bishopton, Renfrewshire, PA7 — £245,000 • 3 bed • 3 bath • 919 ft²










































































