**Standout Features:**
- Traditional farmhouse built circa 1870
- Approximately 0.687 acres of landscaped gardens and fruit orchard
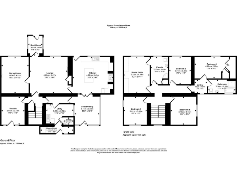
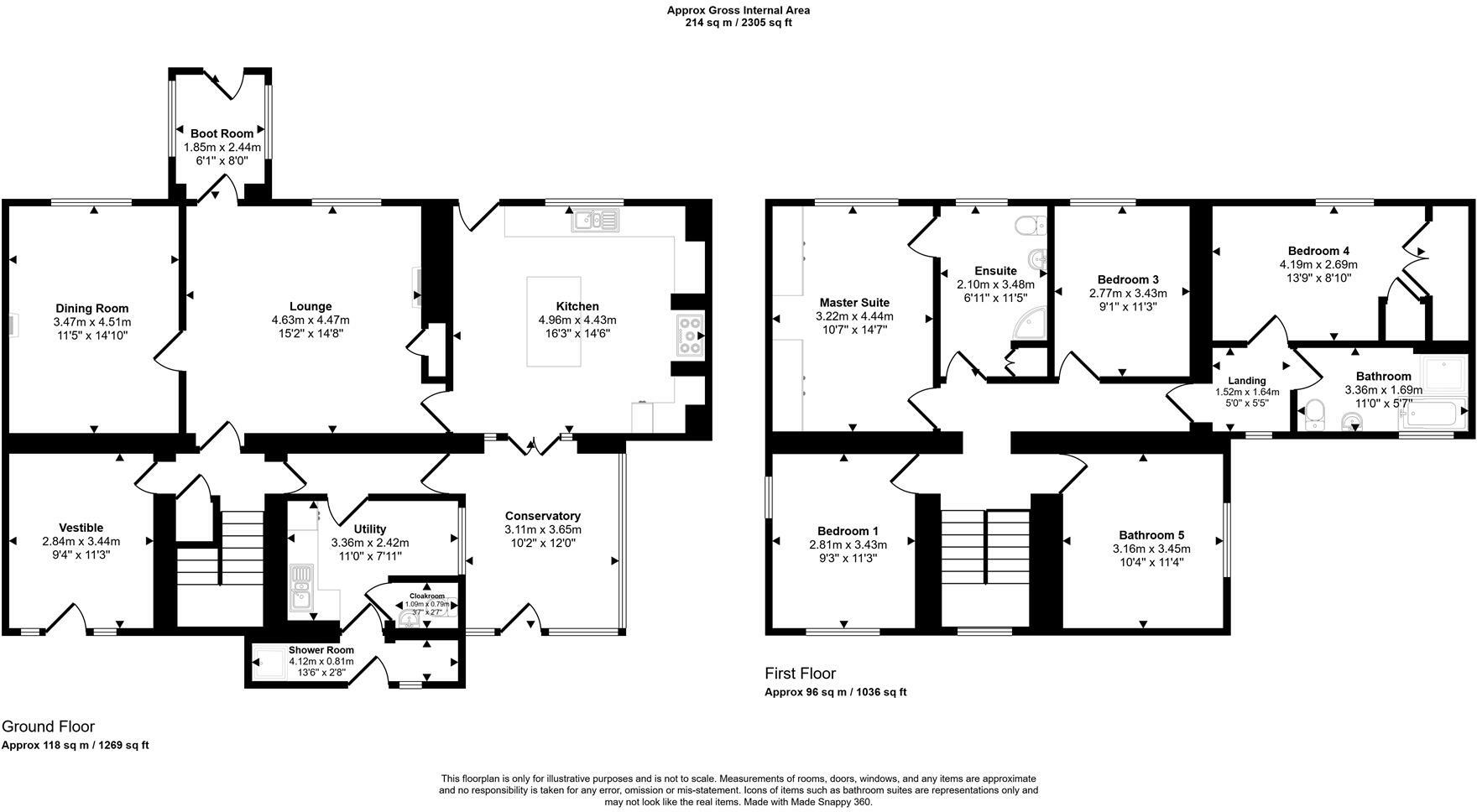
- Five bedrooms and three reception rooms
- Oil-fired central heating with underfloor heating in bathrooms and kitchen
- Garage and ample off-road parking
- Scenic views over St. Peter's Church ruins
- Located within proximity to Pembrokeshire Coast National Park
- Fast fiber broadband connectivity
**Potential Concerns:**
- Requires some maintenance for aging structural features
- No insulation assumed in original stone walls
- Located in a very deprived area, which may impact local amenities
**Summary Description:**
Discover the charm of this traditional farmhouse, set amidst approximately 0.687 acres of beautiful gardens and a productive fruit orchard. With five spacious bedrooms and three inviting reception rooms, this property is a perfect family home in a serene rural setting. Enhanced by modern comforts such as oil-fired central heating and double glazing, the home also features underfloor heating in the bathrooms and kitchen, ensuring warmth and comfort all year round.
Outside, the expansive front, rear, and side gardens provide a peaceful retreat, complete with a well for garden irrigation and a scenic footbridge leading to further lawn areas. The property comes with ample off-road parking and a garage, making it a practical choice for families. Enjoy the allure of countryside living while being just a short drive from Haverfordwest and local amenities. With its historic appeal and modern renovations, this farmhouse is a rare find that won’t be on the market for long. Explore the potential for creating additional access or extending the property to suit your needs. Experience the comfort and tranquility of rural life today!
6 bedroom barn conversion for sale in Llanferran Farm, Rhodiad, St Davids, SA62 — £950,000 • 6 bed • 2 bath • 6589 ft²
6 bedroom detached house for sale in Fishguard, Pembrokeshire, SA65 — £500,000 • 6 bed • 3 bath • 2663 ft²
4 bedroom country house for sale in Withybush Lodge Farm,Crundale, Haverfordwest, SA62 — £350,000 • 4 bed • 2 bath • 1302 ft²
4 bedroom detached house for sale in Hasguard, Haverfordwest, Pembrokeshire, SA62 — £475,000 • 4 bed • 2 bath • 1647 ft²
6 bedroom detached house for sale in The Farmhouse, Broadway, Broad Haven, Haverfordwest, SA62 — £649,950 • 6 bed • 3 bath • 2921 ft²
4 bedroom detached house for sale in Rosemarket, Milford Haven, Sir Benfro, SA73 — £625,000 • 4 bed • 2 bath • 1610 ft²






























































































































































































