**Standout Features:**
- Modern mid-terrace townhouse in Alderley Park
- Newly built by renowned developer PJ Livesey
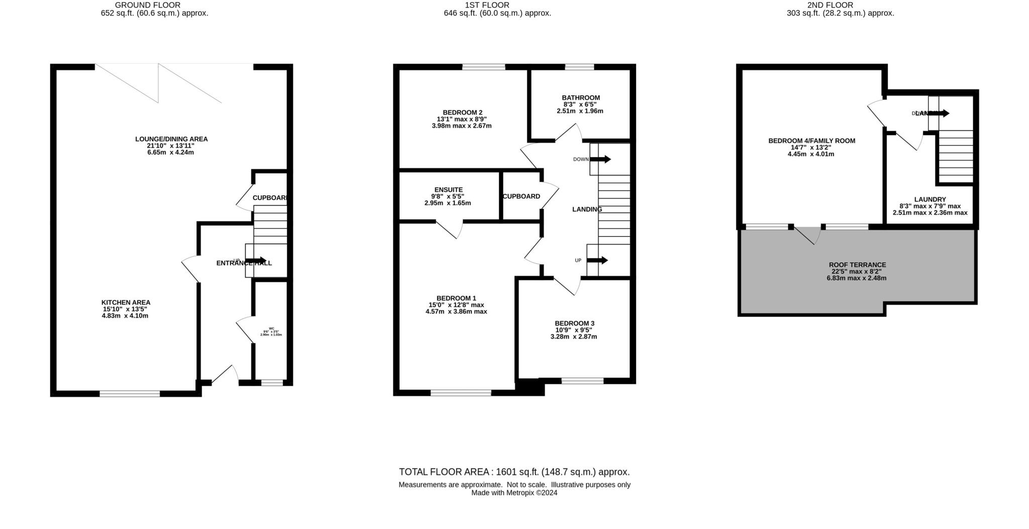
- Approximately 1,600 sq ft across three levels
- Open plan living area with bi-folding doors
- Up to four bedrooms, including a master en-suite
- Landscaped private garden; allocated off-street parking for two cars
- Access to over 400 acres of private parkland and on-site amenities
**Summary:**
Discover luxury living in this stunning mid-terrace townhouse nestled in the coveted Alderley Park development. Constructed to the highest standards, this modern home spans approximately 1,600 sq ft, providing exceptional flexibility and comfort across three well-designed floors. The open plan kitchen and living area is perfect for entertaining, accentuated by bi-folding doors that invite natural light and seamless access to the beautifully landscaped garden.
Upstairs, you’ll find three generously-sized bedrooms, highlighted by a master suite with a stylish en-suite bathroom. The top floor offers a versatile space currently used as a study, which can easily transform into a fourth bedroom, complete with a spacious roof terrace—ideal for afternoon relaxation with views over the vibrant surroundings.
Nestled in a low-crime, affluent area, this property is proximity to essential amenities and reputable schools, making it perfect for families or as a worthwhile investment. Enjoy the benefits of a private, secure environment complete with 24-hour security, and take advantage of the nearby state-of-the-art gym and pub-restaurant. Don’t miss your chance to own a piece of this exclusive community; schedule your viewing today!
4 bedroom mews property for sale in Congleton Road, Nether Alderley, Macclesfield, SK10 — £799,950 • 4 bed • 3 bath • 1630 ft²
3 bedroom semi-detached house for sale in West Courtyard, Alderley Park, Nether Alderley, SK10 — £650,000 • 3 bed • 2 bath • 1390 ft²
4 bedroom detached house for sale in Broadstone Close, Alderley Park, Nether Alderley, Cheshire, SK10 — £935,000 • 4 bed • 2 bath • 1626 ft²
4 bedroom detached house for sale in Eagles Road, Alderley Park, Nether Alderley, Cheshire, SK10 — £950,000 • 4 bed • 2 bath • 1720 ft²
3 bedroom apartment for sale in Water Garden, Alderley Park, Nether Alderley, SK10 — £1,235,000 • 3 bed • 3 bath • 1724 ft²
3 bedroom semi-detached house for sale in Osprey Close, Nether Alderley, SK10 — £730,000 • 3 bed • 3 bath • 1592 ft²






































































































































