**Standout Features:**
- Luxurious 2-bedroom apartment in St George Wharf, London
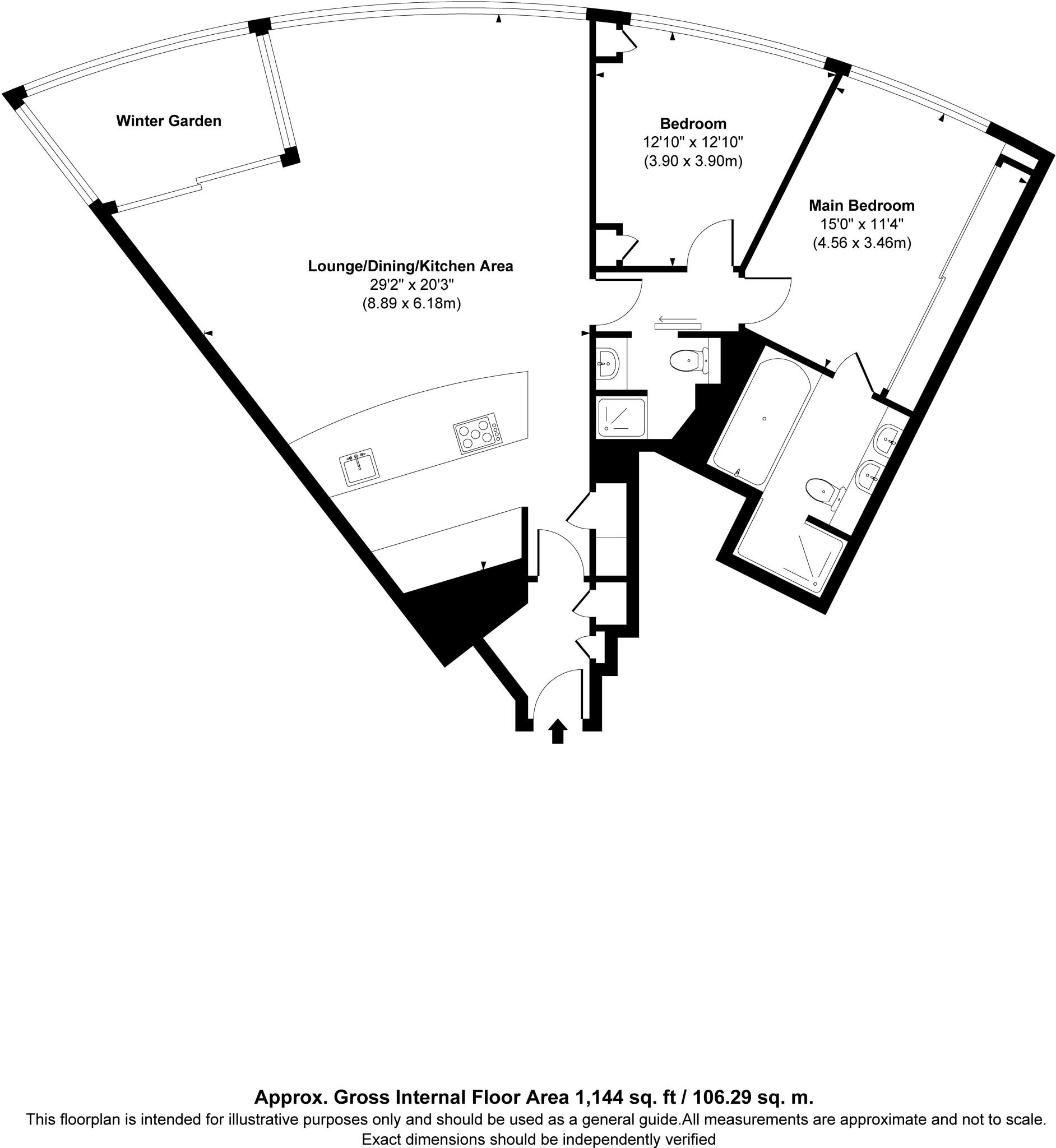
- Spacious 1,150 sq ft with high ceilings and triple-glazed windows
- Stunning south-facing views of the River Thames
- Modern open-plan living space with high-spec kitchen
- Access to world-class amenities including an indoor pool, spa, gym, cinema, and 24/7 concierge services
- Valet parking included
**Notable Concerns:**
- Leasehold property with future service charges
- Located in an area with high crime rates
Discover an exceptional lifestyle in this luxurious 2-bedroom apartment situated within one of London's tallest residential towers in St George Wharf. Spanning an impressive 1,150 sq ft, the apartment features stunning triple-glazed windows that illuminate the open-plan living space with natural light and picturesque views of the River Thames. The contemporary design includes a high-spec kitchen fitted with premium appliances, along with two generous bedrooms and sleek bathrooms, creating an indulgent yet functional living space.
Enjoy unmatched amenities at your doorstep, including an indoor swimming pool, spa, fully-equipped gym, private cinema, and 24-hour concierge services — all complementing your modern urban lifestyle. Located just minutes from Vauxhall station, with easy access to riverside dining, fitness studios, and everyday conveniences, this apartment offers prime connectivity and vibrant living. Ideal for professionals, families, or investors seeking rental potential in a cosmopolitan neighborhood.
While the leasehold status and high local crime rate may be considerations, this apartment is a rare blend of luxury, convenience, and space that captures the essence of London riverside living. Don't miss the opportunity to call this stunning property home in a sought-after location!
2 bedroom apartment for sale in St. George Wharf, London, SW8 — £900,000 • 2 bed • 2 bath • 730 ft²
2 bedroom apartment for sale in St. George Wharf, Vauxall, SW8 — £900,000 • 2 bed • 2 bath • 1145 ft²
2 bedroom apartment for sale in The Tower, St. George Wharf, Vauxhall, London, SW8 — £1,475,000 • 2 bed • 2 bath • 1100 ft²
2 bedroom apartment for sale in The Tower, One St George Wharf, Nine Elms, SW8 — £950,000 • 2 bed • 2 bath • 1150 ft²
3 bedroom apartment for sale in The Tower , St George Wharf , Vauxhall, SW8 — £1,900,000 • 3 bed • 2 bath • 1450 ft²
2 bedroom apartment for sale in The Tower, St. George Wharf, SW8 — £900,000 • 2 bed • 2 bath • 1051 ft²






































































