Comfortable, flexible home with meadow views and parking for downsizers.
No onward chain — ready for a quicker purchase process
Backs onto meadow with open farmland views to the rear
Two double bedrooms, each with its own en-suite bathroom
Separate dining room/bedroom 3 offers flexible ground-floor use
Garage and driveway providing parking and storage
Low-maintenance paved and shingled gardens, private and enclosed
EPC E and solid brick (assumed no wall insulation) — energy upgrades likely
No mobile signal on site; broadband reported fast
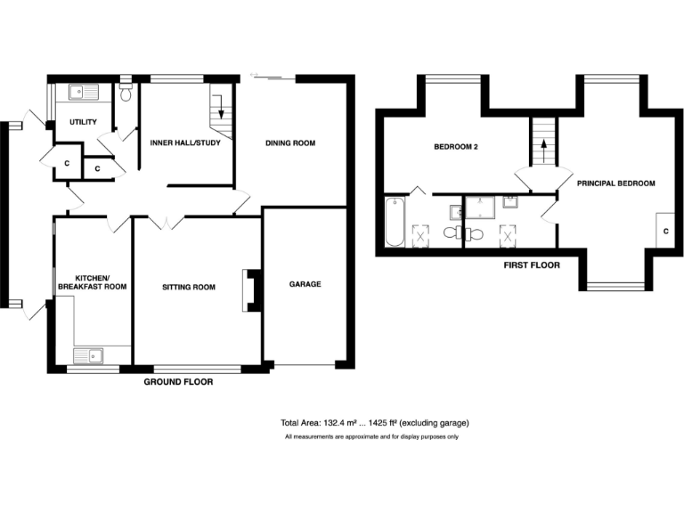
Tucked into the heart of Little Barningham, this detached chalet-style bungalow offers unusually spacious, flexible accommodation across two floors. The property benefits from a sunny, south-facing sitting room, a kitchen/breakfast room and a separate dining room that can double as a ground-floor bedroom or studio — useful for guests or home working. Two generous double bedrooms upstairs each have en-suite facilities, and the principal bedroom enjoys peaceful meadow and farmland views.
Outside, the low‑maintenance paved and shingled gardens back directly onto a meadow, providing privacy and open countryside vistas. A driveway and garage provide secure parking and storage, and there is scope to extend the ground-floor footprint if needed. The house is offered chain-free, making it attractive for buyers seeking a quicker move.
There are some practical considerations: the EPC is rated E and the property’s solid brick walls are assumed to have no installed insulation, which will affect running costs and may require upgrading. The tenure is freehold and mains services are available; broadband speeds are reported as fast but mobile signal is absent at the property. Overall this is a roomy village home with countryside appeal that will reward modest investment to improve energy performance and modernise finishes.
2 bedroom chalet for sale in The Street, Little Barningham, Norwich, NR11 — £350,000 • 2 bed • 1 bath • 793 ft²
3 bedroom semi-detached house for sale in Hall Road, Wood Dalling, Norwich, NR11 — £325,000 • 3 bed • 1 bath • 786 ft²
4 bedroom detached bungalow for sale in Blowlands Lane, Upper Sheringham, Sheringham, NR26 — £500,000 • 4 bed • 2 bath • 1448 ft²
3 bedroom detached bungalow for sale in Broadwood Close, Norwich, NR11 — £375,000 • 3 bed • 2 bath • 1587 ft²
2 bedroom cottage for sale in School Road, Aylmerton, Norwich, NR11 — £375,000 • 2 bed • 2 bath • 1109 ft²
2 bedroom semi-detached house for sale in Hall Road, Wood Dalling, NR11 — £270,000 • 2 bed • 1 bath • 946 ft²










































