High-yield mixed-use asset in busy Newton Abbot trading location, suited to experienced buyers..
Commercial rent £20,000 pa providing strong immediate income
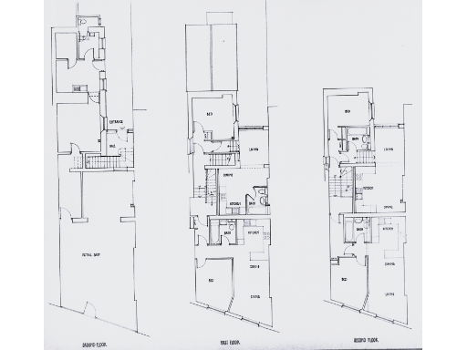
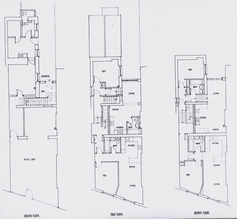
A substantial Grade II listed Victorian mid-terrace in Newton Abbot, this mixed-use freehold offers a clear income stream from a long-standing retail tenant and four separately let residential flats. The ground-floor shop produces £20,000 pa and the flats provide ground rent totalling £400 pa, giving a headline yield above 10.88% at the asking price.
The commercial unit is let to Consol Tanning Ltd on a 10-year lease from 07/09/2018 with around four years unexpired; the tenant did not exercise the recent break or rent review. The four residential flats were sold on 125-year leases from 01/05/2022, each with ground rents currently £100 pa, rising to £200 pa in May 2027. The property is not elected for VAT and the shop has a current rateable value of £18,000.
There are material considerations for buyers and lenders. The short remaining term on the commercial lease (c.4 years) and the building’s listed status can restrict lending and complicate alterations or conversion. The area scores as deprived with very high recorded crime, which may affect rental demand and some mortgage offers. Services have not been tested and the property will require ongoing listed-building compliance and management.
For a hands-on investor familiar with conservation constraints and town-centre trading risk, this offers immediate income and scope to stabilise or enhance returns through active management and tenant selection. Buyers should obtain specialist mortgage advice and a full building inspection before committing.
5 bedroom property for sale in Queen Street, Newton Abbot, TQ12 — £375,000 • 5 bed • 4 bath • 3355 ft²
Commercial property for sale in Newton Abbot, TQ12 — £200,000 • 1 bed • 1 bath • 778 ft²
Commercial property for sale in Newton Abbot, TQ12 — £315,000 • 1 bed • 1 bath • 1830 ft²
Commercial property for sale in Maisonette, - 26A Courtenay Street, Newton Abbot, Devon, TQ12 2DT, TQ12 — £1,100,000 • 1 bed • 1 bath • 19365 ft²
Mixed use property for sale in Paignton, TQ3 — £380,000 • 1 bed • 1 bath
Mixed use property for sale in 15-21 East Street, TQ2 — £135,000 • 1 bed • 1 bath










