Spacious four-bedroom terrace with private mature garden and parking.
Extended kitchen with space for multiple appliances
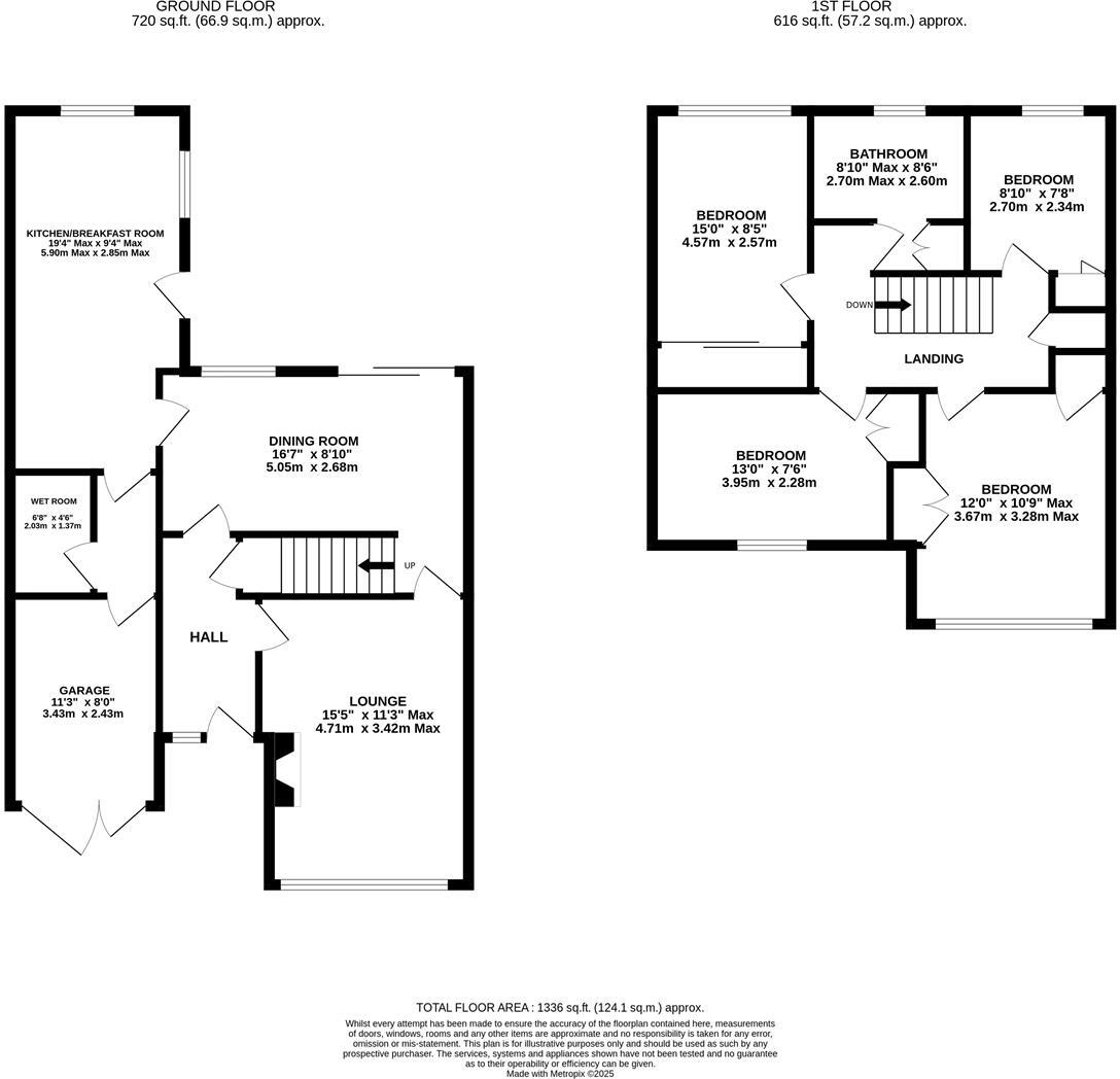
This mid-terrace four-bedroom house on Wadham Drive suits growing families who want space and a peaceful garden. The ground floor offers a bright living room, separate dining area and an extended kitchen designed for everyday life and entertaining. Practical additions include a ground-floor wet room and off-street parking.
Upstairs are four bedrooms, three of which are doubles with fitted wardrobes, plus a first-floor family bathroom. The rear garden is a standout feature: mature planting, stone walls and a patio create a private, low-maintenance outside room ideal for children and family gatherings.
Practical points to note: the garage has been split to create the wet room and now functions mainly as storage. The property has double glazing (age unknown) and an EPC rating of C; walls are original cavity construction with no known added insulation. Tenure is long leasehold (960 years remaining) and council tax is moderate. These factors mean there is good scope to modernise heating and insulation over time for greater efficiency.
4 bedroom terraced house for sale in Sterncourt Road, Bristol, BS16 — £400,000 • 4 bed • 3 bath • 1358 ft²
4 bedroom semi-detached house for sale in Old Gloucester Road, Frenchay, BS16 — £580,000 • 4 bed • 2 bath • 1669 ft²
4 bedroom detached house for sale in Briggs Road, Frenchay, Bristol, BS16 — £600,000 • 4 bed • 2 bath • 886 ft²
4 bedroom house for sale in Derricke Road, Bristol, BS14 — £475,000 • 4 bed • 1 bath • 1120 ft²
3 bedroom terraced house for sale in Callington Road, Bristol, BS4 5BZ, BS4 — £375,000 • 3 bed • 2 bath • 990 ft²
4 bedroom semi-detached house for sale in Witney Mead, Frampton Cotterell, Bristol, BS36 — £450,000 • 4 bed • 3 bath • 1345 ft²






















































































































