1930s four-bedroom semi with large garden and annexe potential, backing onto countryside.
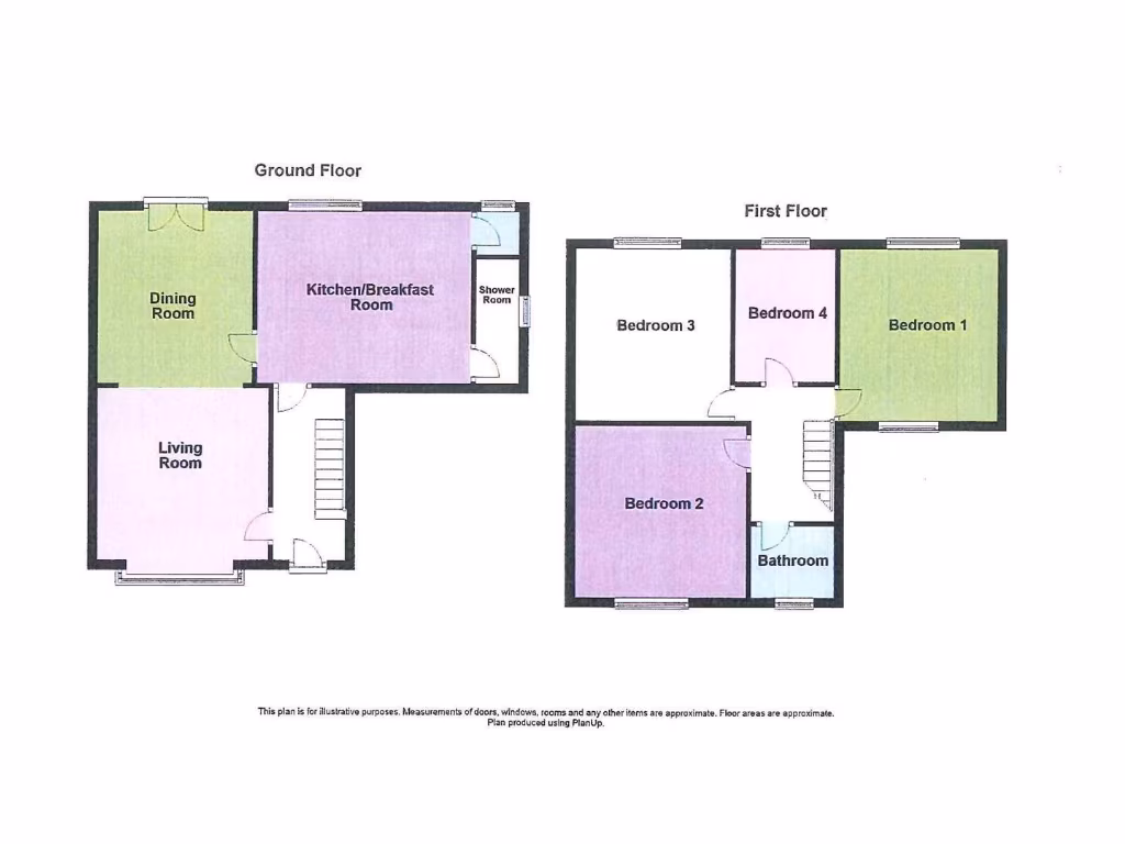
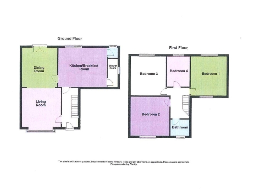
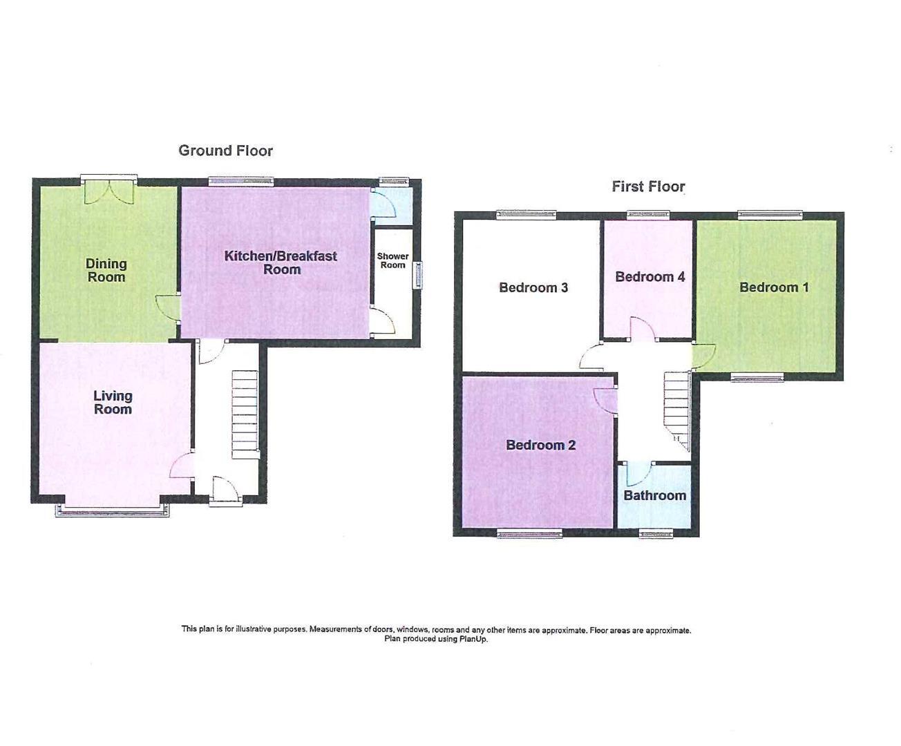
Four double bedrooms and family bathroom
Set on a generous, very large plot on Watergate Road, this 1930s semi-detached family home combines period character with family-friendly living spaces. The ground floor offers an open-plan living and dining flow centred around a multi-fuel burner and a contemporary, well-equipped kitchen/breakfast room opening onto a wide deck and the deep, private rear garden that backs onto fields.
Upstairs provides four well-proportioned bedrooms and a family bathroom, giving flexible sleeping and home-working options. Practical features include a double garage and generous driveway parking, excellent mobile signal and fast broadband — useful for remote working and family connectivity.
The double garage currently used as a studio includes a shower room and offers genuine scope to become a self-contained annexe or home office, subject to a planning application (planning not granted). The house retains character features and has modern elements such as double glazing and a mains-gas boiler; buyers should note the property’s 1930s construction may mean some systems or finishes reflect its age and could need attention over time.
Overall this home suits families seeking semi-rural privacy with easy access to Newport and local schools. Its large plot, countryside outlook and annexe potential create clear scope to add value or adapt the layout to changing family needs.
4 bedroom detached house for sale in New Road, Porchfield, PO30 — £475,000 • 4 bed • 1 bath • 1400 ft²
3 bedroom detached house for sale in Fairlee Road, Newport, Isle of Wight, PO30 — £460,000 • 3 bed • 1 bath • 1437 ft²
3 bedroom house for sale in Newport, Isle of Wight, PO30 — £339,950 • 3 bed • 1 bath • 1548 ft²
4 bedroom detached house for sale in Staplers Road, Newport, Isle of Wight, PO30 — £450,000 • 4 bed • 2 bath • 2069 ft²
4 bedroom detached house for sale in Bowcombe Road, Newport, Isle of Wight, PO30 — £590,000 • 4 bed • 2 bath • 1108 ft²
3 bedroom semi-detached house for sale in Forest Road, Newport, PO30 — £350,000 • 3 bed • 2 bath • 1346 ft²


















































































