Move-in ready four-bedroom house with garage and open-plan living, near parks and good schools.
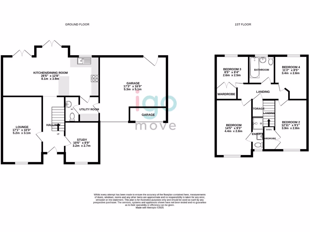
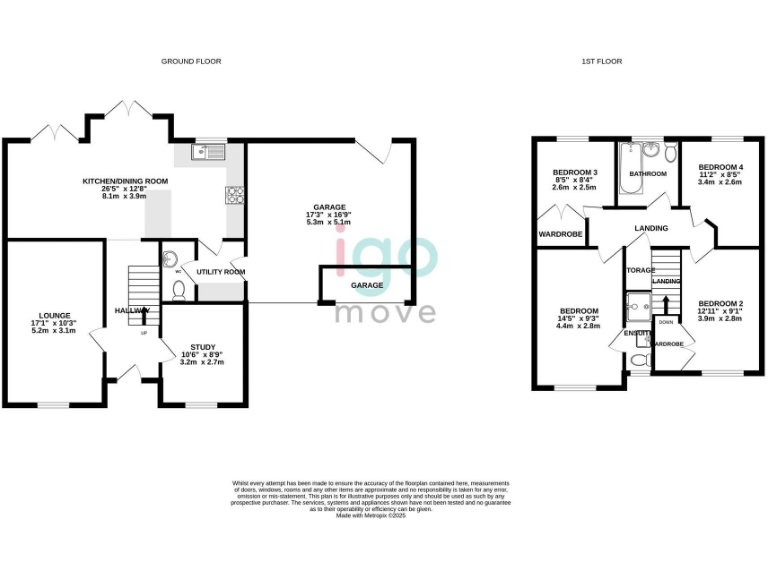
Four double bedrooms, master with en suite
Open-plan kitchen/diner with family room and utility
Newly installed gas boiler and radiators, alarmed
Double garage plus driveway; off-street parking for multiple cars
UPVC double glazing and new front and back doors
Enclosed rear garden, easy-maintenance and average size
Total c.1,022 sqft — compact layout for four bedrooms
Council tax above average; neighbourhood crime level average
This freshly renovated four-bedroom detached home in Bishop Cuthbert offers a stylish, move-in ready layout for busy families. A bright open-plan kitchen/diner and separate lounge provide flexible living space, while a study and utility room add practical convenience. The property has contemporary finishes throughout, oak interior doors, fitted blinds and alarmed security.
Practical benefits include a double garage, paved driveway for multiple cars, and an enclosed rear garden that’s easy to maintain. Building upgrades are recent: a newly installed gas boiler, new radiators, and replacement UPVC front and rear doors with double glazing installed after 2002. Fast broadband and proximity to well-rated primary and secondary schools suit home working and family life.
Buyers should note the home sits on a modest-sized plot and the overall internal area is compact for a four-bedroom house (approximately 1,022 sqft). Council tax is above average for the area and the neighbourhood records average crime levels. Despite this, the property presents strong everyday family value with little immediate work required and good potential for reconfiguration if more space is needed.
4 bedroom detached house for sale in Merlin Way, Hartlepool, TS26 — £254,750 • 4 bed • 3 bath • 1131 ft²
3 bedroom detached house for sale in Cornflower Close, Hartlepool, TS26 — £249,995 • 3 bed • 2 bath • 582 ft²
4 bedroom detached house for sale in Springston Road, Hartlepool, TS26 — £289,950 • 4 bed • 2 bath • 1090 ft²
5 bedroom detached house for sale in Silverbirch Road, Bishop Cuthbert, TS26 — £450,000 • 5 bed • 3 bath
3 bedroom detached house for sale in Swallow Close, Bishop Cuthbert, Hartlepool, TS26 — £210,000 • 3 bed • 2 bath • 646 ft²
4 bedroom detached house for sale in Larkspur Close, Hartlepool, TS26 — £285,000 • 4 bed • 2 bath • 1328 ft²






















































































